EasyManua.ls Logo

JUKI LS-1342 - Drawing of the Table

JUKI LS-1342
60 pages
Print Icon
To Next Page IconTo Next Page
To Next Page IconTo Next Page
To Previous Page IconTo Previous Page
To Previous Page IconTo Previous Page
Loading...
55
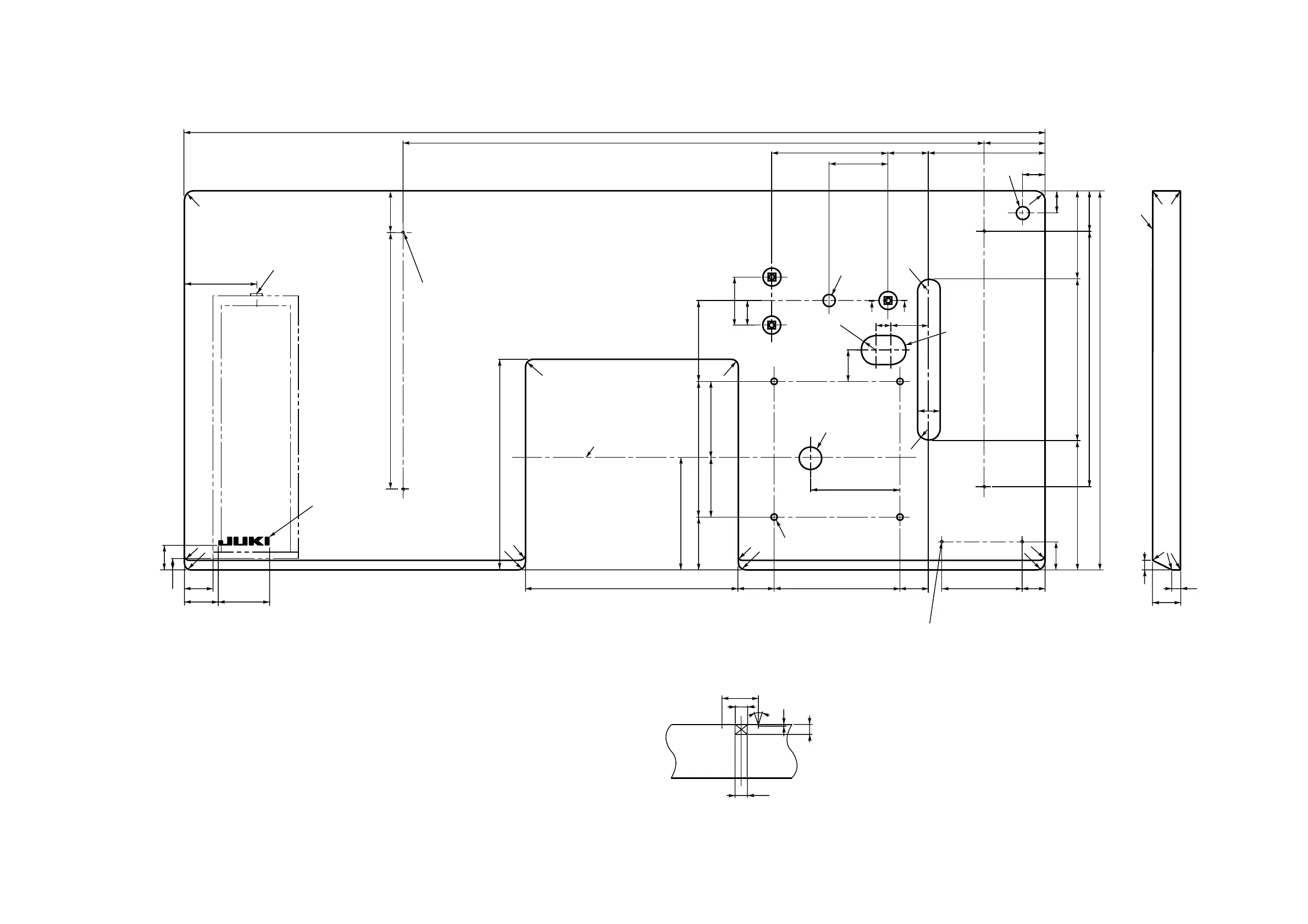
10. DRAWING OF THE TABLE
ø26
8.5
ø8.5
30˚
8
1
X-X (1 : 1)
Table Part No. : 21444005
57
163
80
159
810
1200
30
52.5
20
122
30
11540172
48
300
70
50
40
100
60
358
300
15
39
(160)
76
192.5
112
(108.5)
(84)
33.25
66.5
43
40
185
225
125
30
60
358
(535)
14
10
40
32
R10
R16
R16
R6
R10
R6
R10
R6
R10
R10
R10
R6
R10
R10
X
X
R2
R2
Installing position of stopper for drawer
(on the bottom surface)
4-ø3.6, depth 10
(Drill a hole on the bottom surface at the time of set-up.)
JUKI logotype
Center line of hook driving shaft
16 drilled hole,
depth 30
4-8.5 drilled hole
32 drilled hole
C1.5 chamfer
on the bottom
surface
2-R20
2-ø3.4, depth 10
(Drill a hole on the bottom surface at the time of set-up.)
18 drilled hole
Top
surface

Table of Contents