EasyManua.ls Logo

JUMO ATHs-SE-20 - Page 9

JUMO ATHs-SE-20
24 pages
Print Icon
To Next Page IconTo Next Page
To Next Page IconTo Next Page
To Previous Page IconTo Previous Page
To Previous Page IconTo Previous Page
Loading...
9
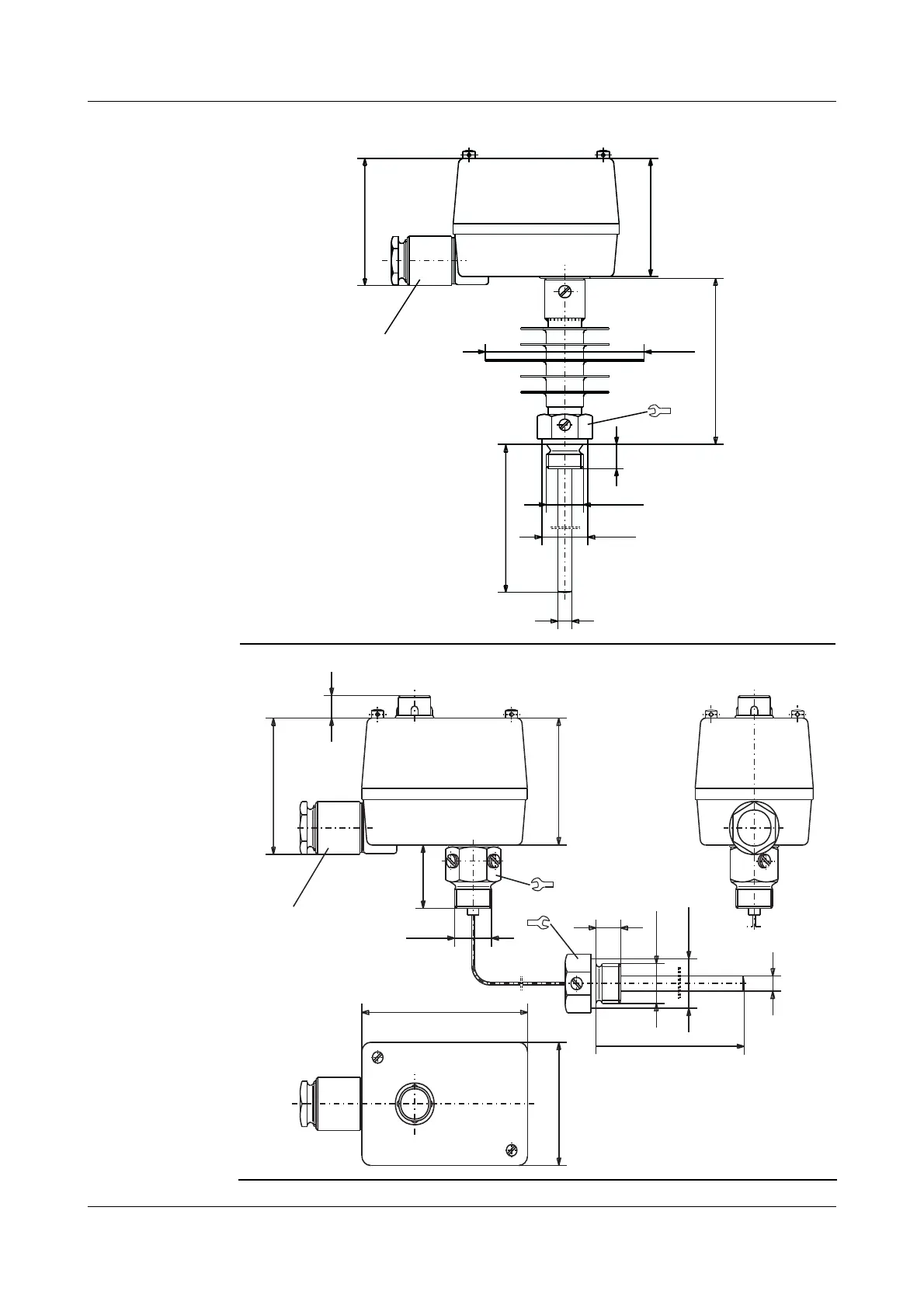
3 Mounting
ATHs-SE-2 (20)
with
sheath "30"
(up to +300 °C)
ATHf-SE-70,
with
sheath "20"
(up to +300 °C)
K M24x1,5
M 20x1,5
DIN 89280-Z14
70
66
G 1/2
Ø 26
S = max. 200 (150)
Ø 90
~85
14
27
Ø
K M24x1,5
M 20x1,5
DIN 89280-Z14
70
12
66
G1/2
14
G1/2
Ø 26
S = max. 200 (150)
33
67
94
24
27
Ø

Related product manuals