EasyManua.ls Logo

JVC EXAD KW-AVX826

JVC EXAD KW-AVX826
72 pages
To Next Page IconTo Next Page
To Next Page IconTo Next Page
To Previous Page IconTo Previous Page
To Previous Page IconTo Previous Page
Loading...
1
2
3
4
5
9
6
1
(ILLUMINATION CONTROL)
(PARKING BRAKE)
7
(TEL MUTING)
3
8
2
3
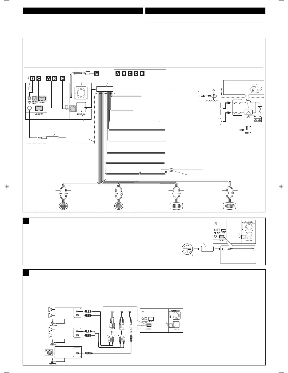
ELECTRICAL CONNECTIONS
To prevent short circuits, we recommend that you disconnect the battery’s negative terminal and make all
electrical connections before installing the unit.
Be sure to ground this unit to the car’s chassis again after installation.
電路連接
為防止短路,建議在安裝本機之前,拔開電池的負極,並把所有電路都連接好。
安裝完畢後務必將本機的地線重新接至車身。
中文 ENGLISH
Before connecting: Check the wiring in the vehicle carefully. Incorrect connection may cause serious
damage to this unit.
The leads of the power cord and those of the connector from the car body may be different in color.
1 Connect the colored leads of the power cord in the order specified in the illustration below.
2 Connect the antenna cord.
3 Finally connect the wiring harness to the unit.
接線前 : 仔細檢查汽車內的線路。不正確的接線會導致本機嚴重損壞。
電力線的引線和車身的連接器引線在顏色上可能有所不同。
1 依照下圖所示之次序連接電源線的顏色導線。
2 將天線的電線連接起來。
3 最後,把配線束的插頭插在本機上。
*
1
*
1
15 A fuse
15 A 保險絲
Fan
風扇
*
1
Not included for this unit
*
1
不隨本機提供
Ignition switch
點火開關
To a live terminal in the fuse block connecting to the car battery
(bypassing the ignition switch) (constant 12 V)
接至保險絲單元內的帶電端子,保險絲單元與車裝電池相連接
(用於旁路點火開關)(恆定 12 V)
To metallic body or chassis of the car
接至金屬體或汽車底盤
To an accessory terminal in the fuse block
接至保險絲單元內的附屬端子
To the remote lead of other equipment (200 mA max.)
連接至其他裝置上的遙控導線(最大 200 mA)
To automatic antenna if any (250 mA max.)
接至自動天線(若有裝設)(最大250 mA)
Fuse block
保險絲單元
To cellular phone system
連接至流動電話系統
To car light control switch
連接至汽車車燈控制開關
Crimp connector
夾子接頭
To parking brake (see diagram Å on page 1).
接至手剎車 (參閱第 1 頁的圖表 Å)
Ye l l o w *
2
黃色 *
2
Red
紅色
Orange with white stripe
橙色帶有白色條紋
Black
黑色
Light green
淺綠色
Brown
褐色
Blue with white stripe
藍色帶有白色條紋
Blue
藍色
*
2
Before checking the operation of this unit prior to
installation, this lead must be connected, otherwise
power cannot be turned on.
*
2
本機未安裝時,進行工作狀況檢查之前,
必須把這導線接上,否則不能開啟電源。
Left speaker (rear)
左揚聲器
(後置)
Right speaker (front)
右揚聲器(前置)
Left speaker (front)
左揚聲器
(前置)
Right speaker (rear)
右揚聲器
(後置)
Gray with black stripe
灰色帶有黑色條紋
White
白色
White with black stripe
白色帶有黑色條紋
Green with black stripe
綠色帶有黑色條紋
Gray
灰色
Green
綠色
Purple with black stripe
紫色帶有黑色條紋
Purple
紫色
Rear ground terminal
本機後背接地端子
See each diagram on pages 3 and 4.
參閱第 3 和第 4 頁上的圖表。
*
3
Firmly attach the ground lead to the metallic body or to
the chassis of the car—to the place uncoated with paint
(if coated with paint, remove the paint before attaching
the lead). Failure to do so may cause damage to the
unit.
*
3
將地線與金屬車體或者汽車底盤緊密連接,連接處
應該沒有被油漆覆蓋(如果已塗上油漆,在連接電
線前,將油漆刮去)。如果不這樣做,可能會損壞
本機。
B
您可以連接功率放大器以提升車廂內的環繞音響系統。
您可以使用連接本機和功率放大器的遙控導線(藍色帶有白色條紋) 為功率放大器供電。(想要
使用遙控導線連接多個功率放大器,需要另外購買 Y- 連接器。)
將揚聲器和本機拔開,再連接上功率放大器。將本機的揚聲器導線放置不用。
您可以關閉內建功率放大器,將音頻信號僅傳送到外接功率放大器,從而得到清晰的音質,並
防止本機內部積聚熱量。參閱使用說明書的第 20 頁。
Connecting the LINE OUT cord—external amplifiers
L
R
L
L
INPUT
INPUT
R
L
INPUT
R
L
R
L
R
R
*
3
*
3
*
3
LINE OUT (FRONT)
LINE OUT (REAR)
SUBWOOFER
Rear speakers
後置揚聲器
JVC Amplifier
JVC 功率
放大器
You can connect amplifiers to upgrade surround system in the car compartment.
You can supply the power to the amplifiers by connecting the remote leads (blue with white stripe) of
this unit and amplifiers. (To connect more than one amplifier using the remote leads, Y-connectors
need to be separately purchased.)
Disconnect the speakers from the unit, and connect them to the amplifier. Leave the speaker leads of
the unit unused.
You can switch off the built-in amplifier and send the audio signals only to the external amplifier(s)
to get clear sounds and to prevent internal heat built-up inside the unit. See page 20 of the
INSTRUCTIONS.
Front speakers
前置揚聲器
JVC Amplifier
JVC 功率
放大器
JVC Amplifier
JVC 功率
放大器
Subwoofer
重低音揚聲器
連接 LINE OUT 電纜外接功率放大器
OE remote adapter (not supplied)
OE 遙控轉換器(另購)
Steering wheel remote controller (equipped in the car)
方向盤遙控器(汽車上配備)
A
Connecting to the steering wheel remote controller 連接至方向盤遙控器
If your car is equipped with the steering wheel remote controller, you can operate this unit using the
controller. For connection, an exclusive remote adapter (not supplied) which matches your car is
required. For details, consult the same car audio dealer as where the unit is purchased.
若汽車配備了方向盤遙控器,可以用遙控器操作本機。對應連接,需要和汽車配套的專用遙控轉
換器(另購)。關於詳情,請向購買本機的汽車音響分銷商詢問。
OE REMOTE
Steering wheel remote
方向盤遙控
Instal_KW-AVX820[U_UT]_2.indb 3Instal_KW-AVX820[U_UT]_2.indb 3 09.2.9 0:09:13 PM09.2.9 0:09:13 PM

Related product manuals