EasyManua.ls Logo

JVC KD-G331E - Page 17

JVC KD-G331E
57 pages
Print Icon
To Next Page IconTo Next Page
To Next Page IconTo Next Page
To Previous Page IconTo Previous Page
To Previous Page IconTo Previous Page
Loading...
2-1
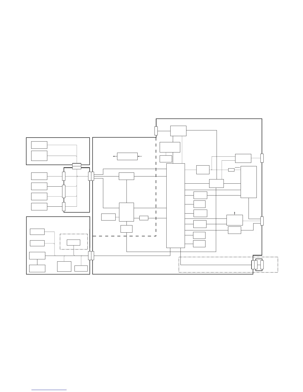
Block diagram (For KD-G331,KD-G332 KD-G333 and KD-G337)
SPINDLE
MOTOR
REST
SWITCH
LOAD&FEED
MOTOR
Q101,Q201
PHOTO SW
PICK UP
REST
SW1, SW2
IC501
BTL DRIVER
IC521
RF AMP
IC581
CD L.P.F.
IC981
1.5V REGULATOR
IC523
VF1, VF2
VT1, VT2
MD, LD
PSW
FOP
TRP
TRVP
SPOUT
TRAV
MLD
MDATA
MCLK
NRST
NPWDOWN
REV, FWD
BTL_MUTE
TU1
FM/AM
TUNER
IC701
CPU
IC171
E.VOLUME
Q341,Q351
LINE OUT
MUTING
Q301
Q781, Q782
MUTE
DRIVER
IC301
POWER
AMP.
IC901
REGULATOR
EACH BLOCK
TU_L/R
FL_OUT, FR_OUT
RL_OUT, RR_OUT
RLO,RRO
RLO,RRO
STANDBY
ACC
SW5V,ACC5V
VDD5V.CD8V
9V,ILL10V
PS2
CD_L/R
POWER
CDON
LF+/-, RF+/-
LR+/-, RR+/-
VSCL
VSDA
MUTE
MUTE
MUX
ANT
SW1
SW2
PSW
LOAD+/-
FEED+/-
SP+/-
VF1, VF2, VT1, VT2, LD, MD
TRK+/-
FOCUS+/-
LOAD+/-
FEED+/-
SP+/-
SPK
BATTERY
FSU
AFS
Q_OUT
SSTOP
TUSDA
TUSCL
KEY0 to 2
LCDCLK
LCDDA
LCDCE
REMOCON
ENC1
ENC2
OUTL/R
STAT
IRQ
STAT
IRQ
LINE OUT
REAR
FOCUS &
TRACKING
COIL
TRK+/-
FOCUS+/-
CD mechanism control section
Main amplifier section
S601 to S616
KEY MATRIX
KEY0
KEY1
KEY2
IC661
LCD DRIVER
LCD1
LCD DISPLAY
COM1 to COM3
S1 to S52
LCDCLK
LCDDA
LCDCE
IC681
REMOCON
REMOCON
JS686
ENCODER
D630
POWER LED
LCD & Key control section
D631 to D650
LIGHTING
DISPLAY
CJ601
CN701
ENC1
ENC2
ILL10V
ACC5V
Q911,Q912
PS2
STEERING
REMOTE
STEERING
IC775,S775
RESET
IC771
EPROM
RESET
ERCLK
ERDI
Q913,Q914
ILM.ADJ
DIMOUT
ILM.ADJ
IC71
RDS
DETECTOR
RDSDA
RDSCL
CN501
CN101
CN761
J761CN901J321
J1
1.5V VDD5V
MUTE
TEL_MUTE
TEL_MUTE
Q891
TEL.MUTE
Used for KD-G337
X521
16.9344MHz
X71
4.332MHz
X701
8MHz
X702
32.768KHz
Used for Area suffix EU/EX/EY

Related product manuals