EasyManua.ls Logo

JVC KW-XC407

JVC KW-XC407
145 pages
To Next Page IconTo Next Page
To Next Page IconTo Next Page
To Previous Page IconTo Previous Page
To Previous Page IconTo Previous Page
Loading...
1-8 (No.MA235)
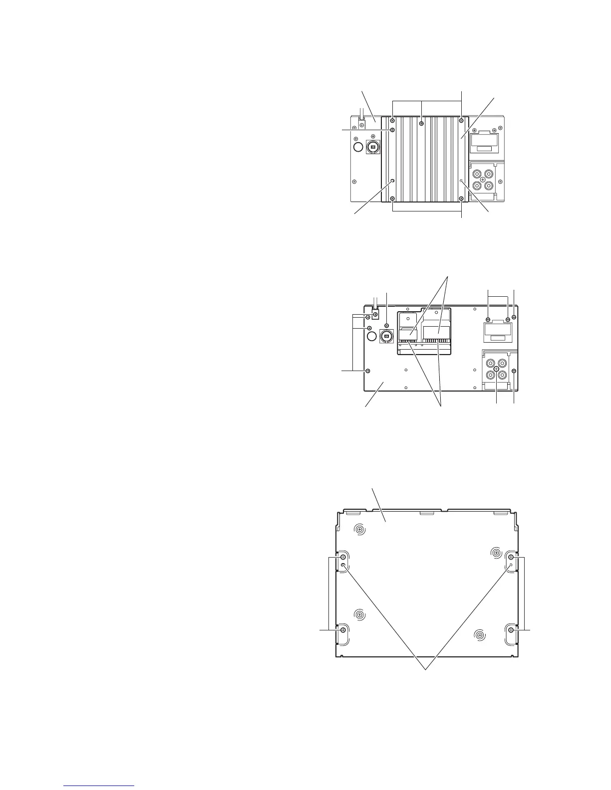
3.1.2 Removing the heat sink
(See Figs.3 and 4)
(1) From the back side of the main body, remove the six
screws B attaching the heat sink. (See Fig.3.)
(2) Remove the heat sink from the main body.
Note:
Before attaching the heat sink, attach the cooling rubbers on
the power amplifier IC. (See Fig.4)
When attaching the heat sink, set the projections b on the
rear bracket in the holes of the heat sink. (See Fig.3.)
3.1.3 Removing the rear bracket
(See Fig.4)
Remove the heat sink.
(1) From the back side of the main body, remove the seven
screws C, two screws D and screw E attaching the rear
bracket.
(2) Remove the rear bracket from the main body.
Fig.3
Fig.4
3.1.4 Removing the bottom chassis assembly
(See Fig.5)
Remove the front panel assembly, heat sink and rear bracket.
(1) From the bottom side of the main body, remove the four
screws F attaching the bottom chassis assembly.
(2) Take out the bottom chassis assembly from the main body.
Reference:
When attaching the bottom chassis assembly, set the projec-
tions c of the main body in the holes of the bottom chassis as-
sembly.
Fig.5
B
B
B
bb
Rear bracket
Heat sink
CD
C
E
C
C
Rear bracket
Cooling rubbers
Power amplifier IC
Bottom chassis assembly
c
FF

Table of Contents

Other manuals for JVC KW-XC407

Related product manuals