EasyManua.ls Logo

JVC MX-JD5 - Removing the Regulator & Surround Amplifier Board; Removing Main & Subwoofer Amplifier Board

JVC MX-JD5
77 pages
Print Icon
To Next Page IconTo Next Page
To Next Page IconTo Next Page
To Previous Page IconTo Previous Page
To Previous Page IconTo Previous Page
Loading...
1-16 (No.MB263)
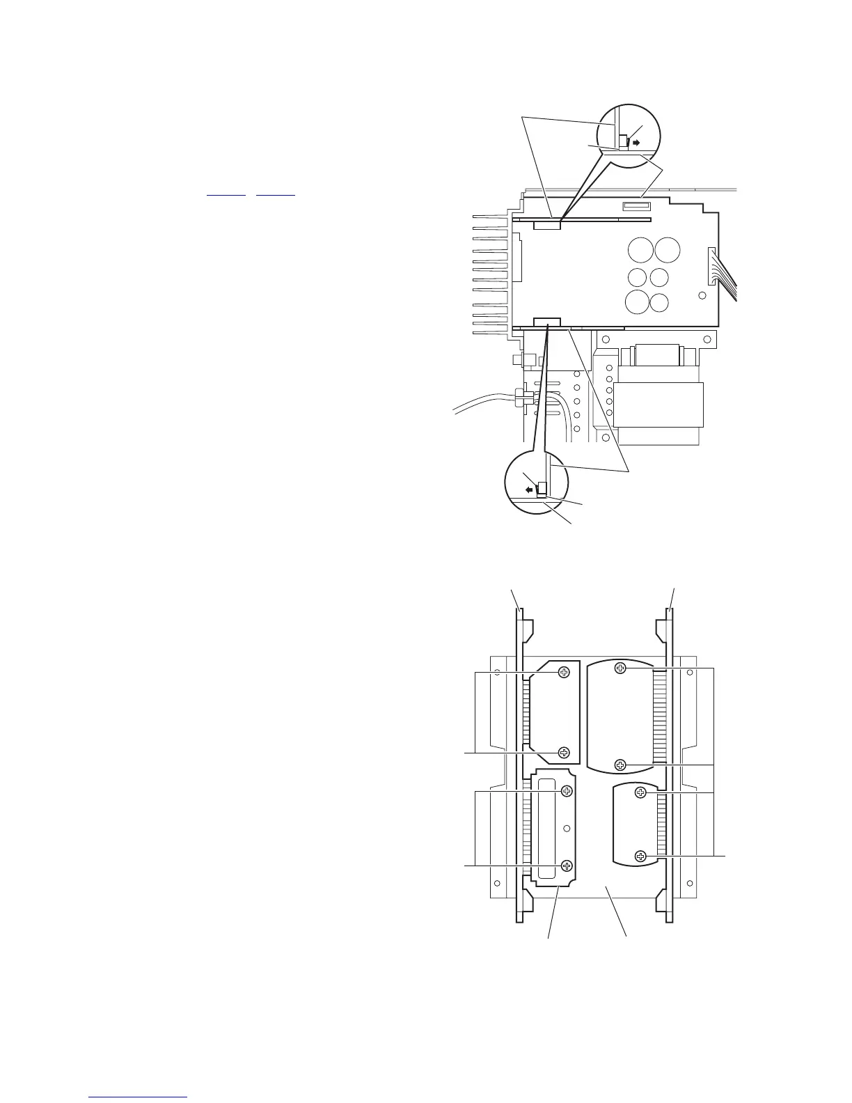
3.1.12 Removing the regulator & surround amplifier board and main & subwoofer amplifier board
(See Figs.20 and 21)
Prior to performing the following procedure, remove the metal
cover, tuner, video board, rear panel, main board, center chas-
sis assembly and speaker terminal board.
(1) From the top side of the main body, disconnect the regula-
tor & surround amplifier and main & subwoofer amplifier
boards in an upward direction while releasing the locks (k,
m) of the connectors (CN202
, CN203) on the primary
board. (See Fig.20.)
(2) Take out the regulator & surround amplifier and main &
subwoofer amplifier boards at the same time from the main
body.
(3) Remove the two screws S attaching the leaf spring to the
heat sink.
(4) Remove the two screws T attaching the regulator & sur-
round amplifier board and remove the regulator & surround
amplifier board from the heat sink. (See Fig.21.)
(5) Remove the four screws U attaching the main & subwoofer
amplifier board to the heat sink. (See Fig.21.)
Fig.20
Fig.21
Main & subwoofer
amplifier board
Regulator & surround
amplifier board
CN202
CN203
Primary board
k
m
Primary board
Leaf spring
S
U
Regulator & surround
amplifier board
Main & subwoofer
amplifier board
Heat sink
T

Table of Contents

Related product manuals