EasyManua.ls Logo

JVC MX-JE31 - Removing the Primary Board

JVC MX-JE31
42 pages
Print Icon
To Next Page IconTo Next Page
To Next Page IconTo Next Page
To Previous Page IconTo Previous Page
To Previous Page IconTo Previous Page
Loading...
(No.MB385)1-17
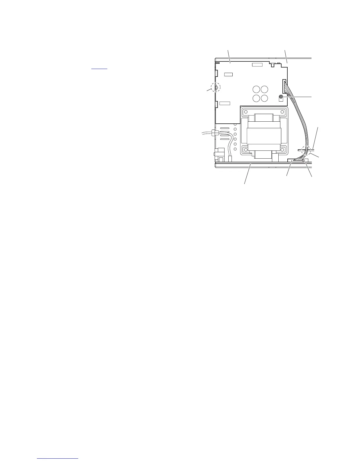
3.1.12 Removing the primary board
(See Fig.21)
Remove the metal cover, tuner, video board, rear panel, main
board, center chassis assembly, speaker terminal board, reg-
ulator board and main amplifier board.
(1) From the top side of the main body, disconnect the wire
from the connector CN119
on the transformer board.
Reference:
Pass the wire through the slot n of the holder board be-
fore connecting the wire to the connector.
(2) Remove the screw S attaching the primary board on the
bottom chassis.
(3) Remove the section p of the primary board and take out the
primary board from the bottom chassis.
Fig.21
Primary board Bottom chassis
Holde
r
board
CN119
Wire
S
p
n
Transformer board

Table of Contents

Related product manuals