EasyManua.ls Logo

JVC RX-8012VSL - Using the On-Screen Menus; Showing the MENU on the TV Screen; Activating Surround;DSP Modes

JVC RX-8012VSL
136 pages
Print Icon
To Next Page IconTo Next Page
To Next Page IconTo Next Page
To Previous Page IconTo Previous Page
To Previous Page IconTo Previous Page
Loading...
ABCD E F G
1
2
3
4
5
2-7
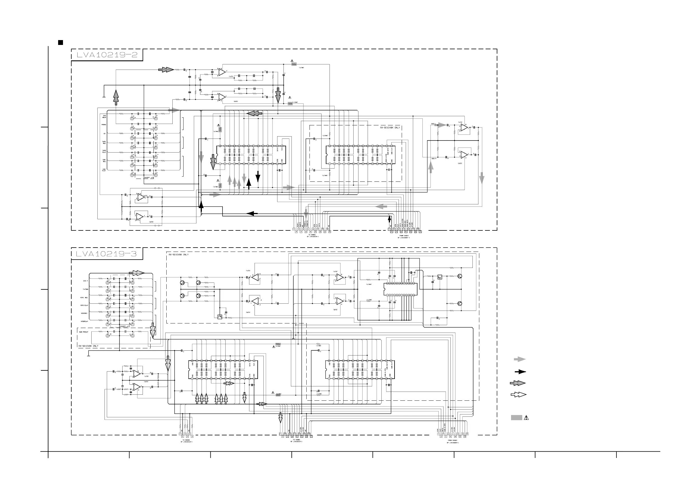
RX-8012VSL/RX-8010VBK
SHEET 4/11
Parts are safety assurance parts.
When replacing those parts make
sure to use the specified one.
Audio / V Audio signal input section
AUDIO Signal
TUNER Signal
PHONO Signal
VIDEO AUDIO Signal
Sheet 2/11Sheet 10/11
Sheet 3/11Sheet 6/11
Sheet 6/11
CN371
IC371
C385
C1233
C333
C389
C334
R1261 R1262
CN416
CN311
CN313
CN351
C323 C324
C325 C326
C327 C328
C329 C330
C331 C332
C371 C372
R373
R375
R377
R379
R381
R374
R376
R378
R380
R382
C373 C374
C386
C375 C376
C377 C378
R372
R371
C379 C380
J371
J372
C381
C1261
C382
C1262
J373
Q1250
Q1249 Q1247
Q1248
R1251
R1249
R336
R385
J301
R333
R334
R1252
R1250
R1247
R1253
R1254 R1248
Q1245
C1245
R1245
IC372
R395
R391
R393
IC372
C395
C393
R1202
R335
C391
C1201
C1202
R1227
IC394
IC394
C1221
C1222
C1223
C1224
R1226
R1225
C397
R397
R396R392
R394
C396
R1243
R1244
IC395
IC395
C1243
C1244
C394
C392
C398
R398
R1241
R1242
C1241
C1242
IC393
C1230
C1228
C1229
C1227
C1225
C1226
R316
R1228
R1230
R1229
C1231
R1231
C1232
Q1231
R1235
Q1233
R1233
R1201
R315
C335
C336
C339
IC304
IC304
C363
C364
C361
C362
IC303
IC303
C341
C342
C343
C344
C321 C322
R323
R325
R327
R329
R331
R324
R326
R328
R330
R332
IC301
IC301
R305
R306
C301
C302
R302
R301
R307 R309
C305 C307
C306 C308
R308 R310
C311
C312
J302
J303
R1234
Q1234
R1236
R1232
IC392
C1211
C1219
C1212
R1211
R386
C1209
R1212
R387
R388
IC391
R389
R390
R1223R1224
R1221R1222
IC302
R363R364
R343
R344
R346 R345
C309C310
C303
C304
R303R304
C314 C313
R311R312
C315C316
R361R362
R365R366
R341R342
QGB1214K1-14S
TC9163AF-X
22/25
10/50
390p
560p
390p
470 470
QGA2501F1-06
QGB2510K1-14
QGB2510K1-13
QGB1214K1-16S
220p
220p
220p
220p
220p
220p
220p
220p
220p
220p
220p 220p
470
470
470
470
470
470
470
470
470
470
220p
220p
22/25
220p
220p
220p
220p
470470
220p
220p
220p
220p
220p
220p
2SC3576-JVC-T
2SC3576-JVC-T
2SC3576-JVC-T
2SC3576-JVC-T
10k
10k
68
68
470 470
10k
10k
1k1k
1k 1k
KRA104M
22/50
1k
BA15218F
5.1k
5.1k
10k
BA15218F
120p
1200p
68
68
10/50
22/25
22/25
68
BA15218F
BA15218F
10/50
10/50
10/50
10/50
100k
100k
10/50
100k
5.1k
5.1k
10k
120p
100k
100k
BA15218F
BA15218F
4.7/50
4.7/50
1200p
10/50
10/50
100k
100k
100k
4.7/50
4.7/50
TC9459F
4.7/50
4.7/50
4.7/50
4.7/50
47/25
47/25
330
68
100k
100k
220p
1k
22/50
KRA104M
10k
2SC3576-JVC-T
1k
68
330
22/25
22/25
560p
BA15218F
BA15218F
4.7/50
4.7/50
4.7/50
4.7/50
BA15218F
BA15218F
10/50
10/50
10/50
10/50
220p
220p
470
470
470
470
470
470
470
470
470
470
NJM4580DD
NJM4580DD
620
620
4.7/50
4.7/50
2.2k
2.2k
39k 470k
0.0018MY 0.0068MY
0.0018MY
0.0068MY
39k 470k
4.7/50
4.7/50
1k
2SC3576-JVC-T
10k
470k
TC9163AF-X
22/25
560p
22/25
68
68
560p
68
470
470
TC9164AF-X
470
470
100k100k
100k100k
TC9164AF-X
100k100k
100k100k
100k 100k
100p100p
100p100p
47k47k
100/10
100/10
100k100k
47/1647/16
100k100k
100k100k
100k100k
SUB.PRE
VCR2.PLAY-R
VCR2.REC-R
VCR1.PLAY-R
VCR1.REC-R
TV/DBS-R
DVD.F-R
CDR.REC-R
CDR.PLAY-R
CDR.REC-L
CDR.PLAY-L
DVD.F-L
TV/DBS-L
VCR1.REC-L
VCR1.PLAY-L
VCR2.REC-L
CD-RCD-L
REC-RREC-L
PLAY-RPLAY-L
USB-L
USB-R
VCR2.PLAY-L
SUB-R
SUB-L
SUB.MUTE
DVD-LS
DVD-RS
VOL_STB
CDR.REC-R
DVD.F-R
SUB.V.STB
SUB-R
SUB-R
V.SIG.L
CDR.REC-L
V.SIG.R
VOL_CLK
CD-L
CD-R
TUNER-R
CDR.PLAY-R
DVD-LS
PLAY-R
TUNER-R
REC-R
VIDEO-R
REC-L
TUNER-L
CDR.PLAY-L
PLAY-L
CD-L
PLAY-L
CDR.PLAY-L
SUB.SIG.L
VIDEO-L
VCR2.REC-L
VOL_DATA
TV/DBS-R
V.SIG.L
TUNER-L
DVD-RS
CD-R
SUB-L
PLAY-R
VCR1.REC-R
VCR2.PLAY-R
VIDEO-R
VCR1.PLAY-R
VCR2.REC-R
V.SIG.R
SUB-L
V.SIG.L
CDR.PLAY-R
VCR1.PLAY-L
VIDEO-L
SUB.SIG.R
VOL_STB
VOL_DATA
TUNER-RTUNER-L
V.SIG.R
SUB.CLK
SUB.DATA
VCR2.PLAY-L
VCR1.REC-L
TV/DBS-L
DVD.F-L
SUB-R
V.SIG.L
SUB-L
REAR.SIG.L
REAR.AMP.L
REAR.SIG.R
REAR.AMP.R
REAR.SIG.R
SUB.CLK
REAR.AMP.R
REAR.SIG.L
REAR.AMP.L
SUB.MUTE
SUB.PRE
S.MUTE
S.MUTE
SW.MUTE
SW.MUTE
USB-L USB-R
USB-RUSB-L
VOL_CLK
SUB.V.STB
SUB.DATA
DVD.F-L
TV/DBS-L
VCR1.PLAY-L
VCR2.PLAY-L
VIDEO-L
DVD.F-R
TV/DBS-R
VCR1.PLAY-R
VCR2.PLAY-R
VIDEO-R
V.SIG.R

Table of Contents

Related product manuals