EasyManua.ls Logo

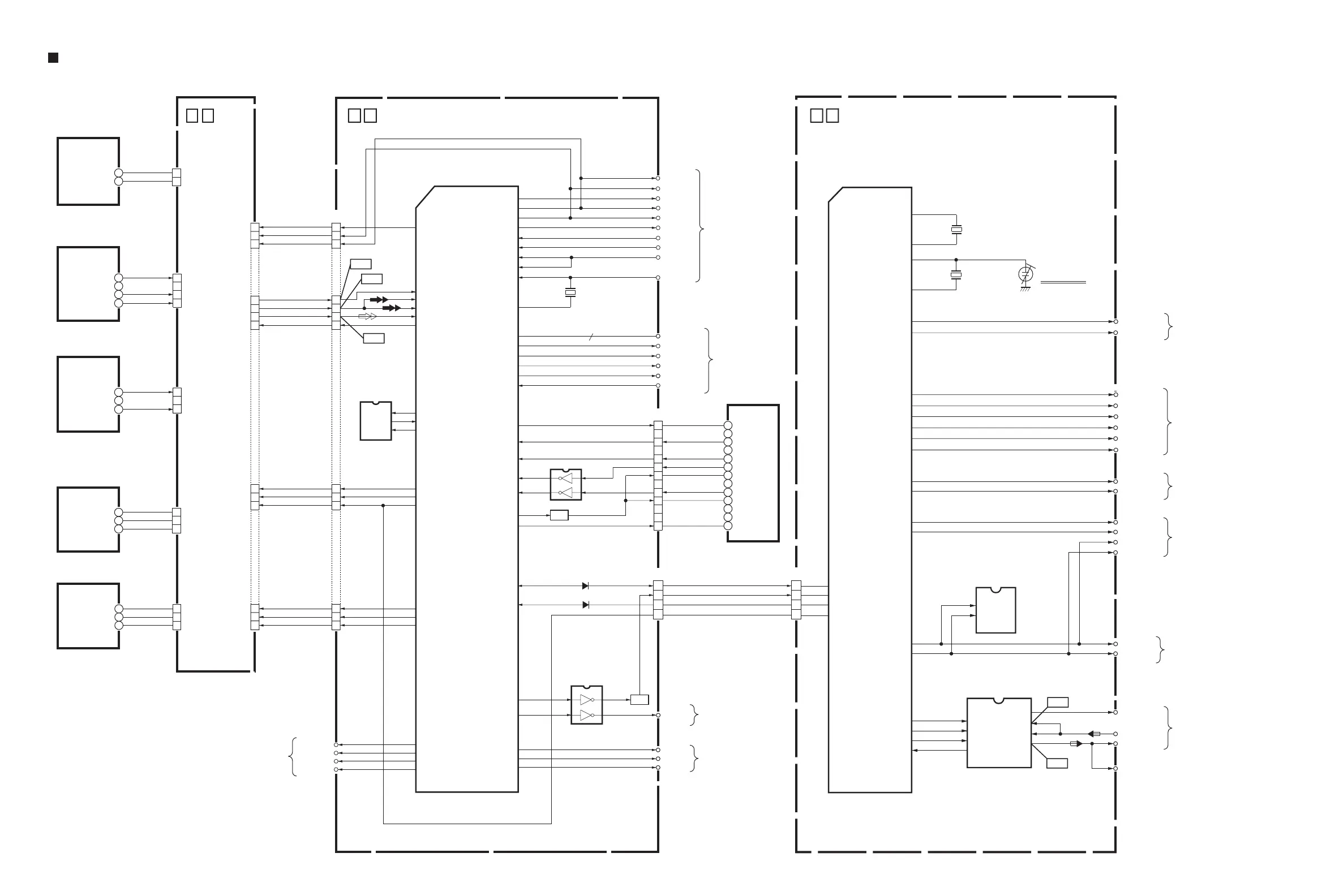
JVC SR-DVM700EU - System control section

JVC SR-DVM700EU
119 pages
Print Icon
To Next Page IconTo Next Page
To Next Page IconTo Next Page
To Previous Page IconTo Previous Page
To Previous Page IconTo Previous Page
Loading...
19
18
17
13
12
MDA_CLK
MDA_IN
3
11
FG_OUT
10
3
1
3
DV DRUM
MOTOR
11
10
DV
CAPSTAN
MOTOR
16
18
PG_OUT
COIL_COMMON
FG1
FG2
CAP_FG
112
TBC_OUT
23
34
DRUM_FG
111
24
OSCI
71
DAC_CS
17
ADC_DEM0
83
85
ADC_PWD1
IC1502
1
3
7
5
102
101
S_REEL
T_REEL
ES
Q1512
41
REEL_LED
52
CASSETTE_SW
88
89
REC_SAFE
117
START_SENS
118
END_SENS
REC_SAFETY_SW
CN1502
1
3
7
8
9
11
12
15
START_SENSOR
SUP_REEL_SENSOR
SUP_REEL_LED
TU_REEL_SENSOR
TU_REEL_LED
CASSETTE_SW
138
141
RE
DWE
16
AGC_RST
ASPECT1
DWE
DRE
DRUM_FG
CN1501
3
4
2
CAP_FG
DRUM_PG
8
9
ADC_DEM1
84
86
ADC_PWD0
TO
AUDIO AD/DA
ADC_DEM0
ADC_DEM1
ADC_PWD0
ADC_PWD1
15
SENSOR
13
9
8
7
5
4
1
1
2
LOAD.MOTOR+
LOAD.MOTOR-
LOADING
MOTOR
3
2
HOUSING.MOTOR-
HOUSING.MOTOR+
3
DV
HOUSING
MOTOR
2
4
HOUSING_SW
4
7
6
5
HOUSING_IN
HOUSING_OUT
HOUSING_SW
HOUSING_IN
50
HOUSING_OUT
49
HOUSING_SW
51
TO
DV I/O
3
2
1
2
1
R.ENC1
2
DV
ENCODER
1
3
3
16
5
27
LD_ON
31
32
33
CAM0
CAM1
CAM2
CAM_SW1
CAM_SW2
CAM_SW3
R.ENC2
R.ENC3
LD_ON
E_SENSOR
14
MDA_CS
7
MDA_CS
18
14
15
16
18
19
20
93
94
DRUM_FG
DRUM_PG
145 - 152
155 - 162
ADM0 - ADM15
46
TBC_IN
TBC_SDO
TBC_SDI
TBC_CLK
25
22
TBC_CS
TBC_CLK
TBC_CS
VD
15
TBC_VD
RST
66
90
ASPECT2
AGC_RST
ASPECT1
ASPECT2
SYS_CLK
SYS_OUT
175
CLK27A
RESET
SYS_CLOCK
SYS_IN
SYS_OUT
DV_H.SW
CN1503
4
5
1
3
1
IC1503
71
BUF
Q1502
3
5
PWR_CTL
POWER_CTL
16
IC1504
2
6
5
SCK
SO
SI
EEP_OUT
EEP_IN
EEP_CLK
10
8
9
CLK27SEL
CLK27SEL
D1501
D1506
DAC_DATA
DAC_CS
DAC_CLK
MDA
1
6
TBC_VD
96
TBC_RST
21
TBC_RST
X1501
DV SYSTEM CLOCK
(
16kHz
)
OSCO
70
142
AS
DALE
ADM0 - ADM15
TO
DV MAIN
SYS_IN
176
TO
DV VIDEO OUT
TO
REG
(
32kHz
)
MAIN
(
SYSCON, ON SCREEN
)
X3001
C3025
TIMER CLOCK
TIMER CLOCK
(
SYSTEM CONTROL MICRO PROCESSOR
)
IC3001
30
65
64
X1
X2
X3002
MAIN SYSTEM
CLOCK
(10MHz)
69
67
OSC2(OUT)
OSC1(IN)
TO
AUDIO I/O
SCL
SDA
5
6
IC3004
(
SERIAL MEMORY
)
I2C_DATA2
TO
VIDEO SW VDR
75
76
I2C_CLK
I2C_DATA
I2C_CLK2
IC201
(
ON_SCREEN
)
V_TO_OSD
15
CV_IN
18
13
SYNC_IN
CVOUT
V_FROM_OSD
I2C_DATA2
I2C_CLK2
87
OSD_CS
9
CS
53
S.CLK
10
SCLK
52
S.DATA_FRSYS
11
SDATA
14
SYNC_DET(H)
8
SYNC_DET
A.MUTE(L)
A.MUTE(L)
28
A.MUTE_DVC(H)
A,MUTE_DVC(H)
24
TU_I2C_DATA
60
61
TU_CLK
TU_DATA
TU_I2C_CLK
TO
TUNER
A.OUTSEL1
A.OUTSEL1
79
A.OUTSEL2
A.OUTSEL2
77
DVC_A_INSEL1
DVC_A_INSEL1
88
DVC_A_INSEL2
DVC_A_INSEL2
85
DVD_A_INSEL1
DVD_A_INSEL1
94
DVD_A_INSEL2
DVD_A_INSEL2
91
TO
AUDIO I/O
(DV MSD)
IC1501
S_CLK
S_DATA_TOSYS
S_DATA_FRSYS
DV_H_SW
CN3014
4
3
7
5
DV MAIN (MSD)
05
53
51
52
57
I2C_DATA_A/V
50
49
I2C_CLK_A/V
I2C_DATA_A/V
I2C_CLK_A/V
TO
VDR V SW
V_FROM_OSD
TO
VIDEO SW VDR
TO
TERMINAL
4
CHABLK
CHARADATA
WF4
WF5
WF1
WF2
WF3
System control section
2-75 2-76

Related product manuals