EasyManua.ls Logo

Kaisai KHC-12RY3 - Page 41

Default Icon
Print Icon
To Next Page IconTo Next Page
To Next Page IconTo Next Page
To Previous Page IconTo Previous Page
To Previous Page IconTo Previous Page
Loading...
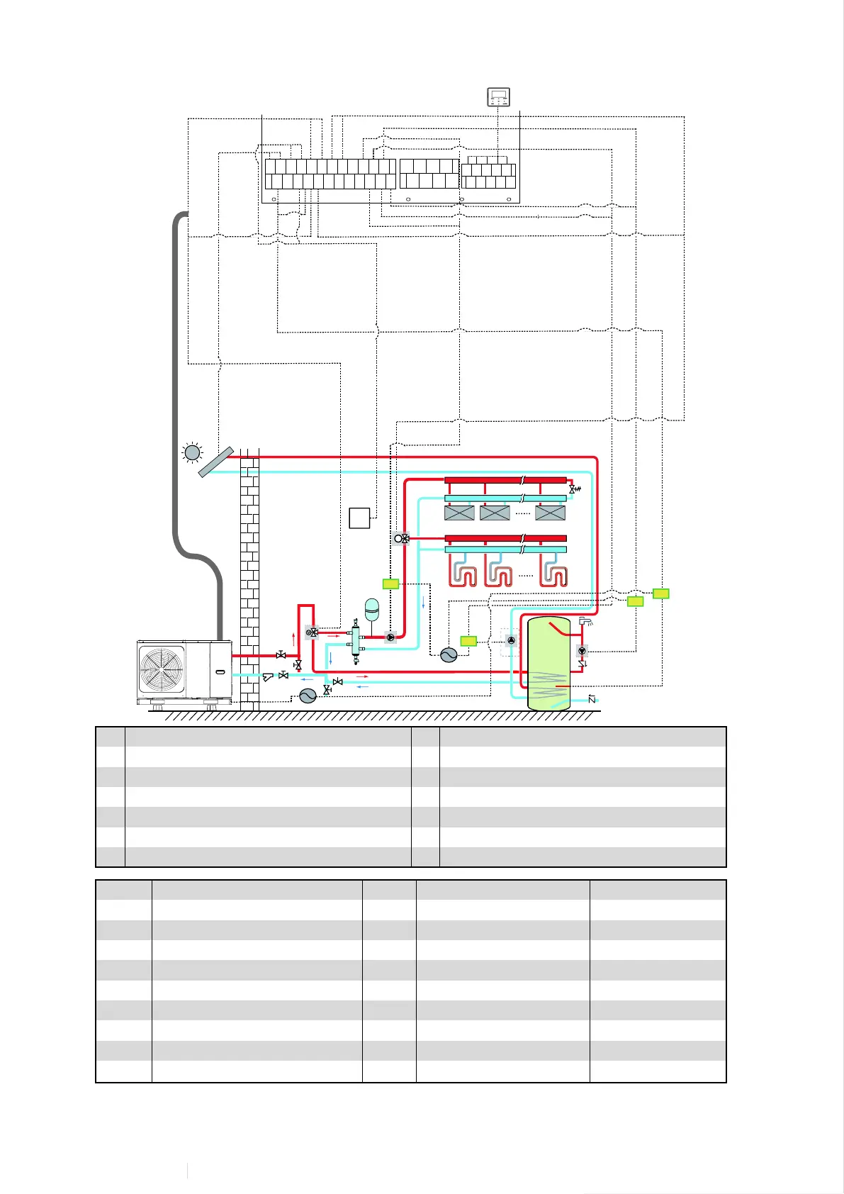
(a) Minimalny przekrój kabla AWG18 (0,75 mm
2
).
(b)W przypadku zbyt dużego natężenia obciążenia wymagany jest stycznik AC.
1
2
3
4
5
9
Opis AC/DC Wymagana liczba przewodników Maks. natężenie robocze
Pozycja
Kabel sterowania pompą CWU
SV2: kabel sterowania zaworu trójdrożnego
SV1: kabel sterowania zaworu trójdrożnego
Kabel sterowania grzałki wspomagającej
Kabel termostatu pokojowego
Kabel interfejsu użytkownika
Kabel sygnałowy zestawu energii słonecznej
AC
2
200mA
AC
5
200mA
AC
2
200 mA (a)
AC
2
3
200 mA (a)
AC 200 mA (a)
AC
3
200 mA (a)
AC
2
200 mA (a)
6
7
8
Kabel sterowania zewnętrzną pompą obiegu
Kabel sterowania pompą słoneczną
AC
2
200 mA (a)
AC
2
200 mA (a)
=HZQĊWU]QD
Kod
Jednostka montażowa
Jednostka zewnętrzna
Zestaw do energii słonecznej(do nabycia oddzielnie)
Interfejs użytkownika (sterownik przewodowy)
Termostat pokojowy wysokiego napięcia(do nabycia oddzielnie)
P_s: pompa układu solarnego (do nabycia oddzielnie)
P_o: Zewnętrzna pompa obiegowa(do nabycia oddzielnie)
Kod
Jednostka montażowa
P_d: pompa CWU(do nabycia oddzielnie)
SV2: zawór 3-drogowy(do nabycia oddzielnie)
SV1: zawór 3-drogowy do zbiornika ciepłej wody użytkowej(do nabycia oddzielnie)
Grzałka wspomagająca
Stycznik
Zasilacz
A
G
B
H
C
I
D
J
E
K
F
L
1
2
5
7
8
6
4
H
D
A
K
K
K
K
J
G
E
L
L
9
B
CN11 CN7 CN30
1
A
2
B
3
X
4
Y
5
E
6
P
7
Q
8
E
9
H1
10
H2
25
29
N
30
R1
31
DFT1
32
DFT2
26
HT
R2
27
AHS1
28
AHS2
1
SL1
2
SL2
3
C
4
TBH
5
1AN
N
6
7
1AUS
8
P_o
9
N
10
11
P_s
N
12
24
23
N
21
3AUS
N
2019
18
13
H
14
L1
15
IBH1
N
16
P_c
17
N
22
2AN
2AUS
P_d
3AN
3
M
F
:HZQĊWU]QD
C
I
T
41

Table of Contents

Related product manuals