EasyManua.ls Logo

Karel MS128 - Page 82

Karel MS128
90 pages
Print Icon
To Next Page IconTo Next Page
To Next Page IconTo Next Page
To Previous Page IconTo Previous Page
To Previous Page IconTo Previous Page
Loading...
Karel MS128 Installation & Maintenance Guide
Edition 3.2
74
Figure B-31
C
ABLING
:
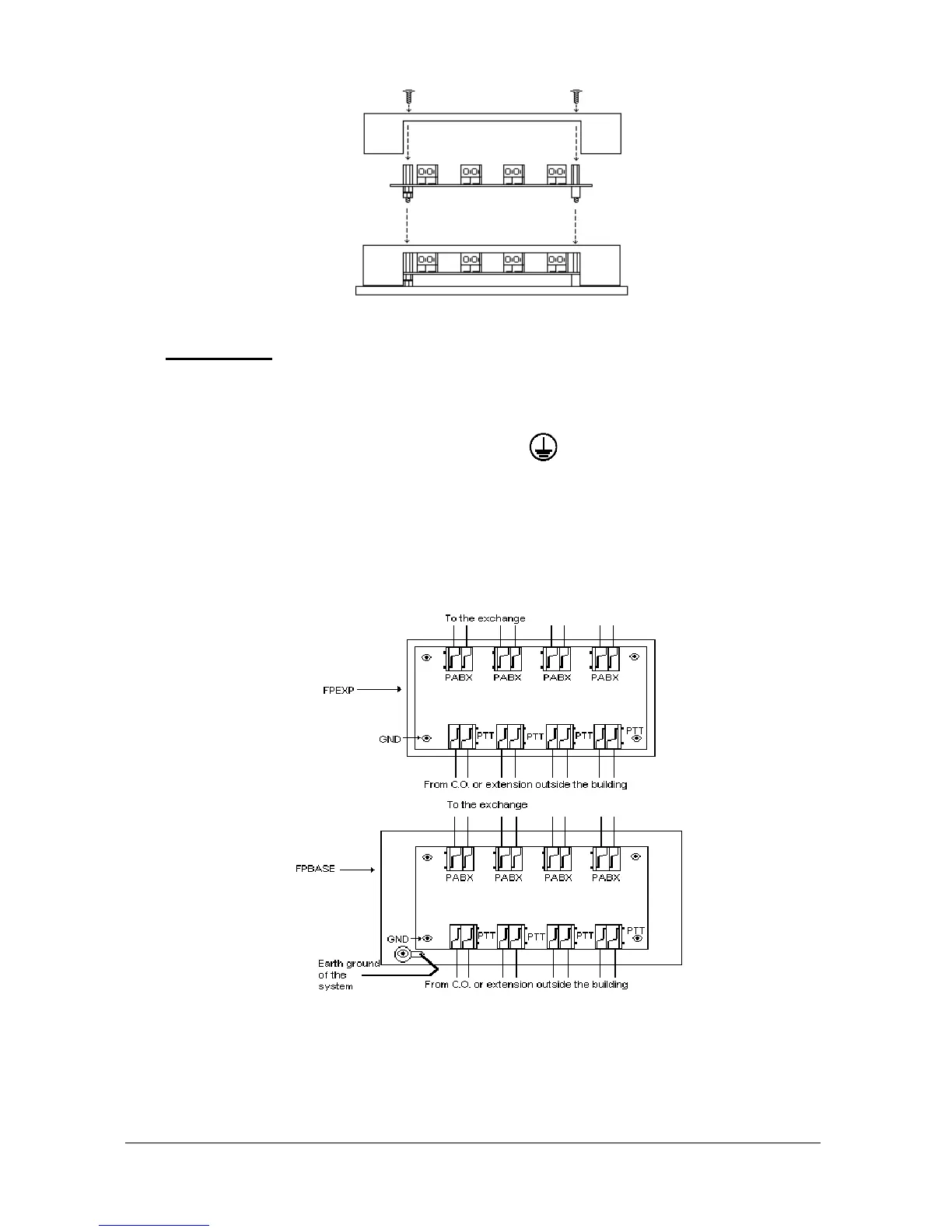
During the installation of FPBASE and FPEXP units, it is very important to
connect the ground of all the units to the chassis ground of the system. For that
there is a special connector on the metal base of FPBASE, which is to be
attached to the ground screw (labeled with )
that is located on the SPS128
module. This ground is carried to the FPEXP units by way of two washers and
a brass card holder (see Figure B-32).
It should be noted that the directions of the line / extension connections are
also important. The system side of the card is marked with “PABX" and the
external line (or far extensions) side is marked with “PTT" on the card, as
illustrated in the following figure.
Figure B-32
To get the utmost benefit from FPBASE and FPEXP units against lightning, the
modules should be installed 20 meters away from the system. This need not
be the physical distance but the length of the cables between the system and
the modules.

Table of Contents