EasyManua.ls Logo

Kenmore 795.69293.902 - 5. CIRCUIT DIAGRAM; Wiring Diagram and Color Codes

Kenmore 795.69293.902
37 pages
Print Icon
To Next Page IconTo Next Page
To Next Page IconTo Next Page
To Previous Page IconTo Previous Page
To Previous Page IconTo Previous Page
Loading...
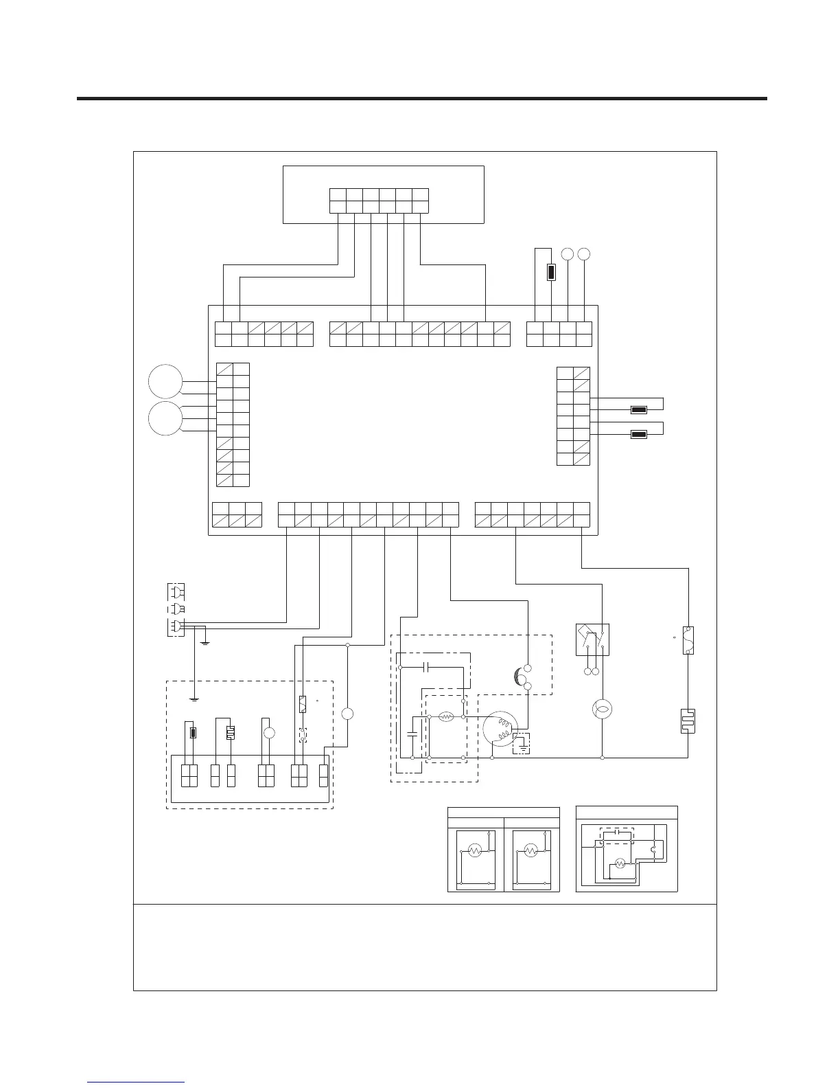
5. CIRCUIT DIAGRAM
- 16 -
PWB(PCB) ASSEMBLY, DISPLAY
CON101
2
BNRD
1
PK
3
YL
4
BL
5
RT-SENSOR
6
1 2 3 4 5 6
SB
WH
11 10
9 8 7 6 5 4 3 2 1
6
7
8
4321
1
2
3
4
5
1
2
3
4
5
6
7
10
9
8
BN
GYWH GY
CON5
CON6 CON8
11 10
9 8 7 6 5 4 3 2 1 5 6 71 2 3 4
123
CON3
CON1 CON2
CON7
CON4
RD
BN
PR
GY
WH
BO
BO
WH
WH
PRPK YL BL
SB
BK
BN
BLYLBNSB BL
PR
A B
DEF-SENSOR
R-SENSOR
C-FAN
F-FAN
GN/YL
PK
CAPACITOR PART
WH
1
1
CON4
MOTOR
1
WH
2
ICE MAKER
CON3
WH
2
CON5
1
SHEATH
ICE SENSOR
WH
M
BK
CON1
WH
HEATER,
CON2
Cs
3
2
RD
2
6
BK
1
S/W
CON6
P.T.C
BK
5
Cr
BL
POWER
4
RD
1
BL
I/MAKER W/VALVE
FUSE-M
(GN)
(98 C)
BK
FUSE-M
BL
OLP
PART
COMP' EARTH
(72 C)
GN
BL
HEATER
RD
(GN)
BL
R-LAMP
/YL
M
S
PWB (PCB) ASSEMBLY, ICE MAKER
ICE MAKER PART
POWER
SUPPLY
L
N
CORD
VV
SHEATH
com
nc
nc
com
DOOR S/W-R
A
B
SB BN YL BL BL BK
SB BN
PWB(PCB) ASSEMBLY, MAIN
DIFFERENT LOCALITIES AND MODEL TYPE.
ON CIRCUIT DIAGRAM ARE SUBJECT TO CHANGE IN
P.T.C,COMP' ACCESSORIES AND COMP' EARTH PART
*PLUG TYPE,ICE MAKER PART,CAPACITOR PART,
RD: RED
GN/YL: GREEN/YELLOW
WH: WHITE
BK/WH: BLACK/WHITE
BK: BLACK GN: GREEN GY: GRAY
YL: YELLOW
RD/WH: RED/WHITE
SB: SKY BLUE
PK: PINK
BL: BLUE
BL/WH: BLUE/WHITE
PR: PURPLE
BO: BRIGHT ORANGE
BN: BROWN
(GN)
GN/YL
COMP' ACCESSORIES
* ALTERNATIVE COMP'
LD,LQ COMP'
ACCESSORIES
EG COMP'
3
CR
BK
2
* P.T.C OPTION
L
BL
N
COMBO KIT
(PTC+OLP)
6
3
2
5
5
6
4
PTC
4
OLP

Related product manuals