EasyManua.ls Logo

Kenmore 795.69293.902 - Replacement Parts; Performance Data; Normal Operating Conditions; Air Flow

Kenmore 795.69293.902
37 pages
Print Icon
To Next Page IconTo Next Page
To Next Page IconTo Next Page
To Previous Page IconTo Previous Page
To Previous Page IconTo Previous Page
Loading...
PERFORMANCE DATA
(NORMAL OPERATING CONDITIONS)
SYSTEM PRESSURE (PSIG)
HIGH SIDE LOW SIDE
AMB WATTS
(-4) to 1
(-5) to (-2)
(-2) to 3
132 (+3 / -3)
98 (+5 / -3)
180 (+5 / -5)
98 (+10 / -10)
98 (+10 / -10)
103 (+5 / -5)
90°F
70°F
110°F
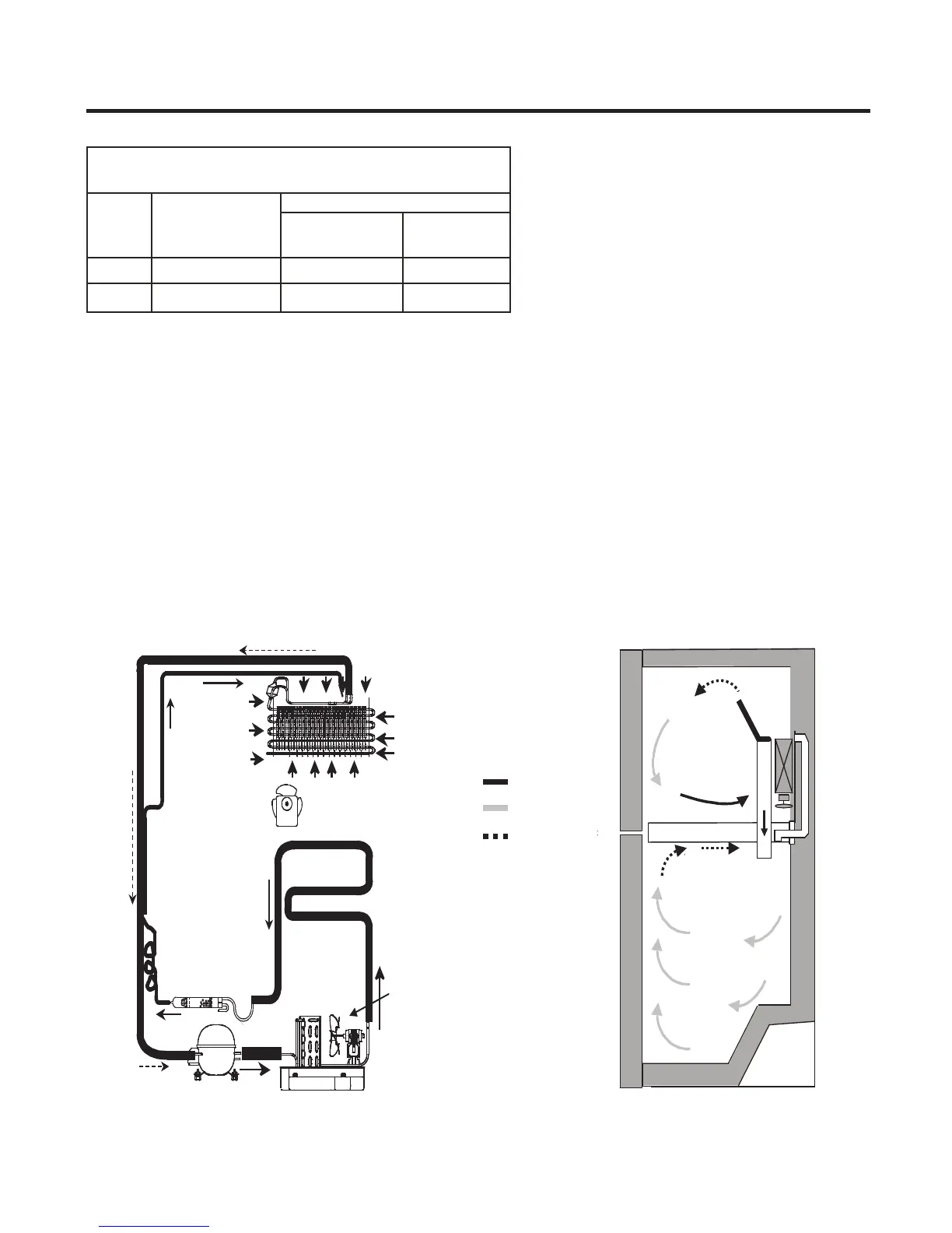
1-8 AIR FLOW
1-7 REPLACEMENT PARTS
Relay (PTC) ..................................EBG32606502
Overload Protector (OLP) ............. 6750C-0005P
Defrost Thermostat ....................... 6615JB2005C
Defrost Heater ................. 19cuft - 5300JK1003D
................. 22cuft - 5300JK1003J
Evaporator Fan Motor ................... 4681JB1029J
Capacitor ...................................... 0CZZJB2012J
Compressor (Hi-Side) .................. TCA33414101
Evaporator (Lo-Side) ........ 19cuft - 5421JJ0003A
........ 22cuft - 5421JJ0002A
Condenser ......................... 19cuft - 5403JJ1010A
......................... 22cuft - 5403JJ1008A
Dryer ............................................. 5851JJ2002F
Temperature Control .................... 6871JB2036D
Main Control ................................ EBR41531306
- 4 -
EVAPORATOR
EVAPORATOR FAN
DRYER
HOT LOOP
COMPRESSOR
CONDENSER
CONDENSER FAN
CONTROL
FREEZER
COLD AIR
MIXED AIR
AIR RETURN TO
EVAPORATOR
EVAPORATOR
FRESHFOOD

Related product manuals