EasyManua.ls Logo

Keystone KS - Page 23

Keystone KS
60 pages
Print Icon
To Next Page IconTo Next Page
To Next Page IconTo Next Page
To Previous Page IconTo Previous Page
To Previous Page IconTo Previous Page
Loading...
Keystone Boilers and Water Heaters
Page 23
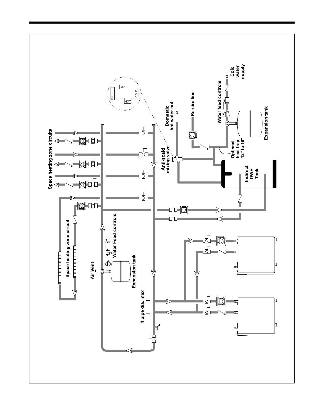
Figure 17. Hydronic Piping — Multiple Boilers with Indirect DWH Tank Piped from System Loop.
KeystoneKeystone
KeystoneKeystone
Keystone
KeystoneKeystone
KeystoneKeystone
Keystone

Table of Contents