EasyManua.ls Logo

Kioto Solar FWS 20 E - Drilling Plan for Wall Fastening

Kioto Solar FWS 20 E
20 pages
Print Icon
To Next Page IconTo Next Page
To Next Page IconTo Next Page
To Previous Page IconTo Previous Page
To Previous Page IconTo Previous Page
Loading...
14
E & OE, subject to change without notice.
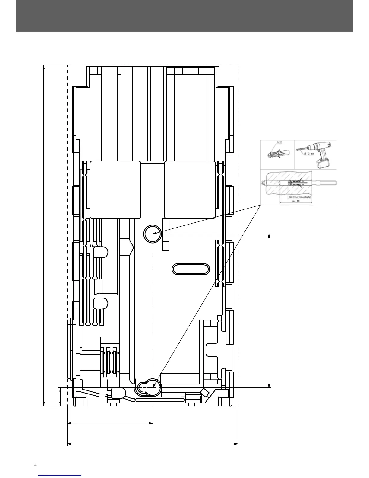
Drilling plan for wall fastening
800
360,5
43,5
200
400