EasyManua.ls Logo

KIRLOSKAR KC2 - Oil System Component Parts; Oil Filter Assembly

KIRLOSKAR KC2
58 pages
Print Icon
To Next Page IconTo Next Page
To Next Page IconTo Next Page
To Previous Page IconTo Previous Page
To Previous Page IconTo Previous Page
Loading...
39
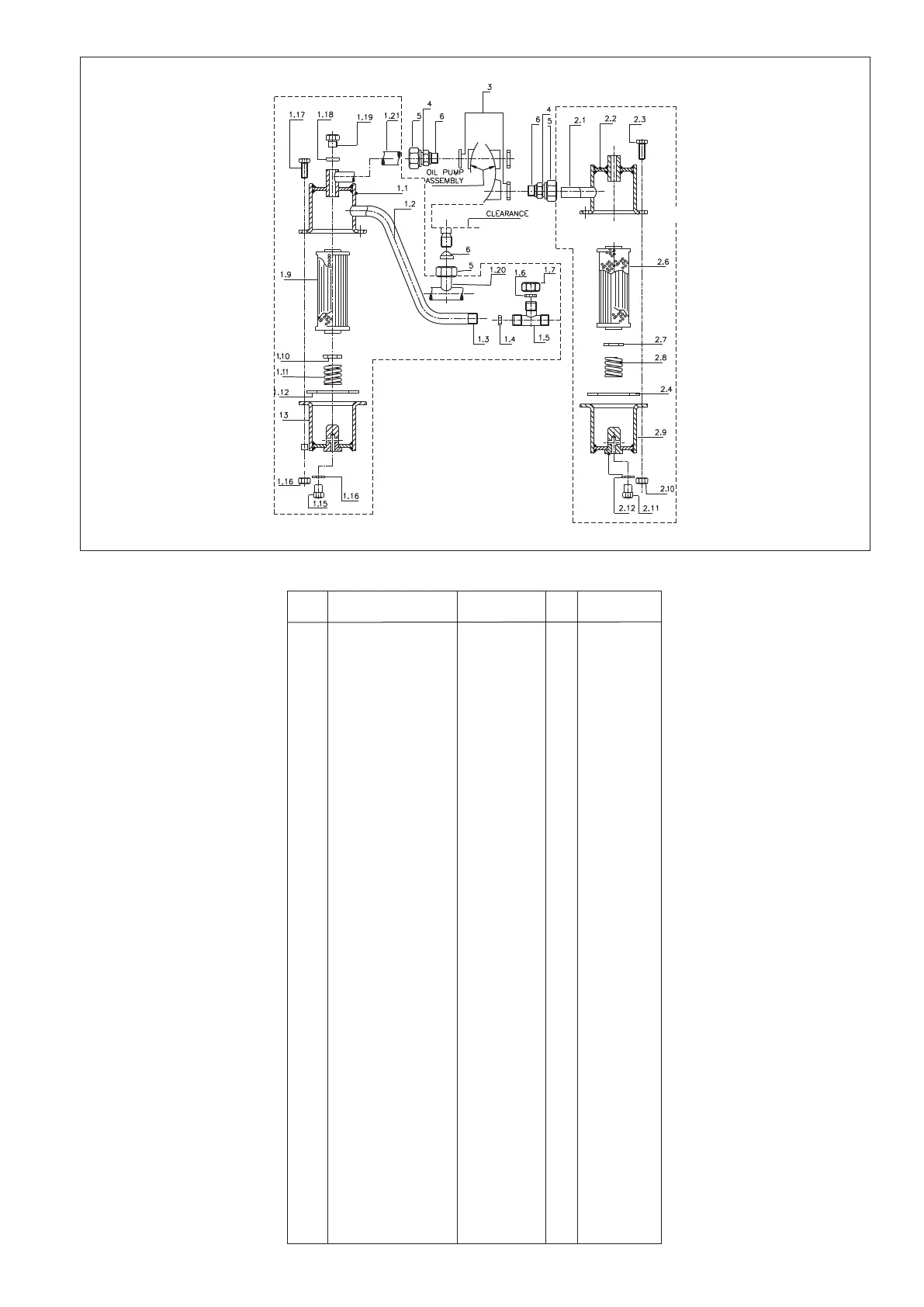
11.10 OIL FILTER ASSEMBLY (Figure No. 40)
Sr. Name of the Part Part No. Qty. Remark
No.
1 Suction Filter Assly. 336.10.023.50 1
1 .1 Top Housing Assly. 336.10.033.50 1
1.2 Pipe Bend l 1 Included in 1.1
1.3 Welding Adaptor l 1 Included in 1.1
1.4 Packing 999.18.525.50 1
1.5 TAH-8 Valve Assly. 351.09.003.50 1
1.6 Packing 999.18.525.50 1
1.7 Cap Nut 082.28.500.50 1
1.8 - - - -
1 .9 Filter wire gauge 336.10.009.50 1 *
1 .10 Spacer Ring 336.10.007.50 1
1 . 11 Spring 336.10.006.50 1
1 .12 Gasket 085.06.410.50 1 *
1 .13 Bottom Housing Assly. 336.10.034.50 1
1 .14 Hex Nut M 1 0 999.06.632.50 8
1.15 Plug 1/4" BSP 082.07.230.50 1
1 .16 Packing 999.18.525.50 1
1 .1 7 Hex Hd Screw M 1Ox30 999.01.369.50 8
1 .18 Packing 999.18.537.50 1
1 .19 Plug 1/2" BSP 082.28.920.50 1
1.20 Pipe 22 Dia - 1 Included in 1.1
1.21 Pipe 22 Dia - 1 Included in 1.1
2 Discharge Filter Assly. 336.10.031 .50 1
2.1 Pipe l 1 Included in 2.2
2.2 Top Housing Assly. 336.10.032.50 1
2.3 Hex Hd Screw Ml0 x 30 999.01.369.50 8
2.4 Gasket 085.06.410.50 1 *
2.5 - - - -
2.6 Paper Filter 351.09.014.50 1 *
2.7 Spacer Ring 336.10.007.50 1
2.8 Spring 336.10.006.50 1
2.9 Bottom Housing Assly. 336.10.034.50 1
2.10 Hex Nut Ml0 999.06.632.50 8
2.11 Plug 1/4" BSP 082.07.230.50 1
2. 12 Packing 999.18.525.50 1
3. Packing 999.18.548.50 2
4. Ferrule 999.16.027.50 3 For 22 Dia
5. Union Nut 999.16.087.50 3 tubing
6. Socket Union Screw 999.16.267.50 2
- Socket union screw Assly. 998.16.867.50 - Consist of Item 4,5,6
*AVAILABLE WITH OIL FILTER KIT ONLY (SPEC. NO.0852803)
Figure 40

Related product manuals