EasyManua.ls Logo

KitchenAid KBLC36FMS00 - Architect Series Custom Side Panels; Architect Series Side Panel Dimensions; Inset Installation Dimensions; Flush Installation Dimensions

KitchenAid KBLC36FMS00
68 pages
Print Icon
To Next Page IconTo Next Page
To Next Page IconTo Next Page
To Previous Page IconTo Previous Page
To Previous Page IconTo Previous Page
Loading...
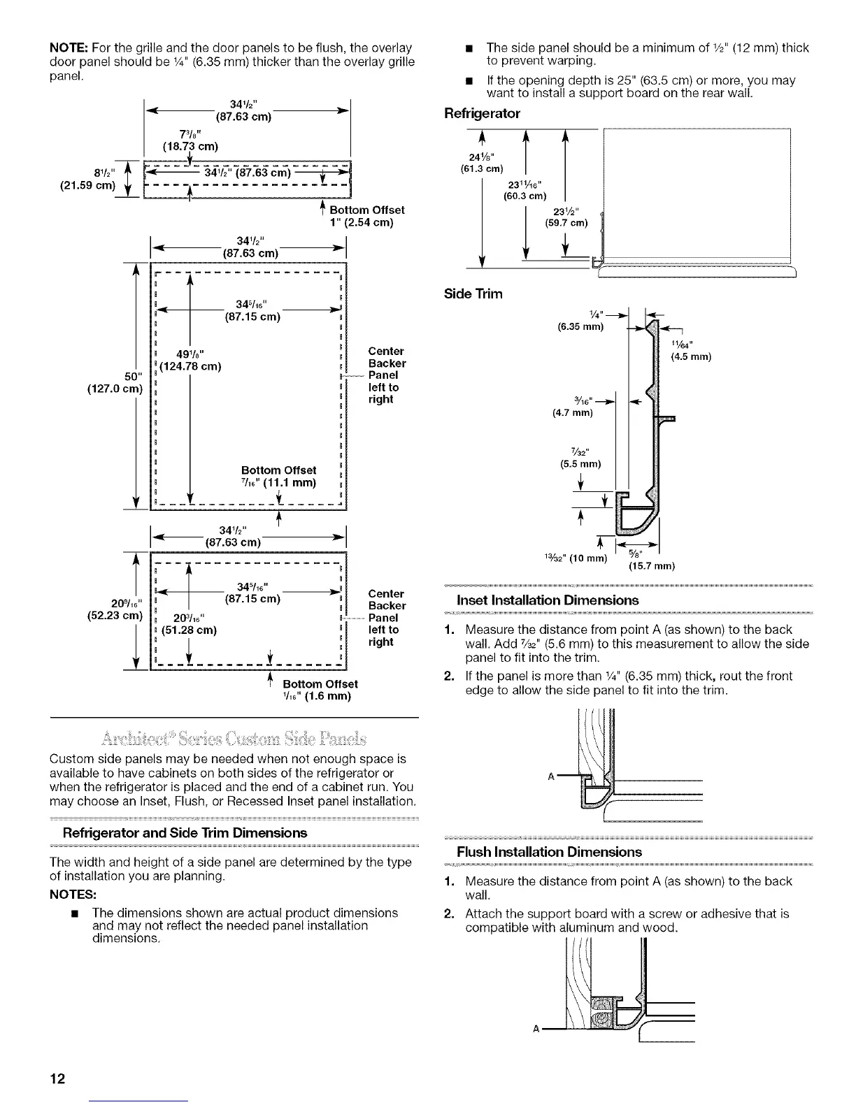
NOTE: For the grille and the door panels to be flush, the overlay
door panel should be 1/4"(6.35 mm) thicker than the overlay grille
panel.
341/2''
(87.63 cm)
73/8,,
(18.73 cm)
I
J,
8W' T _ 34W' (87.63 cm)
(21.5g cm)__ _'
_ Bottom Offset
1" (2.54 cm)
341/2''
(87.63 cm)
50"
(127.0cm)
l 34_h6''
(87.15 cm)
491/8,,
(124.78 cm)
t
209/_6''
(52.23cm)
Center
Backer
Panel
left to
right
Bottom Offset
7/16"(11.1 mm)
==r ........ t ......
+
I*- 34v ''
(87.63 cm)
t m Center
34sh6" ____
I (87.15 cm) i I Backer
203/16" m...........................Panel
(51.28 cm) mm leftto
right
___ ...... J
Bottom Offset
1/16"(1.6 mm)
Custom side panels may be needed when not enough space is
available to have cabinets on both sides of the refrigerator or
when the refrigerator is placed and the end of a cabinet run. You
may choose an Inset, Flush, or Recessed Inset panel installation.
; r ; r; r
Refrigerator and Side Trim Dimensions
The width and height of a side panel are determined by the type
of installation you are planning.
NOTES:
The dimensions shown are actual product dimensions
and may not reflect the needed panel installation
dimensions.
The side panel should be a minimum of 1/2"(12 mm) thick
to prevent warping.
If the opening depth is 25" (63.5 cm) or more, you may
want to install a support board on the rear wall.
Refrigerator
241/8,,
(61.3 cm)
(60.3 cm)
231/2 ''
(59,7 cm)
¼" _ _- q(6.35 mm)
11/64"
(4,5 mm)
Side Trim
(4"7 mm) / _
(5.6 I
Wa2"(10ram) I %,,
(15,7 ram)
Inset Installation Dimensions
1. Measure the distance from point A (as shown) to the back
wall. Add %2" (5.6 mm) to this measurement to allow the side
panel to fit into the trim.
2. If the panel is more than 1/4"(6.35 mm) thick, rout the front
edge to allow the side panel to fit into the trim.
Flush Installation Dimensions
1. Measure the distance from point A (as shown) to the back
wall.
Attach the support board with a screw or adhesive that is
compatible with aluminum and wood.
I ,
f---
12

Related product manuals