EasyManua.ls Logo

KitchenAid KBLC36FMS00 - Page 56

KitchenAid KBLC36FMS00
68 pages
Print Icon
To Next Page IconTo Next Page
To Next Page IconTo Next Page
To Previous Page IconTo Previous Page
To Previous Page IconTo Previous Page
Loading...
Le poids du panneau decoratif de la porte du congelateur ne
peut depasser 30 Ib (13,5 kg).
Le poids du panneau decoratif de la grille superieure ne peut
depasser 10 Ib (4,5 kg).
Pour minimiser le poids du panneau, vous pouvez utiliser des
tringles d'espacement de 2" (5,08 cm) sur le perimetre a la place
d'une plaque d'espacement massif. Les tringles d'espacement
doivent _tre installees a au moins 1" (2,54 cm) des rives
superieure, inferieure et laterales du panneau de soutien. Si on
utilise des tringles d'espacement, il est aussi recommande
d'utiliser 2 tringles de 2" (5,08 cm) centrees horizontalement pour
un soutien additionnel.
REMARQUE : Pour que la grille et les panneaux de porte soient
au m6me niveau, le panneau decoratif de la porte dolt _tre 1/4"
(6,35 mm) plus epais que le panneau a recouvrement de la grille.
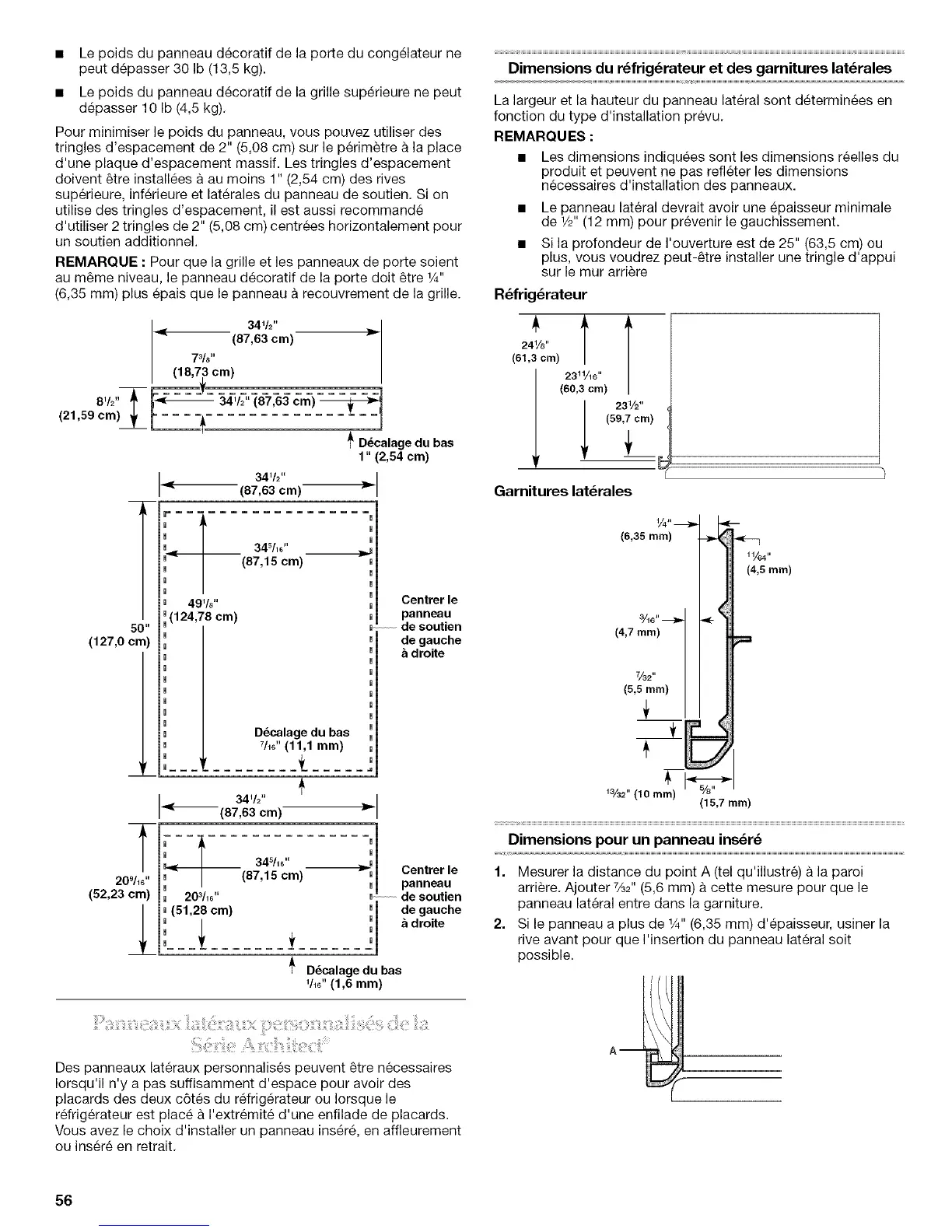
I_ 34V2" _ I
(87,63 cm) r
7_/8,,
(18,73 cm)
8'/_"T _ 34'1_" (87,63 cm) _"_
(21,59cm) _ L_,__ _ _]
D_calage du bas
50"
(127,0 cm)
34V2"
< (87,63 cm)
r l 34%6"
(87,15 cm)
49%"
(124,78 cm)
D_calagedu bas
7/16"(11,1 mm)
1" (2,54 cm)
m
m
m
Centrer le
panneau
de soutien
de gauche
droite
t
209116"
(52,23 cm)
.___ 34112" _ II
(87,63 cm)
l 34%6"
Centrerle
l I (87,1 cm)
panneau
l 203h6'' l de soutien
i (51,28 cm) loJ de gauche
l / i a droite
D_calagedu bas
%o"(1,6 mm)
Des panneaux lateraux personnalises peuvent _tre necessaires
Iorsqu'il n'y a pas suffisamment d'espace pour avoir des
placards des deux c6tes du refrigerateur ou Iorsque le
refrig6rateur est place a I'extremit6 d'une enfilade de placards.
Vous avez le choix d'installer un panneau insere, en affleurement
ou inser6 en retrait.
Dimensions du r_frig_rateur et des garnitures lat_rales
La largeur et la hauteur du panneau lateral sent determinees en
fonction du type d'installation prevu.
REMARQUES :
Les dimensions indiquees sent les dimensions reelles du
produit et peuvent ne pas refleter les dimensions
necessaires d'installation des panneaux.
Le panneau lateral devrait avoir une epaisseur minimale
de 1/_,,(12 mm) pour prevenir le gauchissement.
Si la profondeur de I'ouverture est de 25" (63,5 cm) ou
plus, vous voudrez peut-_tre installer une tringle d'appui
sur le mur arriere
R_frig_rateur
24Y8"
(61,3 cm)
(60,3 cm)
231/2 `'
(59,7 cm)
Garnitures lat_rales
1/4"
(6,35 mm)
(4,7 mm) 1
(5'5 mm) I
_a/a_"(10ram) %"
(15,7 ram)
-_4/._"mm)
Dimensions pour un panneau ins_r_
1. Mesurer la distance du point A (tel qu'illustre) a la paroi
arriere. Ajouter %2" (5,6 mm) a cette mesure pour que le
panneau lateral entre dans la garniture.
2. Si le panneau a plus de 1/4"(6,35 mm) d'epaisseur, usiner la
rive avant pour que I'insertion du panneau lateral soit
possible.
56

Related product manuals