EasyManua.ls Logo

Kity 439 - Page 36

Kity 439
80 pages
Print Icon
To Next Page IconTo Next Page
To Next Page IconTo Next Page
To Previous Page IconTo Previous Page
To Previous Page IconTo Previous Page
Loading...
FR
21
20
35
- Une paire de fers est déjà montée et réglée d’usine.
- Changer et régler de préférence un fer après l’autre.
- Couper le moteur et débrancher la machine.
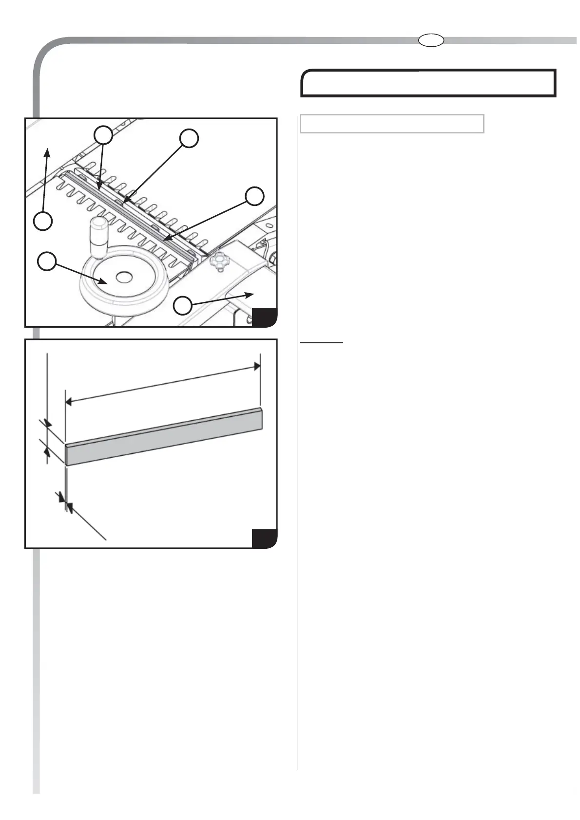
- Retirer le cache lame (G) ou faites tourner le bras du cache
lame sur son axe (le volant (M
1) est amovible, si besoin est).
- Dégager le guide d’angle (C) de la table.
- Desserrer les 4 vis (P) du serre-fer (Q).
- Retirer le fer (R).
- Vérifier la propreté de son logement, au besoin, démonter le
serre-fer (Q) pour le nettoyer.
- Remettre le nouveau fer en place.
- Serrer légèrement les 2 vis extérieures (P) du serre-fer,
de façon à ce que le fer puisse encore coulisser, mais sans
tomber.
7. UTILISATION DE LA MACHINE
a. Changement des fers de l’outil
(20)
G
C
P
Q
R
M1
Important : Seul ces dimensions de fers sont autorisées à
être montées sur cette machine (21).
Seuls les outils conformes à l’EN 847-1 et marqués MAN
doivent être utilisés.
Couple de serrage des vis = 15N/m
200 mm
2,5 mm
20 mm

Table of Contents

Related product manuals