EasyManua.ls Logo

klover BI-FIRE MID - CLEANING AND MAINTENANCE; Precautions before cleaning

klover BI-FIRE MID
Print Icon
To Next Page IconTo Next Page
To Next Page IconTo Next Page
To Previous Page IconTo Previous Page
To Previous Page IconTo Previous Page
Loading...
26
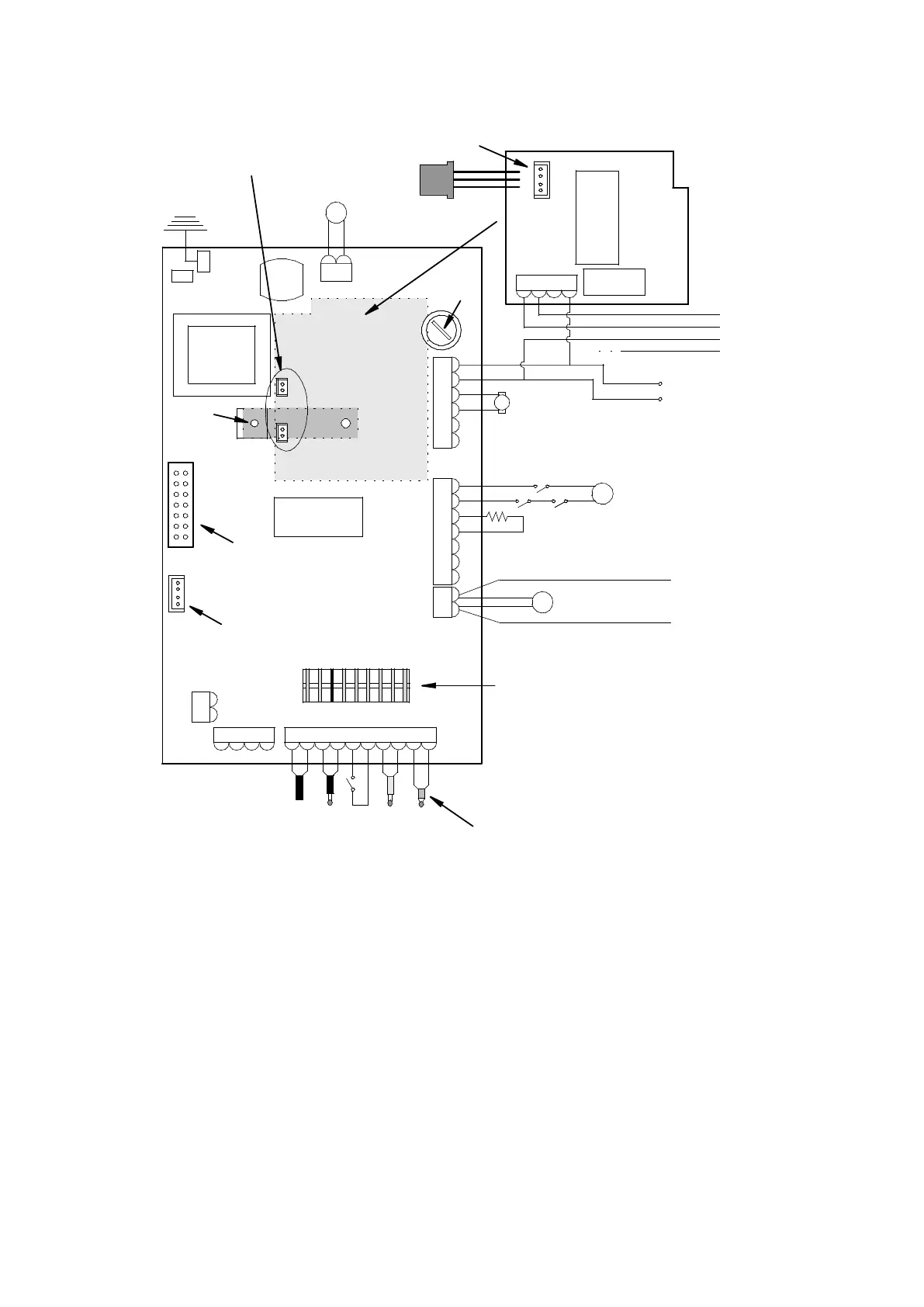
WIRING DIAGRAM
Transformer
Ignition relay
Earth
Flue gas extraction
intake device
Live
Neut ral
230Vac
NETWORK
Brown
Blue
M
Screw feed motor
reducer
ALF ALP
Ignition
resistance
Room
thermostat
CN4
CN8
CN9
CN13
CN5
CN1
CN2
CN3
CN7
Fuse
3,15A 5X20
N.PE L. N.H20
N.AMB. TERM.
Blue
Red
Water
probe
-TC1+
ACC. COC.
N
F
SCAM.
FUMI
N
AL1AL2
Important: Do not
invert the position of
the wires
Chrono-thermostat
clock connector
CN6
CN6
Relay
Expansion board for 3-way valve
(optional)
Dissipater
N
F
SCAM
FUMI
CN15
KEY:
ALP = Door closure micro switch
ALF = Flue gas pressure switch
ALT = Manual rearm thermostat
Fuse
4A 5X20
Connector t o CN13 on
board I023
New serial connection
Expansion board I055 connected to I023 with
connectors CN10 and CN12
CN3
CN12
CN10
Fastening
screws
Brown on cable
Black on cable
Blue on cable
Green/yellow eart
BOARD I023
CN14
Connector for serial
or expansion board
connection
Display
connector
Wires (with 220V)control of ant
coupled boiler
4X0.75 cable (optional) for connection
of th e m otorised 3-w ay valve
SCAM.
AUX
ALT
P
Heating system
pump
Recirculation
pump
P
Levelling
device
Wood side
fumes probe
Pellet side
fumes probe
WHAT HAPPENS IF...
...the thermo stove does not switch on
In case of no ignition, the “NO FIRE” alarm is displayed.
Hold button 4 (switch on/off) for a few seconds to restore the thermo stove to standard conditions (remove the alarm).
...lack of power for a few seconds
Once the power is restored, the thermo stove immediately restarts from the status it had before the power outage (recovering the set work power).
... lack of power
As soon as the power is restored after a power outage, the thermo stove sets on “STOP FIRE mode and carries out the entire switch off cycle until its
cooling. Once this phase is completed, the thermo stove can be normally switched on to proceed working at the set power.
…the fire-door is open or closed improperly
In case the door is open or closed improperly, the motor reducer cannot be powered electrically, not allowing the thermo stove to switch on. If the thermo
door is opened during the normal operation, the thermo stove burns all the pellet in the brazier, activating the “ALAR NO FIRE” alarm (sudden switch off).
The flue is dirty, blocked or not manufactured correctly.
In case the flue is dirty, blocked or not manufactured correctly, the motor reducer cannot be powered electrically not allowing the thermo stove to switch on.
If the flue blocks during the normal operation, the thermo stove burns all the pellet in the brazier, activating the “ALAR NO FIRE alarm (sudden switch off).
...the stove is overheated
In case of water over-temperature in the boiler, the message “ALAR HOT H2O” is first displayed followed by an acoustic alarm. At this point the motor
reducer is not electrically powered, because the rearm safety thermostat is activated. Therefore the thermostat must be rearmed before switching on the
stove.

Table of Contents

Other manuals for klover BI-FIRE MID

Related product manuals