EasyManua.ls Logo

Kohler 12RES

Kohler 12RES
132 pages
To Next Page IconTo Next Page
To Next Page IconTo Next Page
To Previous Page IconTo Previous Page
To Previous Page IconTo Previous Page
Loading...
TP-6196 10/0986 Section 6 Component Testing and Adjustment
Governor System Operation Test Procedure
1. Verify that the carburetor throttle linkage is
connected to the stepper motor as shown in
Figure 6-20.
2. Look for broken or loose wiring or plug connections
if the stepper motor moves erratically. Check the
condition of the throttle linkage, and verify that the
throttle plate closes completely.
3. Check the operation of the stepper motor at
startup.
a. If the throttle moves to the fully open throttle
position and then steps to and remains in the
fully closed position, the engine speed input is
probably missing. The engine starts and then
shuts down on an overspeed fault. Proceed to
step 4 to check the magnetic pickup.
b. If the throttle linkage moves erratically or not at
all at startup, proceed to step 7 to check the
stepper motor.
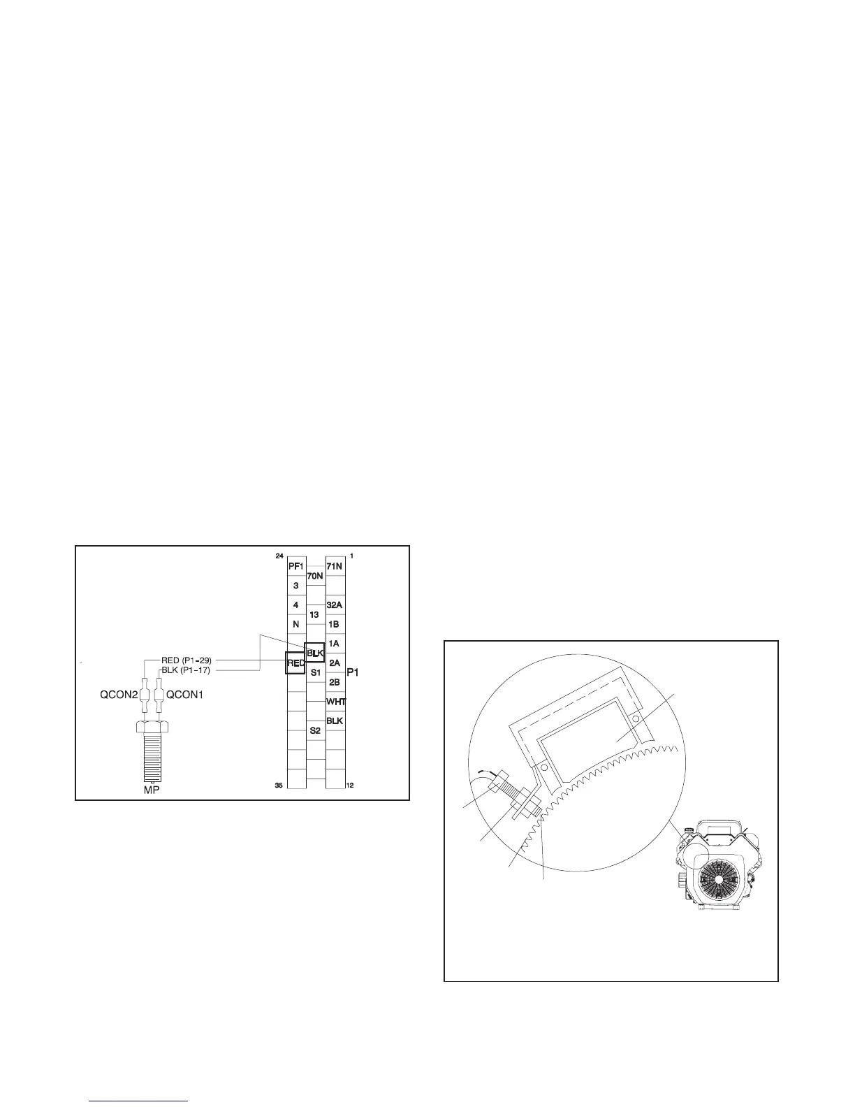
4. Verify the operation of the magnetic pickup by
connecting a voltmeter to the magnetic pickup
leads. See Figure 6-22. If the air gap is correct, the
voltage should be 1.75 volts AC minimum during
engine cranking.
6196
Figure 6-22 Magnetic Pickup Leads
5. If the voltmeter displays less than 1.75 volts AC,
check the air gap as described in the following
steps before replacing the sensor. Verify that the
magnetic pickup air gap is 0.5 mm (0.020 in.).
Measure the air gap at 3 or 4 places to get an
accurate reading. See Figure 6-23.
a. Stop the generator set. Remove housing
panels as required to gain access to the front of
the engine.
b. Remove the engine blower housing.
c. Use a feeler gauge to check the gap. The gap
should be 0.5 mm (0.020 in.).
d. Adjust the air gap, if necessary, by loosening
the locknut and turning the pickup. See
Figure 6-23.
e. Hold the pickup in position and retighten the
locknut.
f. Verify the magnetic pickup air gap after
tightening the locknut.
g. Reinstall the engine blower housing.
h. Reinstall the junction box and housing panels
removed to gain access to the front of the
engine.
6. After adjusting the air gap, check the voltage again
as described in step 4. If the voltage does not
measure 1.75 VAC minimum, replace the magnetic
pickup.
A-358000B-C
1
2
3
4
5
1. Ignition module
2. Air gap, 0.5 mm (0.020 in.)
3. Top of flywheel ring gear tooth
4. Lock nut
5. Magnetic pickup
Figure 6-23 Magnetic Pickup Air Gap

Table of Contents

Other manuals for Kohler 12RES

Related product manuals