EasyManua.ls Logo

Kohler 15RYG

Kohler 15RYG
64 pages
To Next Page IconTo Next Page
To Next Page IconTo Next Page
To Previous Page IconTo Previous Page
To Previous Page IconTo Previous Page
Loading...
TP-6329 8/0718 Section 2 Open Units
Generator set operation. Carbon monoxide can cause
severe nausea, fainting, or death. Carbon monoxide is an
odorless, colorless, tasteless, nonirritating gas that can cause
death if inhaled for even a short time. Avoid breathing exhaust
fumes when working on or near the generator set. Never
operate the generator set inside a building unless the exhaust
gas is piped safely outside. Never operate the generator set
where exhaust gas could accumulate and seep back inside a
potentially occupied building.
Satisfactory generator set performance requires proper
exhaust system installation. The following sections
detail exhaust system components.
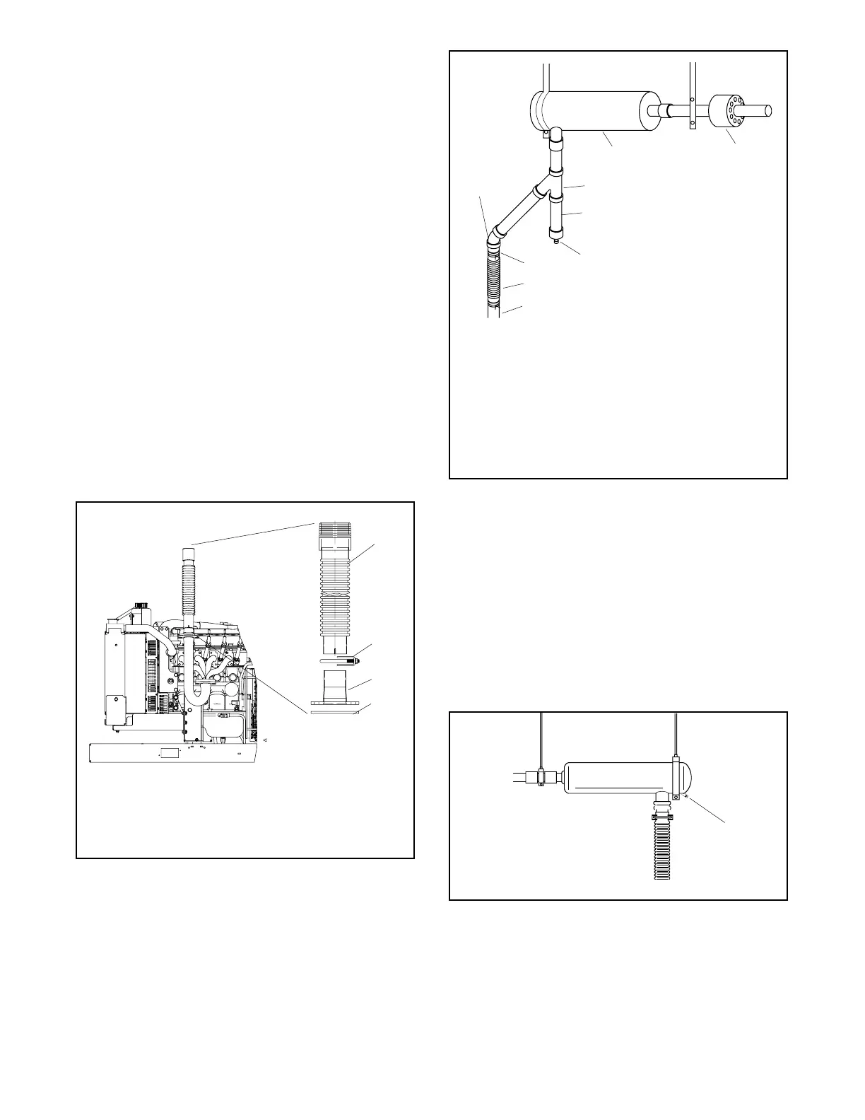
2.3.1 Flexible Exhaust Line
For units without enclosures or with separately mounted
exhaust systems, install the flexible exhaust kit onto the
engine exhaust outlet. See Figure 2-7 and Figure 2-8.
The flexible line limits stress on the engine exhaust
manifold or turbocharger. Never allow the engine
manifold or turbocharger to support the silencer or
exhausting piping.
Note: Do not bend the flexible section or use it to
compensate for misalignment between the
engine exhaust and the exhaust piping.
1. Flexible exhaust line
2. Clamp
3. Exhaust pipe
4. Gasket
1
tp6329
2
3
4
Figure 2-7 Flexible Exhaust Kit
3
7
6
1
2
9
8
TP-5700-5
1. Exhaust wall thimble
2. Muffler
3. 45° Y fitting
4. Water trap
5. Drain petcock
6. Outer diameter adapter and clamp
7. Flexible section
8. Manifold
9. 45° elbow
4
5
Figure 2-8 Exhaust System, Side-Inlet Silencer
2.3.2 Condensation Trap
Some silencers are equipped with a drain pipe plug for
draining condensation, see Figure 2-9. Otherwise,
install a wye- or tee-type condensation trap with a drain
plug or petcock between the engine and the exhaust
silencer as shown in Figure 2-10. The trap prevents
condensed moisture in the engine exhaust from
draining into the engine after shutdown. Periodically
drain collected moisture from the trap.
1
TP-5700-5
1. Pipe Plug
Figure 2-9 Silencer Condensation Drain Plug

Other manuals for Kohler 15RYG

Related product manuals