EasyManua.ls Logo

Kohler 15RYG

Kohler 15RYG
64 pages
To Next Page IconTo Next Page
To Next Page IconTo Next Page
To Previous Page IconTo Previous Page
To Previous Page IconTo Previous Page
Loading...
TP-6329 8/0720 Section 2 Open Units
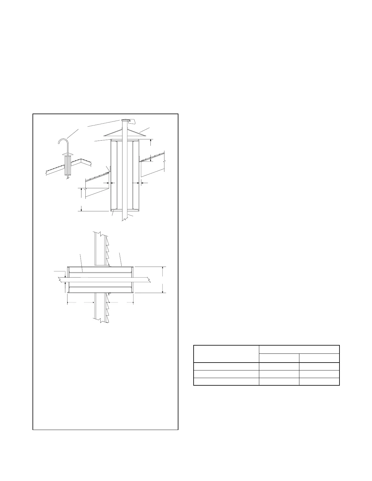
Rain cap. To prevent precipitation from entering the
exhaust pipe, install a rain cap on vertical outlets. See
Figure 2-11. In a climate where freezing is common, do
not use a rain cap. Instead, extend the exhaust piping at
least 610 mm (24 in.) beyond the roof line and create a
gradual U bend at the end to direct the exhaust outlet
downward. Keep the pipe outlet at least 457 mm (18 in.)
from the roof to prevent hot exhaust from igniting the roof
material.
Note: Avoid using a rain cap in areas subject to freezing
temperatures.
5
8
1
2
3
4
9
7
6
10
11
15
12
13
14
TP-5700-5
6
1. Rain cap (or gradual U bend)
2. Rain shield
3. 254 mm (10 in.) minimum
4. 25 mm (1 in.) minimum
5. Exhaust pipe
6. Ventilation holes at both ends
7. 254 mm (10 in.) minimum
8. 25 mm (1 in.) minimum
9. Flashing
10. Inner sleeve
11. Outer sleeve
12. Thimble outer diameter
13. 254 mm (10 in.) minimum outside
14. 254 mm (10 in.) minimum inside
15. Exhaust pipe diameter
Figure 2-11 Double-Sleeved Thimbles and Rain Cap
2.3.6 Exhaust System Backpressure
Exhaust backpressure limits engine power and
excessive backpressure causes serious engine
damage. Excessive backpressure usually results from
one or more of the following reasons:
D The exhaust pipe diameter is too small.
D The exhaust pipe is too long.
D The exhaust system has too many sharp bends.
D The exhaust silencer is too small.
D The exhaust silencer is not the correct design for the
application.
The engine’s maximum exhaust backpressure limit is
10.2 kPa (3.0 in. Hg). Use the following procedure to
verify that the installed exhaust system does not exceed
the maximum exhaust backpressure limit.
Exhaust System Backpressure Calculation
Procedure
Determine the total backpressure by calculating the
effects of the individual exhaust system components
and adding the results. Make calculations using either
English or metric units. Exhaust pipe references are
nominal pipe NPT (in.) sizes. The procedure shows an
example with italic text.
1. Identify the type of silencer used in the application
and refer to Figure 2-12 for the silencer back
pressure.
Example: Determine the silencer backpressure for
the recommended critical silencer on a model
30RYG generator set.
Silencer backpressure = 5.5 kPa (1.6 in. Hg)
2. Refer to Figure 2-12 for the backpressure from the
J-shaped engine-mounted exhaust pipe.
Example: Determine the exhaust pipe
backpressure for a model 30RYG generator set.
Exhaust pipe backpressure = 1.7 kPa (0.5 in. Hg)
Silencer T ype
Backpressure, kPa (in. Hg.)
15RYG 30RYG
Residential, SIEO, 2 in. NPT 1.5 (0.47) 4.7 (1.4)
Critical, SIEO, 2 in. NPT 1.7 (0.51) 5.5 (1.6)
Exhaust J-tube 0.3 (0.1) 1.7 (0.5)
Figure 2-12 Silencer and Engine Exhaust Pipe Back
Pressures

Other manuals for Kohler 15RYG

Related product manuals