EasyManua.ls Logo

Kohler 15RYG

Kohler 15RYG
64 pages
To Next Page IconTo Next Page
To Next Page IconTo Next Page
To Previous Page IconTo Previous Page
To Previous Page IconTo Previous Page
Loading...
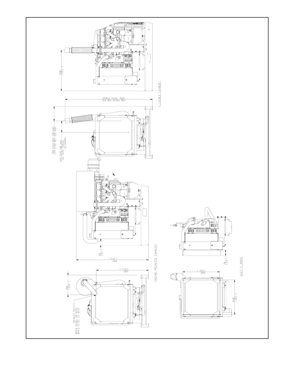
TP-6329 8/07 49Section 7 Dimension Drawings
ADV-6916B-E
Note: Dimensions are in mm [in.].
Figure 7-3 Dimension Drawing, ADV-6916B-E, Sheet 2, Exhaust Options and Duct Flange

Other manuals for Kohler 15RYG

Related product manuals