EasyManua.ls Logo

Kohler 40-150EOZDJ

Kohler 40-150EOZDJ
84 pages
To Next Page IconTo Next Page
To Next Page IconTo Next Page
To Previous Page IconTo Previous Page
To Previous Page IconTo Previous Page
Loading...
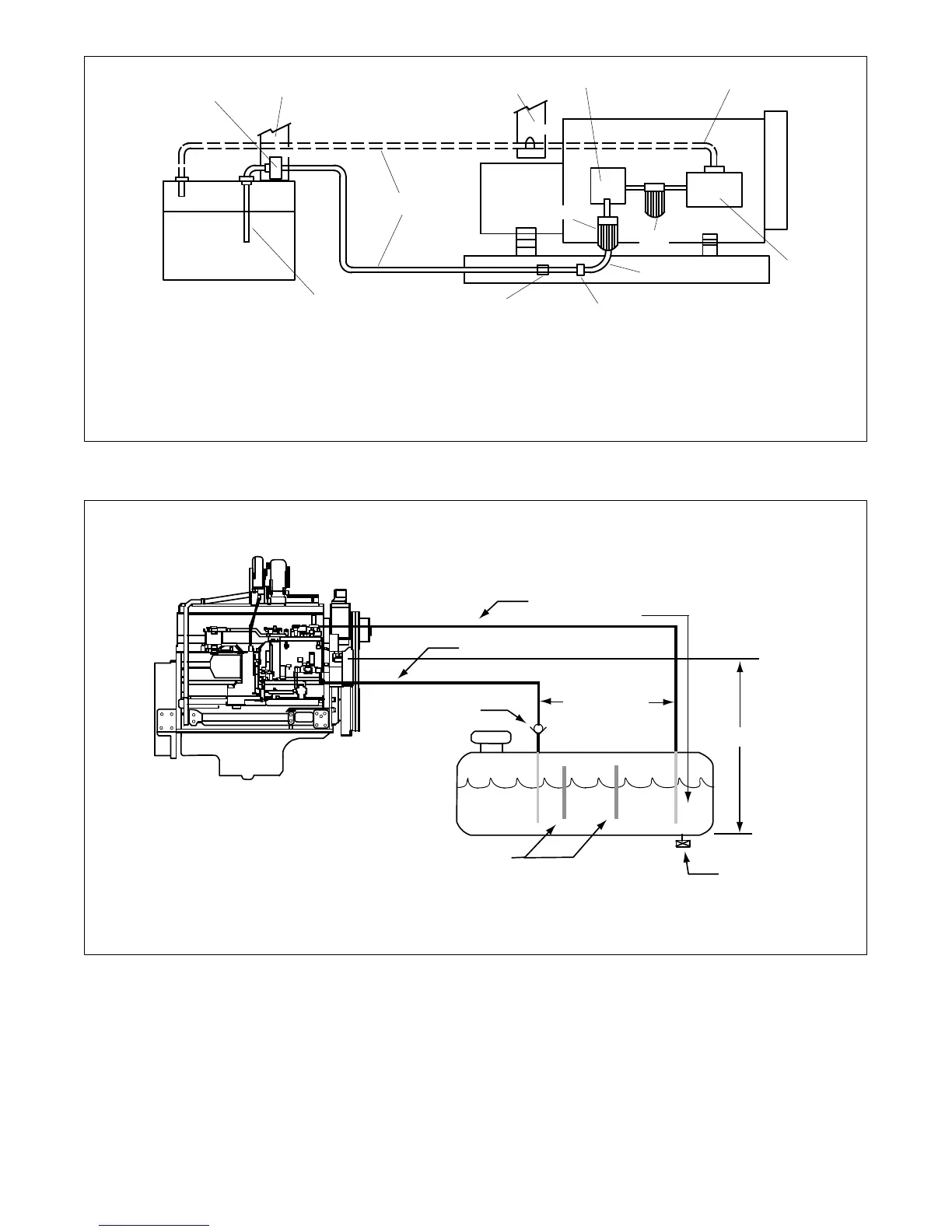
TP-6862 6/14 27Section 5 Fuel System
1
2
3
4
5
6
7
9
10
11
12
13
14
1. Electric fuel or mechanical check v alve
2. Permanent supports for fuel system
components
3. Fuel lift pump
4. Flexible line
5. Fuel return line (diesels only)
6. Carburetor or injection pump
7. Secondary filter
8. Primary filter
9. Flexible fuel line
10. Clamp
11. Support clamp
12. Metallic line
13. Dip tube
14. Fuel tank
2
8
Figure 5-4 Fuel System, Typical
* Anti-siphon protection is required for gasoline-powered units if diptube opening is below the waterline.
Fuel Return (Diesel Only)
(Below Fluid Level)
Fuel Supply
Check Valve
(Optional) *
12 in.
min.
Baffles
Main Fuel Tank
Drain Valve
Fuel Lift
Figure 5-5 Fuel System, Typical

Table of Contents

Related product manuals