EasyManua.ls Logo

Kohler 40-150EOZDJ

Kohler 40-150EOZDJ
84 pages
To Next Page IconTo Next Page
To Next Page IconTo Next Page
To Previous Page IconTo Previous Page
To Previous Page IconTo Previous Page
Loading...
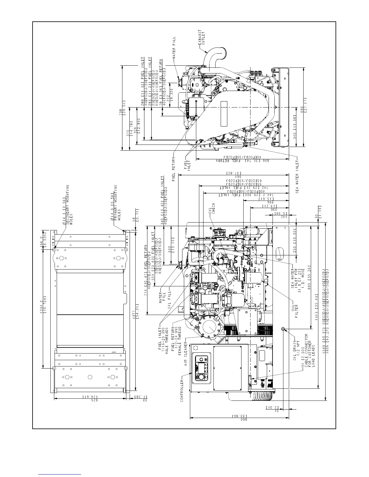
TP-6862 6/14 39Section 7 Installation Drawings
ADV-8501A-A
NOTE: Dimensions in [ ] are inch equivalents.
Figure 7-5 Dimension Drawing, 40/50EFOZD(C)J & 55/65EOZD(C)J & 45/55EFOZD(C)J (Open Unit Sheet 1 of 2)

Table of Contents

Related product manuals