EasyManua.ls Logo

Kohler 8.5RES

Kohler 8.5RES
132 pages
To Next Page IconTo Next Page
To Next Page IconTo Next Page
To Previous Page IconTo Previous Page
To Previous Page IconTo Previous Page
Loading...
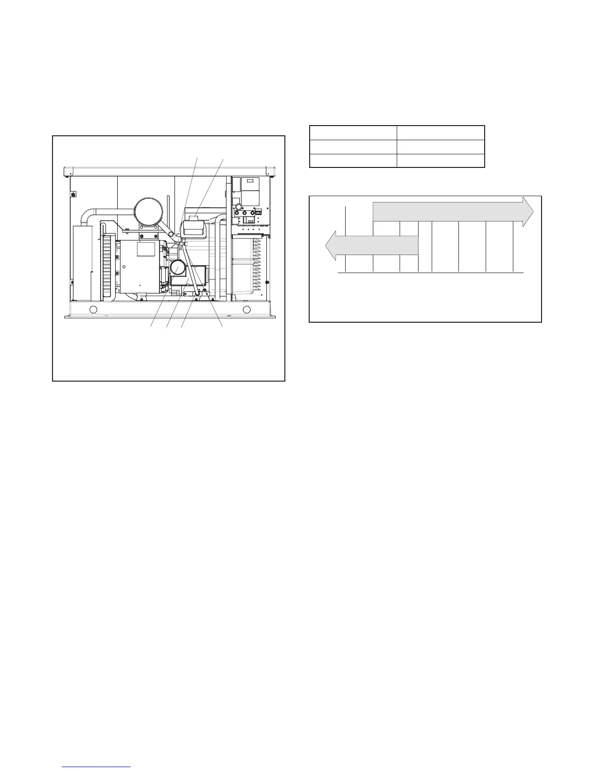
TP-6196 10/09 21Section 2 Scheduled Maintenance
2.2 Lubrication System
See Section 2.1, Service Schedule, for oil change and
oil filter replacement intervals. See Figure 2-2 for the oil
drain, oil check, oil fill, and oil filter locations.
The engine has a positive pressure lubrication system
and low oil pressure shutdown.
1. Dip stick location
2. Oil fill
3. Oil drain hose
4. Oil drain valve
5. Oil cooler
6. Oil filter
ADV--7466
3
2
6 45
1
Figure 2-2 Lubrication System (typical)
2.2.1 Low Oil Pressure Shu tdown
The low oil pressure shutdown feature protects the
engine against internal damage if the oil pressure drops
below preset limits because of oil pump failure or other
malfunction. It does not protect against damage caused
by operating with the oil level below the safe range—it is
not a low oil level shutdown.
2.2.2 Oil Level Check
Check the oil level regularly and add oil as needed to
protect against running out of oil. See Figure 2-2 for the
dipstick and oil fill locations. Do not check the oil level
when the generator set is running. Shut down the
generator set and wait several minutes before checking
the oil level.
2.2.3 Engine Oil Recommendation
Use synthetic oil of API (American Petroleum Institute)
Service Class SG or higher. Synthetic oil causes fewer
deposits on the engine intake valves and pistons
because it oxidizes and thickens less than other oils.
See Figure 2-3 and Figure 2-4.
Model L (Qt.)
8.5kW 1.9 (2.0)
12kW 2.0 (2.1)
Figure 2-3 Oil Capacity with Filter
°C
°F
--30
--20
--10
0
10
20
30
40
0 20 40
Temperature Range Expected Before Next Oil
Change
32 60 80 100
10W-30
5W-20, 5W-30
--20
Figure 2-4 Engine Oil Selection
2.2.4 Oil Change Procedure
Whenever possible, drain the oil while it is still warm.
1. Drain the oil.
a. Place the generator set master switch in the
OFF position.
b. Disconnect the power to the battery charger.
c. Disconnect the generator set engine starting
battery, negative (--) lead first.
d. Remove the oil drain hose from its retaining
clip. See Figure 2-2. Remove the cap from the
oil drain hose and lower the hose into an oil
collection container.
e. Open the oil drain valve on the engine.
Remove the dipstick and oil fill cap.
f. Allow time for the engine oil to drain completely.
g. Close the oil drain valve.
h. Replace the cap on the oil drain hose. Replace
the oil drain hose in its retaining clip.

Table of Contents

Other manuals for Kohler 8.5RES

Related product manuals