EasyManua.ls Logo

Koolspace chillR 100 - Page 4

Koolspace chillR 100
12 pages
Print Icon
To Next Page IconTo Next Page
To Next Page IconTo Next Page
To Previous Page IconTo Previous Page
To Previous Page IconTo Previous Page
Loading...
~4~
~5~
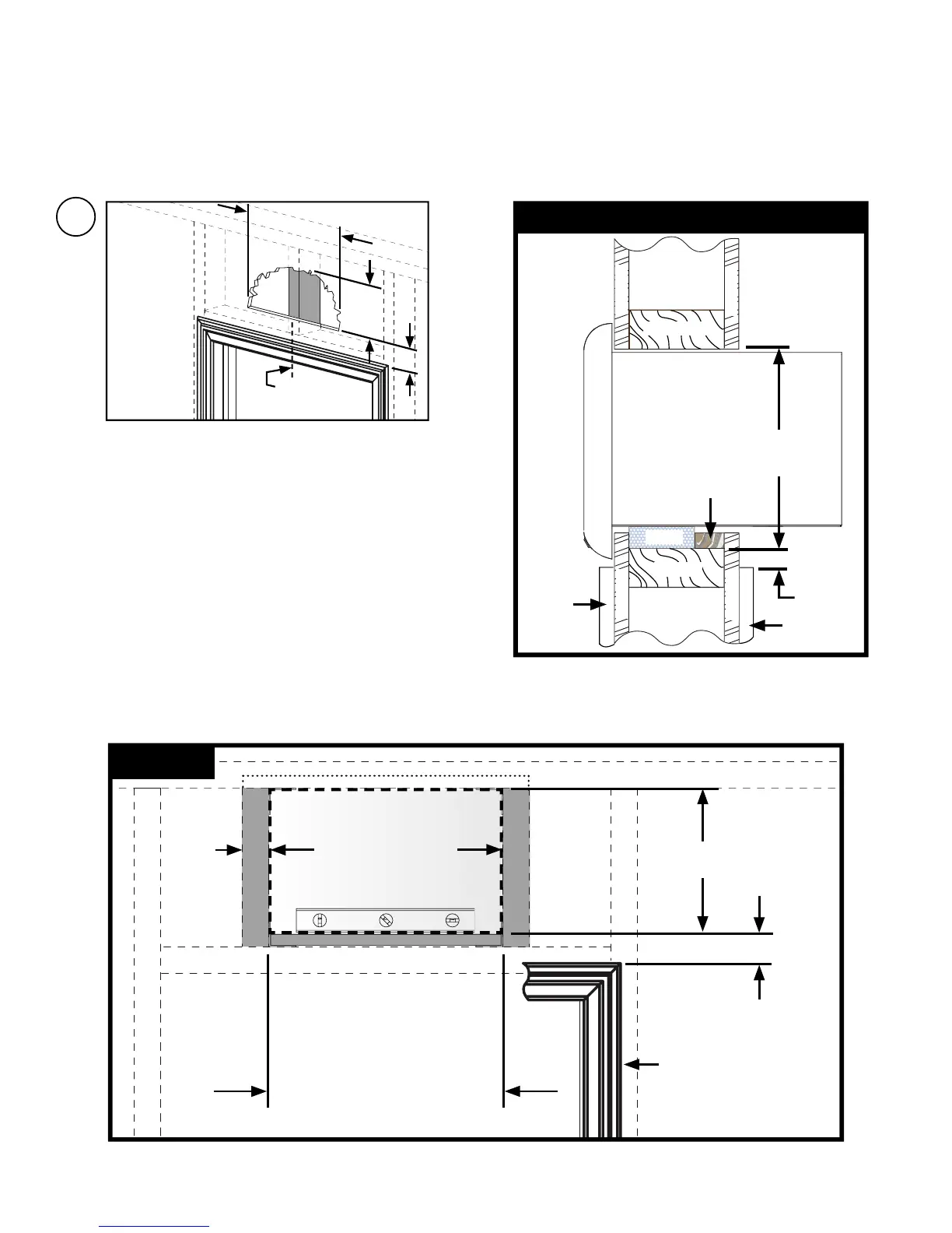
PREPARE FOR OVER THE DOOR CUTOUT (A)
Open drywall on warm side. Measure distance
from HEADER to TOP PLATE and MOLDING. Follow
the typical installation described in STEPS 2-6 if
clearance is 10” and the HEADER is at least 3/8”
higher than the molding. (SEE PROFILE)
1
THE FOLLOWING STEPS ARE COMMON FOR 8’ FOOT CEILINGS
This manual is only a guide, house structure may vary. (For high ceilings install an upper horizontal brace)
ONLY if clearance conditions are not met, custom-
ize the installation, assure the required dimen-
sions indicated in the DETAIL.
TIP: - Replace FOAM isolator with Shim (plywood).
- Increase headroom (cut TOP PLATE with
utility saw)
START ON THE WARM SIDE
DOOR
CENTER
max 14”
6”
2”
TOP PLATE
HEADER
HEADER
FOAM
1/2” WOOD SPACER
Door
Molding
Drywall
Drywall
WARM
SIDE
COOL
SIDE
PROFILE OF INSTALLED UNIT
TOP PLATE
Drywall
Drywall
10”
3/8”
Door
Molding
King Stud
Cripple Stud
Cripple Stud
HEADER
TOP PLATE
SHIM
H = 9 3/8
100-300 Series use :
W = 16”
600-900 Series use :
W = 19 3/8
Min.1”from molding
DOOR FRAME MOLDING
DETAIL
MUST BE LEVELED!
King Stud
DRYWALL CUT-OUT
11/2

Related product manuals