EasyManua.ls Logo

Laars JVS - Page 18

Laars JVS
36 pages
Print Icon
To Next Page IconTo Next Page
To Next Page IconTo Next Page
To Previous Page IconTo Previous Page
To Previous Page IconTo Previous Page
Loading...
LAARS Heating Systems
Page 18
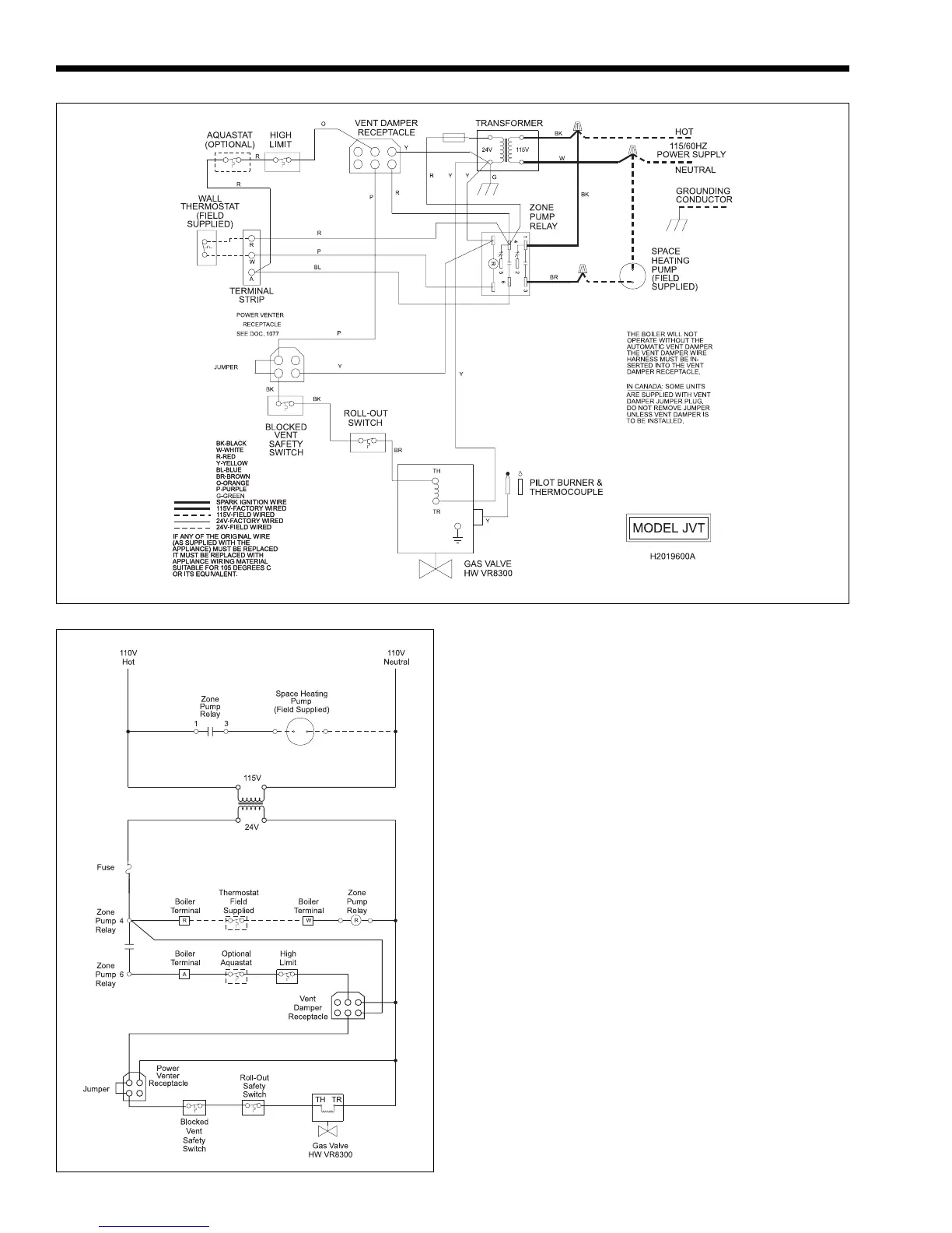
Figure 9c. Wiring Diagram, Standing Pilot System (JVT).
Figure 9d. Schematic, Standing Pilot System (JVT).

Table of Contents

Related product manuals