EasyManua.ls Logo

LAFOMED LFSS23AA - Parameters and Sterilization Programs; Parameters

Default Icon
31 pages
Print Icon
To Next Page IconTo Next Page
To Next Page IconTo Next Page
To Previous Page IconTo Previous Page
To Previous Page IconTo Previous Page
Loading...
5
3. Parameters and Sterilization Programs
3.1 Parameters:
The working condition of the autoclave:
Environmental temperature: 5℃~40
Relative humidity: ≤80%
Atmospheric pressure: >70kPa;
Voltage:230VAC, 50Hz, 2500VA
The highest working pressure: 0.210.23MPa
The highest working temperature: 134137
Life span of the autoclave: 5 years
The requirements of transportation and storage:
Environmental temperature range: 5~40
Relative humidity: ≤80%
No corroding gases
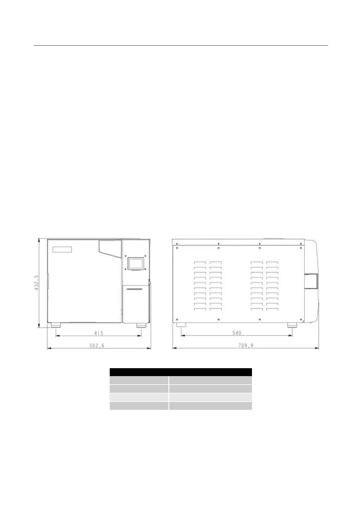
Detailed sizes of the autoclave:
(see below pictures)
Net weight of autoclaves
Model
Net Weight
LFSS12AA
47.7 KGS
LFSS18AA
50.25 KGS
LFSS23AA
53.5 KGS

Related product manuals