EasyManua.ls Logo

Lang RT36A - Page 12

Lang RT36A
20 pages
Print Icon
To Next Page IconTo Next Page
To Next Page IconTo Next Page
To Previous Page IconTo Previous Page
To Previous Page IconTo Previous Page
Loading...
12
2M-W1091, Commerical & Marine Electric Range Top
2M-W1091, Commerical & Marine Electric Range Top
2M-W1091, Commerical & Marine Electric Range Top
2M-W1091, Commerical & Marine Electric Range Top
3
J3
J3
J3
J3
Rotary
Switch
Rotary
Switch
Rotary
Switch
Rotary
Switch
Rotary
Switch
Rotary
Switch
J3
J3
4 C.B. C.B. C.B.
W
W
W
W
W
W
5 6 1 2
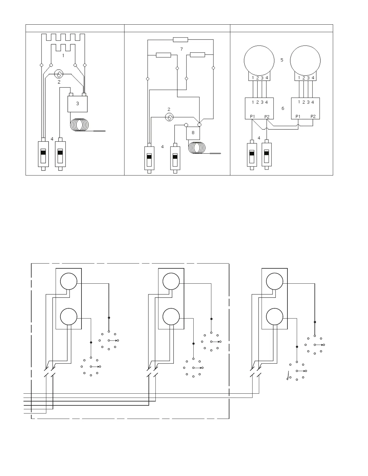
INDUCTION COOKTOP 30”
RANGE TOP
INDUCTION COOKTOP 36”
RANGE TOP
SK2526
RTI30 & RTI36 INDUCTION COOKTOP
GRIDDLE
HOT TOP
1. Griddle and Top Plate Element
2. Pilot Light
3. 450°F Griddle Theremostat
4. Circuit Breaker
5. French Plate
6. 6-Heat Switch
7. Hot Top
8. 850°F Hot Top Thermostat