EasyManua.ls Logo

LCN 4630CS - Electrical Connections and Wiring; High Voltage Electrical Connections; Low Voltage Electrical Connections; Single Door Wiring Configurations

LCN 4630CS
21 pages
Print Icon
To Next Page IconTo Next Page
To Next Page IconTo Next Page
To Previous Page IconTo Previous Page
To Previous Page IconTo Previous Page
Loading...
Page 11
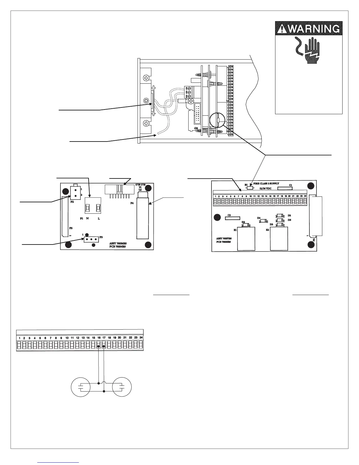
ELECTRICAL CONNECTIONS - Use copper wire only.
HAZARDOUS VOLTAGE
CAN SHOCK AND CAUSE
SEVERE INJURY.
Disconnect power before
making any electrical
connections or performing
any maintenance.
LANIMRETNOITCNUF
Actuator - Normal Input (N.O.) 16 & 17 or 18 & 19
Actuator - Sequential Input (N.O.) 8 & 19
Actuator - Alternate Action (N.O.) 15 & 17
Actuator - Continuous (N.O.) 6 & 17
9tuptuO laitneuqeS
Stop Side Safety (N.O.) 19 & 20
Swing Side Safety (N.O.) 19 & 21
Fire Alarm Contact (N.C.)
13 & 14 (Fire Shunt)
Auxiliary Relay Contacts(5 amp max) 10 - Common
11 - N.O.
12 - N.C.
E.S. Relay Contacts(5 amp max) 22 - Common
23 - N.O.
24 - N.C.
12V DC & 24V DC Negative* 2, 4, 13, 17, & 19
7 & 5*evitisoP CD V21
3 & 1*evitisoP CD V42
* Note: 1 Amp max load between 12V and 24V DC outputs
HIGH VOLTAGE ELECTRICAL CONNECTIONS
LOW VOLTAGE (CLASS 2 NEC) ELECTRICAL CONNECTIONS
SINGLE DOOR
WIRING CONNECTIONS
ANY NORMALLY OPEN
DRY CONTACT ACTUATOR
GROUND WIRE
(GREEN)
FIRE ALARM SHUNT
TO CONNECT TO FIRE ALARM,
CLIP LEADS ON SHUNT TO
REMOVE AND CONNECT
FIRE ALARM CONTACTS
TO TERMINALS 13 & 14
FIELD CONNECTION
TERMINALS
CONTROLLER
RIBBON CABLE
CONNECTOR
120 VAC
POWER INPUT
CONNECTOR
POWER TO
CONTROLLER
CONNECTOR
POWER
SWITCH
CONNECTOR
HIGH VOLTAGE BOARD
LOW VOLTAGE BOARD
FUSE
1A SLO BLO
POWER SWITCH
ON INSIDE OF PLATE

Related product manuals