EasyManua.ls Logo

LCN 4630CS - 4640 CS Series Auto-Equalizer Regular;Flush Ceiling Mounts Diagram

LCN 4630CS
21 pages
Print Icon
To Next Page IconTo Next Page
To Next Page IconTo Next Page
To Previous Page IconTo Previous Page
To Previous Page IconTo Previous Page
Loading...
Page 5
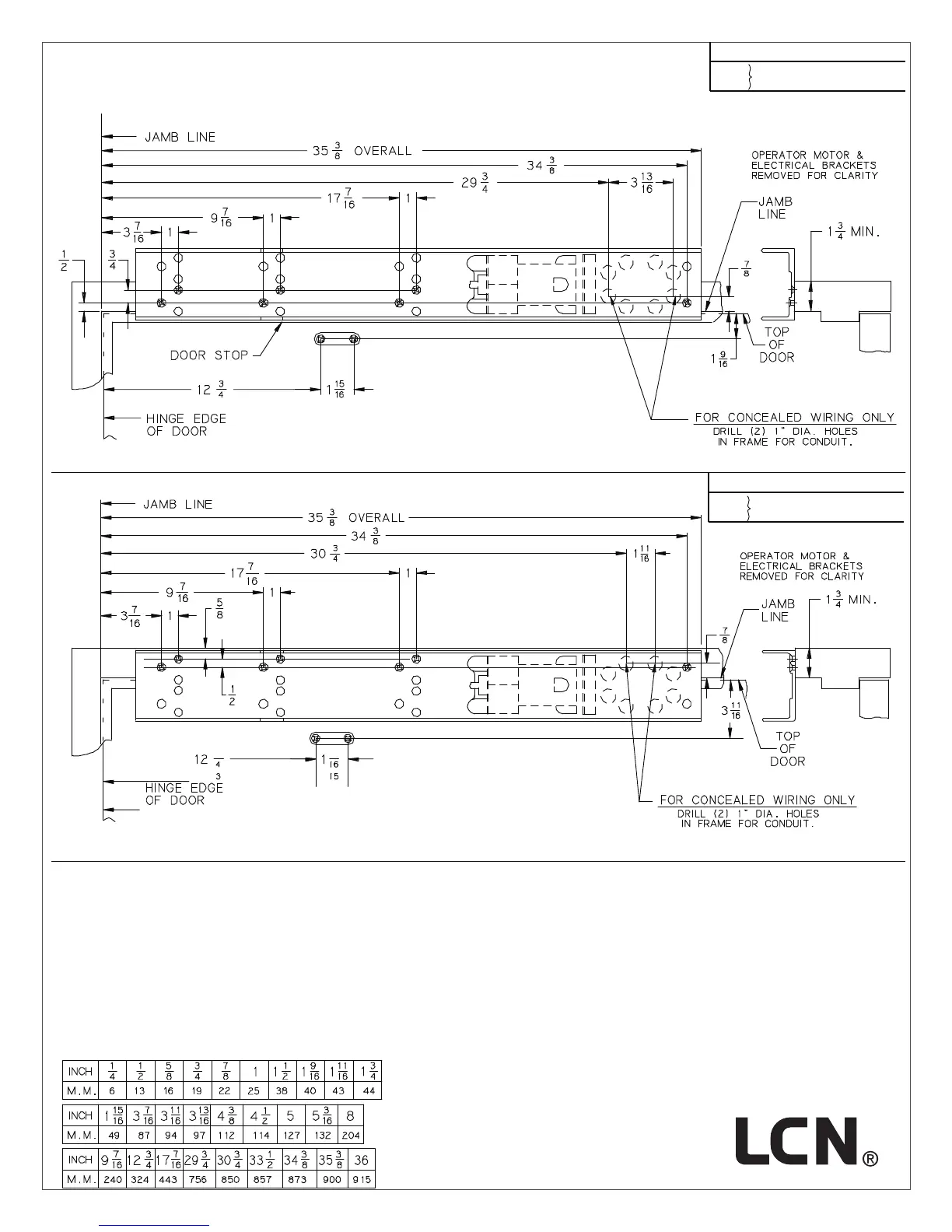
LEFT HAND SHOWN, RIGHT HAND OPPOSITE
LEFT HAND SHOWN, RIGHT HAND OPPOSITE
4640CS SERIES PUSH SIDE/TOP JAMB MOUNTED
NON-HANDED AUTO-EQUALIZER™
REGULAR/FLUSH CEILING MOUNTS
PUSH SIDE/TOP JAMB MOUNT
4640CS
100° OPENING MAX.
90° POWER OPENING
PUSH SIDE/TOP JAMB MOUNT
4640CS
100° OPENING MAX.
90° POWER OPENING
1. VOLTAGE SUPPLIED TO FRAME MUST CORRESPOND TO VOLTAGE OF OPERATOR.
2. MAXIMUM BUTT SIZE IS 5”.
3. MINIMUM DOOR WIDTH IS 36”.
4. MAXIMUM STOP THICKNESS IS 5/8”.
5. MAXIMUM REVEAL DEPTH IS 4 ½”UP TO 8” REVEALS WITH LONG ARM OPTION, CONSULT FACTORY.
6. AUXILIARY STOP RECOMMENDED AT MAXIMUM OPENING POINT (100°).
7. LOCATE OPERATOR & SHOE FROM THE CENTERLINE OF SWING CLEAR PIN IF USED.
8. CONSULT FACTORY IF DOOR IS HUNG ON PIVOTS OR WIDE-THROW HINGES.
9. REINFORCING PER ANSI/SDI-100 RECOMMENDED FOR HOLLOW METAL DOORS & FRAMES.
10. OVERALL OPERATOR SIZE: 33 ½”X 4 3/8” X 5 3/16”.

Related product manuals