EasyManua.ls Logo

Lennox BALTIC Series

Lennox BALTIC Series
83 pages
To Next Page IconTo Next Page
To Next Page IconTo Next Page
To Previous Page IconTo Previous Page
To Previous Page IconTo Previous Page
Loading...
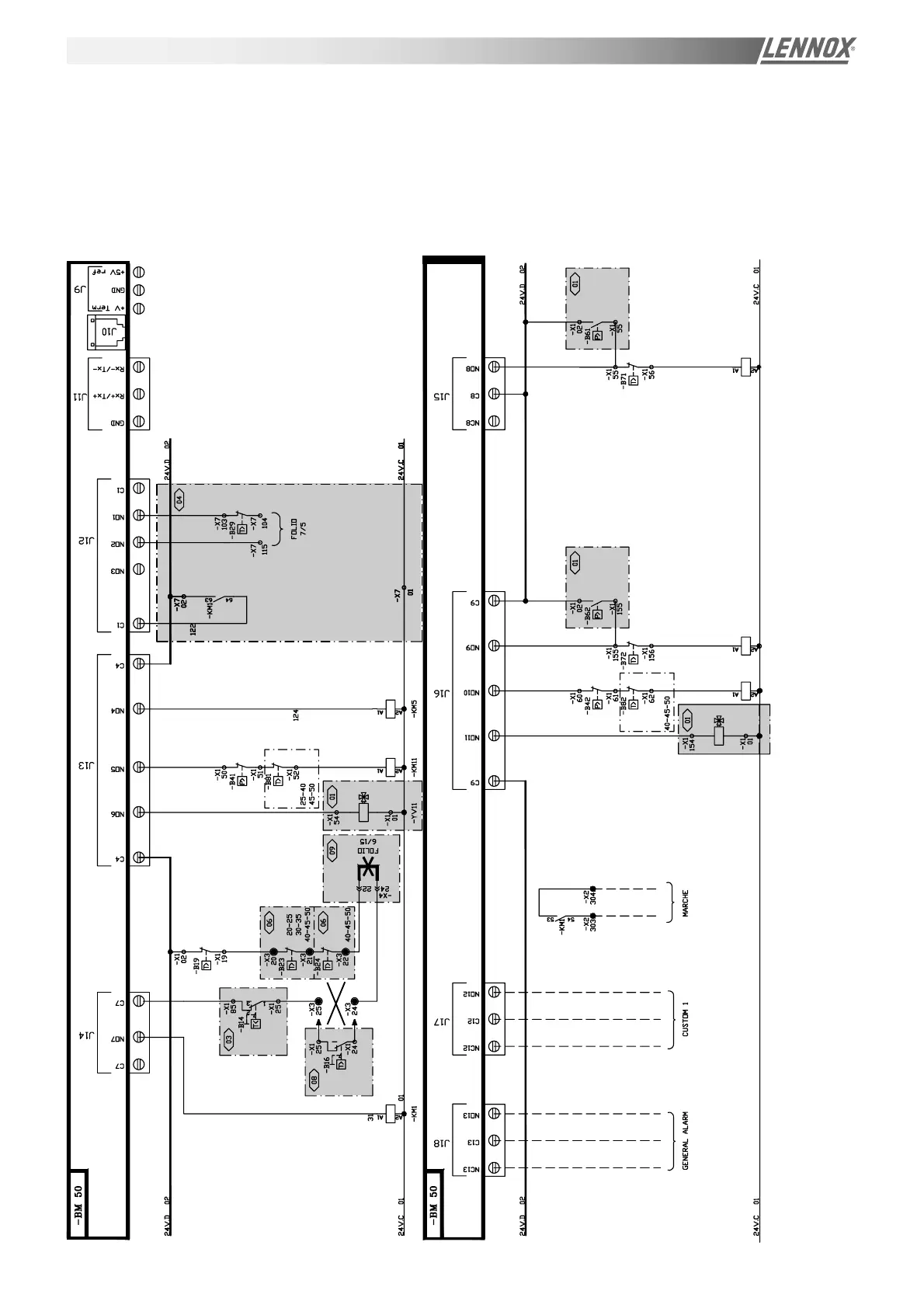
Page 52 - Application Guide 04-2003 / Rooftop BALTIC Series
CLIMATIC 50 OUTPUT BGK / BDK
FIRE
DETECTION
ELECTRICAL DATA wiring diagrams

Related product manuals