EasyManua.ls Logo

Lennox BALTIC Series

Lennox BALTIC Series
83 pages
To Next Page IconTo Next Page
To Next Page IconTo Next Page
To Previous Page IconTo Previous Page
To Previous Page IconTo Previous Page
Loading...
Page 77 - Application Guide 04-2003 / Rooftop BALTIC Series - Page 77
2F' 2F 1F
2F'
1F 1F'
1F'
1F
2F'
2F
1F'
1F
2F'
2F
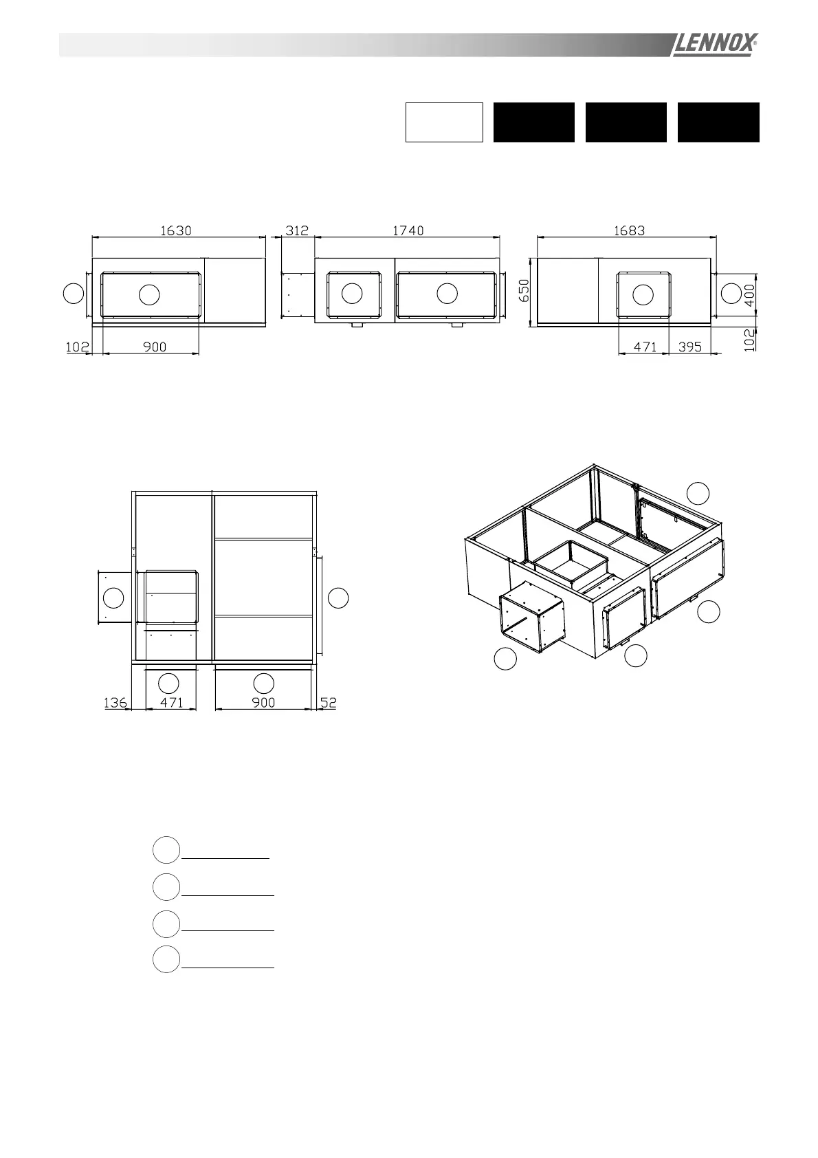
MULTIDIRECTIONAL HORIZONTAL ROOFCURB
045 050040
BCK
BHK
1F'
Front supply air
2F
2F'
Front return air
1F
Front supply air
WARNING : ONLY ONE OF THE 4 FOLLOWINGS POSSIBILIES :
2F - 1F / 2F - 1F'
2F' - 1F / 2F' - 1F'
Front return air

Related product manuals