EasyManua.ls Logo

Lennox Elite CB30U Series - Page 9

Lennox Elite CB30U Series
12 pages
Print Icon
To Next Page IconTo Next Page
To Next Page IconTo Next Page
To Previous Page IconTo Previous Page
To Previous Page IconTo Previous Page
Loading...
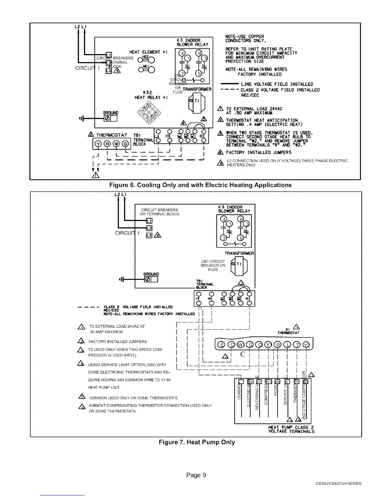
L2 LI
LL
CIRCUN
HEAT ELEMENT _1
BREAKERS f %_€'*_
_'_ERMINAL
1 i_ O_}
K32
HEAT RELAY _I
GROUND
I-., /-_ _ TERMINALI O
'L_,
r.i I L
L-
Ir
K 3 INDOOR
BLOWER RELAY
BR ........
OR TRANSFORMER
FUSE
I I
__i__ __ .j I
J
NOTE-USE COPPER
CONDUCTORSONLY,
REFER TO UNIT RATING PLATE
FOR MINIMUM CIRCUIT AMPACITY
AND MAXIMUM OVERCURRENT
PROTECTION SIZE
NOTE-ALL REMAINING WIRES
FACTORY INSTALLED
LINE VOLTAGE FIELD INSTALLED
.... CLASS 2 VOLTAGE FIELD INSTALLED
NEC/GEC
Z_ TO EXTERNAL LOAD 24VAC
AT .50 AMP MAXIMUM
Z_THERMOSTAT HEAT ANTICIPATION
SETTING .€ AMP (ELECTRIC HEAT)
Z_ WHEN TWO STAGE THERMOSTAT IS USED,
CONNECT SECOND STAGE HEAT BULB TO
TERMINAL "W2," AND REMOVE JUMPER
BETWEEN TERMINALS "R" AND "W2."
_FACTORY INSTALLED JUMPERS
L3 CONNECTION USED ON (Y VOLTAGE) THREE PHASE ELECTRIC
HEATERS ONLY.
Figure 6. Cooling Only and with Electric Heating Applications
CIRCUIT BREAKERS
OR TERMINAL BLOCK
---D
[]
GROUND
L2 LI
IL
CIRCUI"
K 3 INDOOR
BLOWER RELAY
TRANSFORMER
CB1 CIRCUIT
BREAKER OR
FUSE
TBI
TERMINAL
I I
J I
J s, Z_
THERMOSTAT
fILl II
,,I----
_ uJI LI
HEAT PUMP CLASS 2
VOLTAGE TERMINALS
TO EXTERNAL LOAD 24VAC AT
.50 AMP MAXIMUM
FACTORY INSTALLED JUMPERS
/_ Y2 USED ONLY WHEN TWO SPEED COM-
PRESSOR IS USED (HP21).
USING SERVICE LIGHT OPTION ($54) WITH
SOME ELECTRONIC THERMOSTATS MAY RE-
CLASS 2 VOLIADE FIELD INSIALLEO "h
NEC/CEC
NOTE-ALL REMAINING WIRES FACTORY INSTALLE
IJ
[__.11
I II
I II
I II
I II
L_
F
QUIRE MOVING S54 COMMON WIRE TO Y1 IN
HEAT PUMP UNIT
/_ COMMON USED ONLY ON SOME THERMOSTATS.
Z_ AMBIENT COMPENSATING THERMISTOR CONNECTION USED ONLY
ON SOME THERMOSTATS.
Figure 7. Heat Pump Only
Page 9
CB30U/CBX27UH SERIES

Related product manuals