EasyManua.ls Logo

Lennox Fhm 150 - Page 88

Lennox Fhm 150
130 pages
Print Icon
To Next Page IconTo Next Page
To Next Page IconTo Next Page
To Previous Page IconTo Previous Page
To Previous Page IconTo Previous Page
Loading...
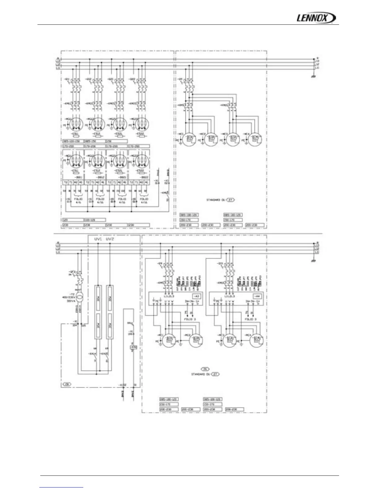
ELECTRICAL DATA : WIRING DIAGRAMS
FLEXYII_WSHP-IOM-0909-E Page 86
MAIN CURRENT DIAGRAM TRI / 400V / 50Hz + T

Table of Contents

Other manuals for Lennox Fhm 150

Related product manuals