EasyManua.ls Logo

Lennox FHM 85 - CLIMATIC 50 Input

Lennox FHM 85
110 pages
Print Icon
To Next Page IconTo Next Page
To Next Page IconTo Next Page
To Previous Page IconTo Previous Page
To Previous Page IconTo Previous Page
Loading...
IOM FLEXY II 1007 E Page 73
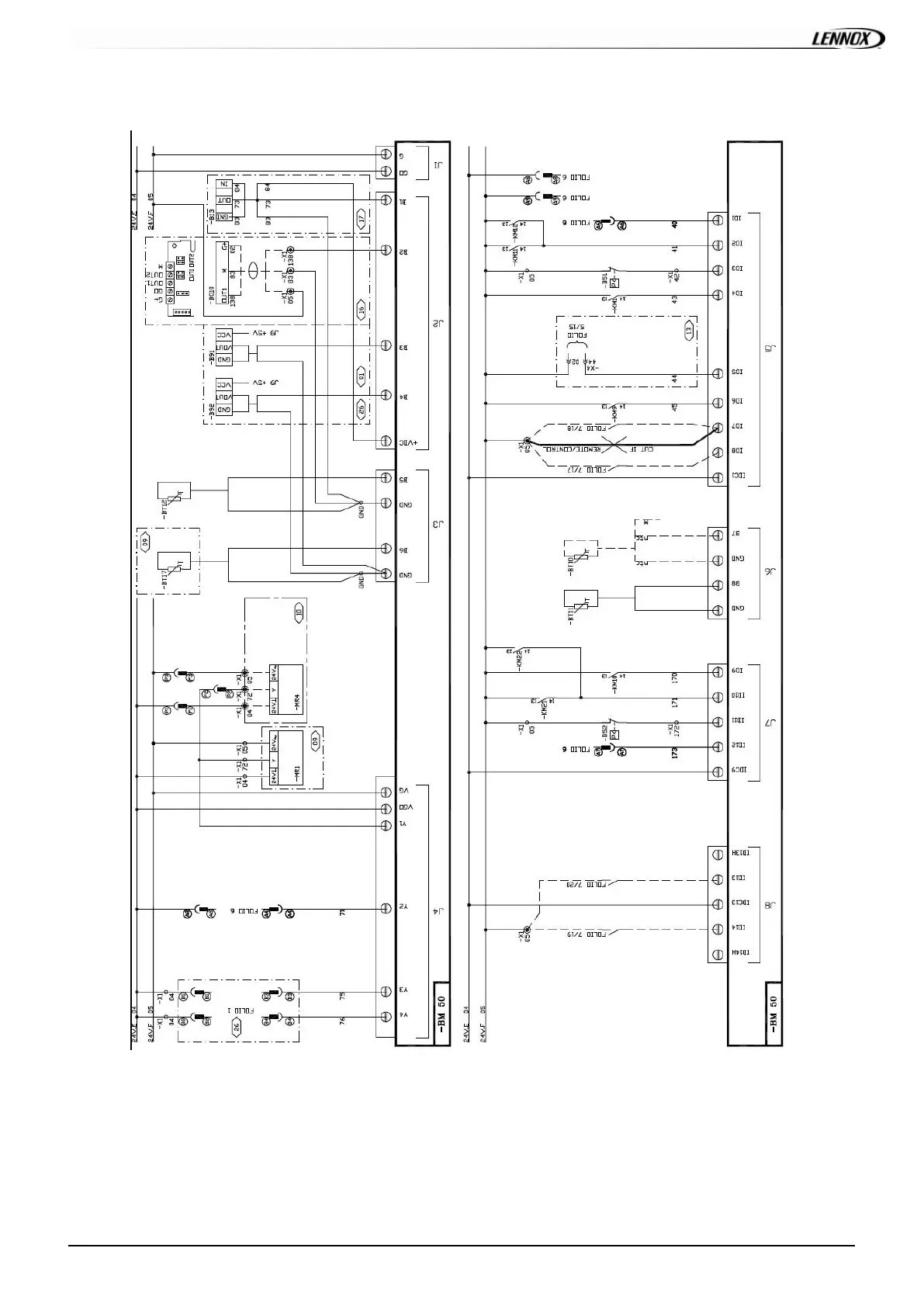
CLIMATIC 50 INPUT FCM / FHM / FGM / FDM
ELECTRICAL DATA
: WIRING DIAGRAMS

Table of Contents

Other manuals for Lennox FHM 85

Related product manuals