EasyManua.ls Logo

Lennox FHM 85 - General Customer Connection with Advanced Control Pack (ADC)

Lennox FHM 85
110 pages
Print Icon
To Next Page IconTo Next Page
To Next Page IconTo Next Page
To Previous Page IconTo Previous Page
To Previous Page IconTo Previous Page
Loading...
IOM FLEXY II 1007 E Page 77
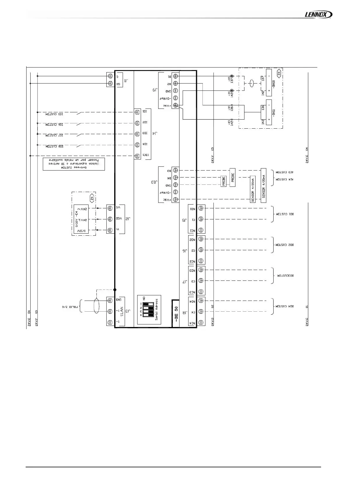
GENERAL CUSTOMER CONNECTION WITH ADVANCED CONTROL PACK (ADC)
ELECTRICAL DATA
: WIRING DIAGRAMS

Table of Contents

Other manuals for Lennox FHM 85

Related product manuals