EasyManua.ls Logo

Lennox FHM 85 - Maintenance Diagnostics

Lennox FHM 85
110 pages
To Next Page IconTo Next Page
To Next Page IconTo Next Page
To Previous Page IconTo Previous Page
To Previous Page IconTo Previous Page
Loading...
IOM FLEXY II 1007 E Page 89
FCM 200 & 230
FHM 200 & 230
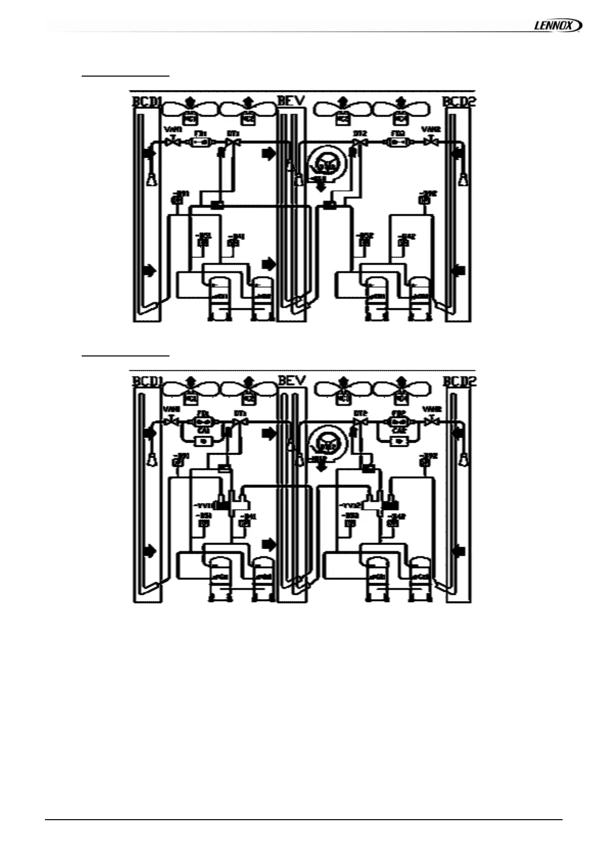
PRINCIPLE SKETCHES

Table of Contents

Other manuals for Lennox FHM 85

Related product manuals