EasyManua.ls Logo

Lennox GWB84-060E

Lennox GWB84-060E
40 pages
To Next Page IconTo Next Page
To Next Page IconTo Next Page
To Previous Page IconTo Previous Page
To Previous Page IconTo Previous Page
Loading...
25
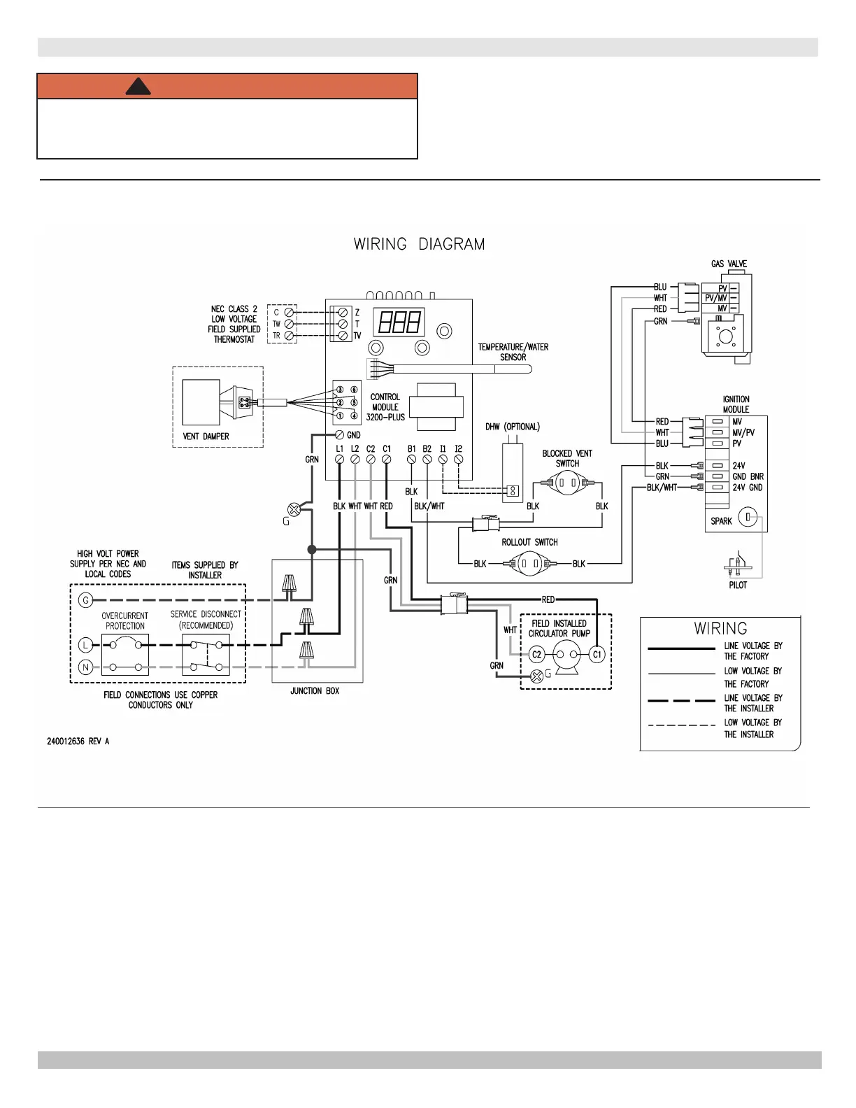
11 - WIRING DIAGRAMS
Figure 11-1 -
3200 Plus Fuel Smart Hydrostat Control
WARNING



!
PN 240012889 Rev. A [07/31/2020]

Related product manuals