EasyManua.ls Logo

Lennox KHC092 - Defrost Control Board

Lennox KHC092
22 pages
Print Icon
To Next Page IconTo Next Page
To Next Page IconTo Next Page
To Previous Page IconTo Previous Page
To Previous Page IconTo Previous Page
Loading...
Page 17
Defrost Control Board
The defrost thermostat, defrost pressure switch and the
defrost control work together to ensure that the heat
pump outdoor coil does not ice excessively during the
heating mode.
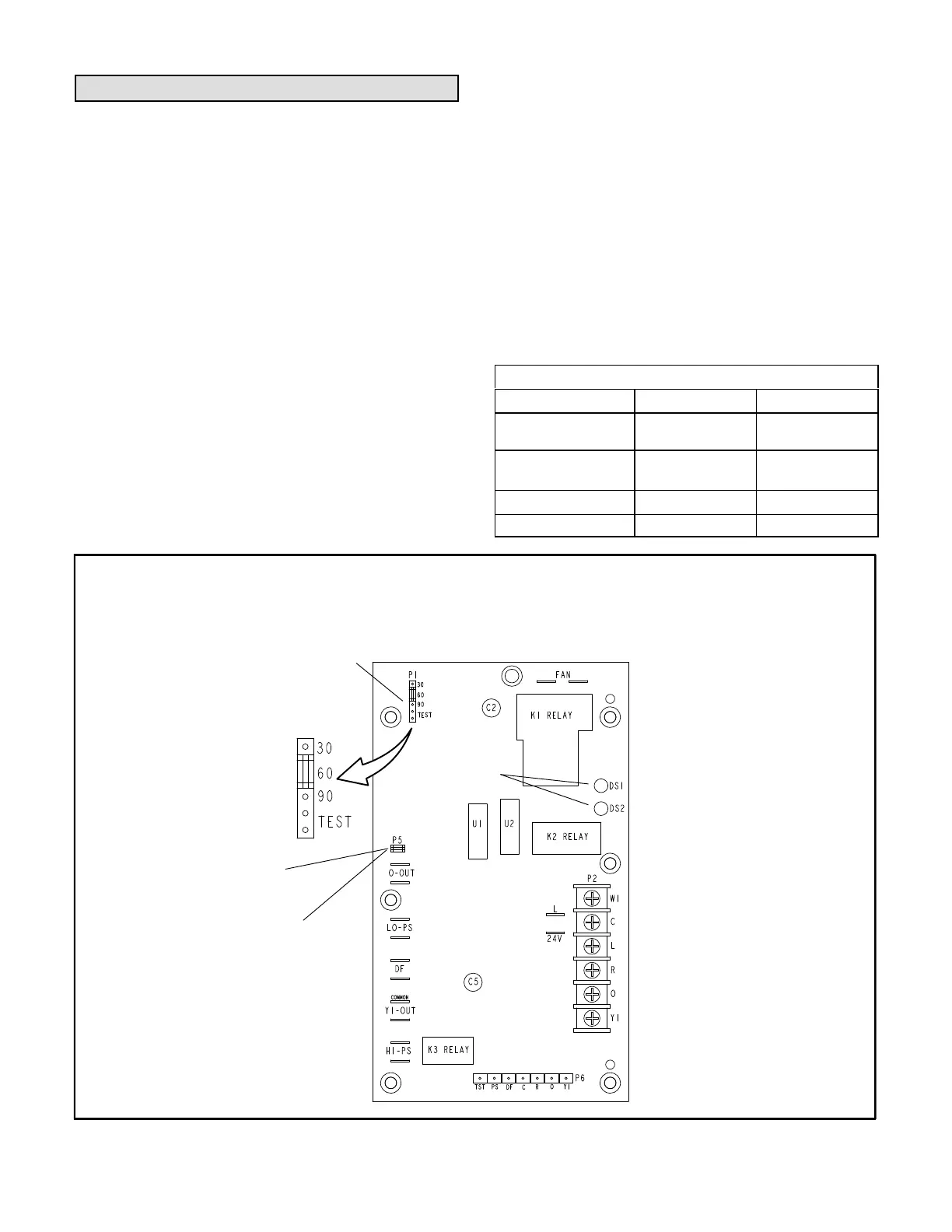
Compressor Accumulated Run-Time Interval
The defrost control will not energize a defrost cycle unless
the unit has been operating in heating mode for an
accumulated 60 minutes (default) on 100269-02 boards;
90 minutes (default) on 100269-07 boards. The run time
interval can be changed by moving the jumper on the
CMC board timing pins. See figure 15.
The defrost interval can be adjusted to 30, 60, or 90
minutes. The defrost timing jumper is factory-installed to
provide a 60-minute defrost interval. If the timing selector
jumper is not in place, the control defaults to a 90-minute
defrost interval.
Defrost Test Option
A TEST option is provided for troubleshooting. The TEST
mode may be started any time the unit is in the heating
mode and the defrost thermostat is closed or jumpered. If
the timing jumper is in the TEST position at power‐up, the
defrost control will ignore the test pins. When the jumper
is placed across the TEST pins for two seconds, the
control will enter the defrost mode. If the jumper is
removed before an additional 5-second period has
elapsed (7 seconds total), the unit will remain in defrost
mode until the defrost pressure switch opens or 14
minutes have passed. If the jumper is not removed until
after the additional 5-second period has elapsed, the
defrost will terminate and the test option will not function
again until the jumper is removed and re-applied.
Diagnostic LEDs
The defrost board uses two LEDs for diagnostics. The
LEDs flash a sequence according to the condition.
TABLE 10
Defrost Control Board Diagnostic LED
Indicates LED 1 LED 2
Normal operation /
power to board
Synchronized
Flash with LED 2
Synchronized
Flash with LED 1
Board failure /
no power
Off Off
Board failure On On
Pressure switch open Flash On
DEFROST CONTROL BOARD CMC1
FIGURE 15
DIAGNOSTIC
LEDS
100269-02:INSTALLED AT
THE FACTORY TO DISABLE
COMPRESSOR DELAY
100269-07:REMOVED AT
THE FACTORY TO DISABLE
COMPRESSOR DELAY
TIMING JUMPER
100269-02: 60 MINUTES
100269-07: 90 MINUTES

Related product manuals