EasyManua.ls Logo

Lennox KHC092 - Dimensions

Lennox KHC092
22 pages
Print Icon
To Next Page IconTo Next Page
To Next Page IconTo Next Page
To Previous Page IconTo Previous Page
To Previous Page IconTo Previous Page
Loading...
Page 2
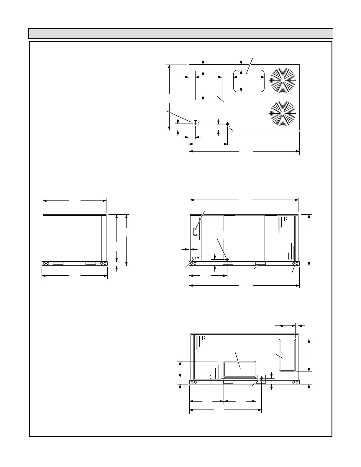
DIMENSIONS
END VIEW
601/8
(1527)
581/8
467/8
(1191)
31/2
(89)
433/8
(1102)
(1476)
SIDE VIEW
(Horizontal Openings)
HORIZONTAL
RETURN AIR
OPENING
HORIZONTAL
SUPPLY AIR
OPENING
CONDENSATE
DRAIN (BACK)
53/8
(137)
61/8
(156)
121/8
(308)
15/8
(41)
311/2
(800)
663/8
(1686)
(762)
(762)
(394)
151/2
(394)
30
151/2
30
BASE
601/8 (1527)
CENTER OF
GRAVITY
TOP VIEW
BOTTOM RETURN
AIR OPENING
24
(610)
55/8
(143)
61/8
(156)
61/8
(156)
65/8
(168)
28
(711)
27
(686)
20
(508)
BOTTOM
CONDENSATE
1011/4
(2572)
BOTTOM SUPPLY
AIR OPENING
347/8
(886)
BASE
(273)
103/4
7 (178)
7 (178)
BOTTOM
POWER ENTRY
51/2 (140) Dia.
SIDE VIEW
LIFTING HOLES
(FOR RIGGING)
1011/4
(2572)
991/4
(2521)
OPTIONAL DISCONNECT
(FACTORY INSTALLED)
1
(25)
347/8
(886)
53/8
(137)
467/8
(1191)
FORKLIFT SLOTS
(BOTH SIDES)
CONDENSATE
DRAIN (FRONT)
ELECTRIC
INLETS

Related product manuals