EasyManua.ls Logo

Lennox LCH 048

Lennox LCH 048
140 pages
To Next Page IconTo Next Page
To Next Page IconTo Next Page
To Previous Page IconTo Previous Page
To Previous Page IconTo Previous Page
Loading...
Page 37
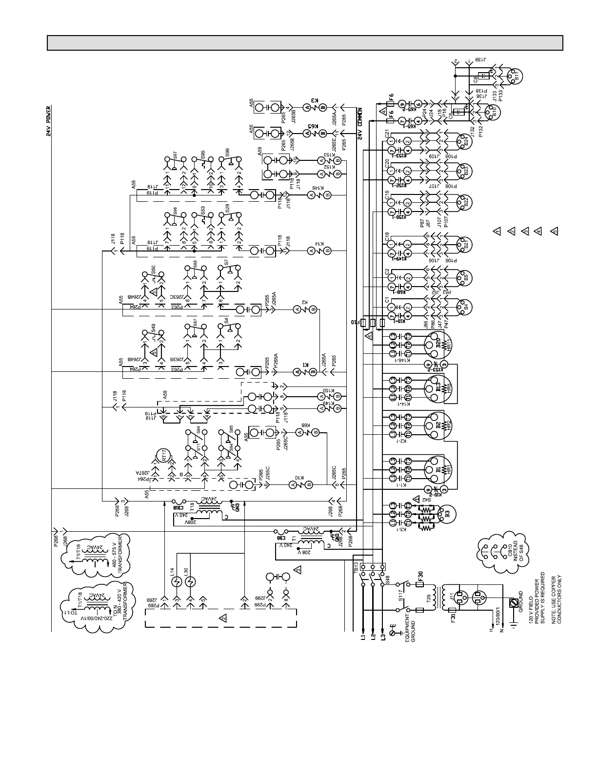
Wiring Diagrams (240, 300 Units)
NOTE IF ANY WIRE IN THIS APPLIANACE IS REPLACED
IT MUST BE REPLACED WITH WIRE OF LIKE SIZE,
RATING, TERMINATION AND INSULATION THICKNESS.
WARNING ELECTRIC SHOCK HAZARD, CAN CAUSE
INJURY OR DEATH . UNIT MUST BE GROUNDED IN
ACCORDANCE WITH NATIONAL AND LOCAL CODES.
DISCONNECT ALL POWER BEFORE SERVICING.
S42 USED ON ”M” VOLTAGE UNITS AND
UNITS WITH HIGH EFFICIENCY MOTORS
ONLY ON UNITS WITH HUMIDITROL
OPTION
T43
T43
L14
L30
DI 1
DI 2
A55
EXTERNAL HUMIDITROL CONTACTS
F6 AND F10 FUSES ARE USED ON ”Y”
VOLTAGE UNITS ONLY
S49 AND S50 ARE PART OF 5VDC CIRCUIT

Related product manuals