EasyManua.ls Logo

Lennox LCH 048

Lennox LCH 048
140 pages
To Next Page IconTo Next Page
To Next Page IconTo Next Page
To Previous Page IconTo Previous Page
To Previous Page IconTo Previous Page
Loading...
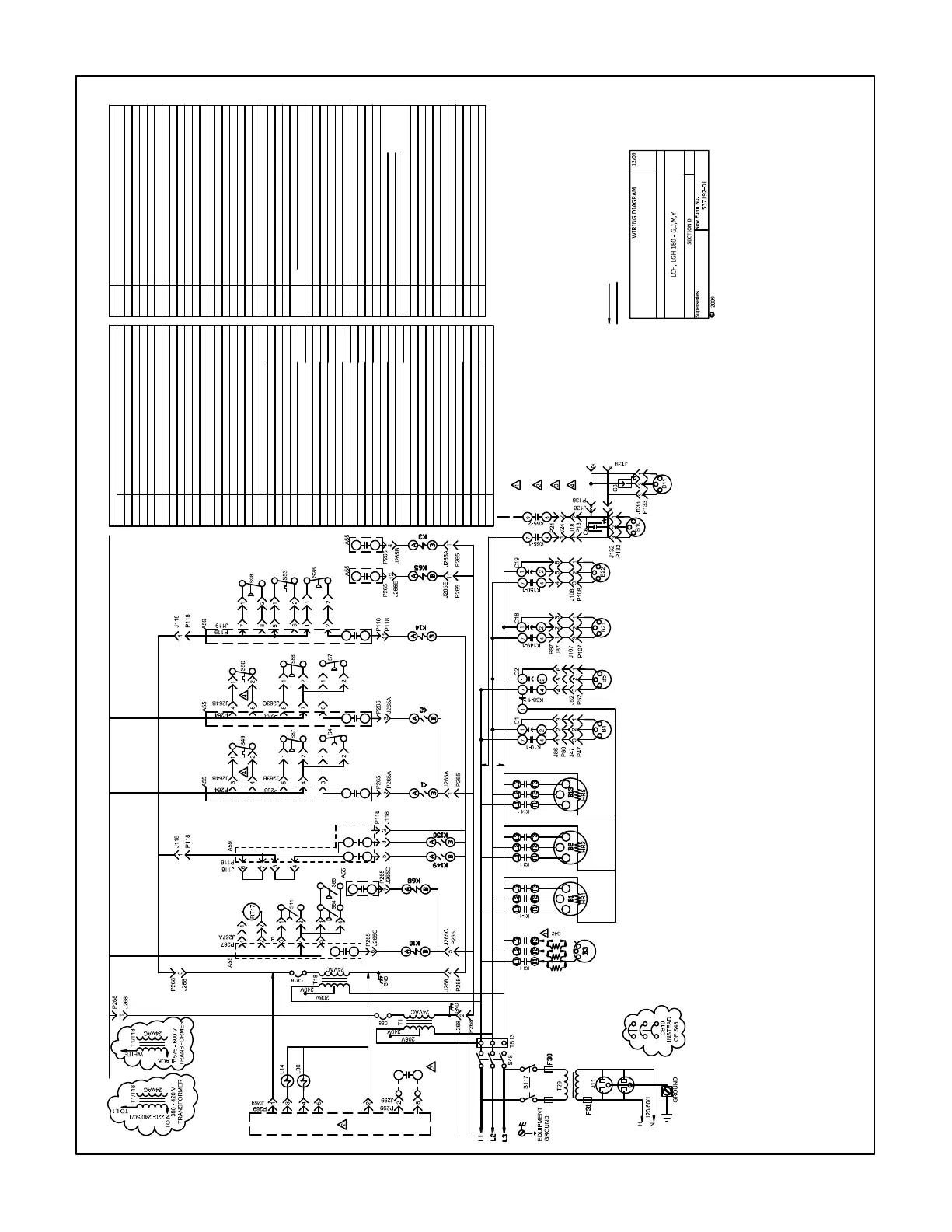
Page 7
506373−01 11/2011
TYPICAL UNIT SCHEMATIC
This schematic is typical.
See the wiring schematic on
the unit for actual unit wiring.
Lennox Commercial
COOLING
REV. 2.0
NOTE − IF ANY WIRE IN THIS APPLIANCE IS REPLACED IT
MUST BE REPLACED WITH WIRE OF LIKE SIZE, RATING,
TERMINATION AND INSULATION THICKNESS
WARNING − ELECTRIC SHOCK HAZARD, CAN CAUSE INJURY
OR DEATH . UNIT MUST BE GROUNDED IN ACCORDANCE
WITH NATIONAL AND LOCAL CODES
DISCONNECT ALL POWER BEFORE SERVICING.
DENOTES OPTIONAL COMPONENTS
LINE VOLTAGE FIELD INSTALLED
NOTE: USE COPPER
CONDUCTORS ONLY
1 2 0 V F I E L D
P R O V I D E D
POWER SUPPLY
I S R E Q U I R E D
S42 USED ON "M" VOLTAGE UNITS
AND UNITS WITH HIGH EFFICIENCY
MOTORS
DESCRIPTION
KEY
COMPONENT
A55
PANEL, MAIN
A59
PANEL, COMPRESSORS 3 AND 4
B1
COMPRESSOR 1
B2
COMPRESSOR 2
B3
MOTOR, BLOWER
B4
MOTOR, OUTDOOR FAN 1
B5
MOTOR, OUTDOOR FAN 2
B10
MOTOR, EXHAUST FAN 1
B11
MOTOR, EXHAUST FAN 2
B13 COMPRESSOR 3
B21
MOTOR, OUTDOOR FAN 3
B22
MOTOR, OUTDOOR FAN 4
C1
CAPACITOR, OUTDOOR FAN 1
C2
CAPACITOR, OUTDOOR FAN 2
C6
CAPACITOR, EXHAUST FAN 1
C8
CAPACITOR, EXHAUST FAN 2
C18
CAPACITOR, OUTDOOR FAN 3
C19
CAPACITOR, OUTDOOR FAN 4
CB8
CIRCUIT, BREAKER T1
CB10
CIRCUIT BREAKER, MAIN DISCONNECT UNIT
CB18
CIRCUIT, BREAKER T18
F30
FUSE, TRANSFORMER T29 PRIMARY
F31
FUSE, TRANSFORMER T29 SECONDARY
HR1 HEATER COMPRESSOR 1
HR2 HEATER COMPRESSOR 2
HR5 HEATER COMPRESSOR 3
J11
JACK, GFI, RECEPTACLE
J18
JACK, EXHAUST FAN COMP
J24
JACK, EXHAUST FAN
J47
JACK, OUTDOOR FAN 1
J52
JACK, OUTDOOR FAN 2
J86
JACK, OUTDOOR FAN INTERFACE 1
J87
JACK, OUTDOOR FAN INTERFACE 2
J107
JACK, OUTDOOR FAN 3
J108
JACK,OUTDOOR FAN 4
J118
JACK, COMPRESSOR 3 AND 4, CONTROL
J119
JACK, COMPRESSOR 3 AND 4, INPUT
J132
JACK, BLOWER , EXHAUST FAN MOTOR 1
J133
JACK, BLOWER , EXHAUST FAN MOTOR 2
J138
JACK, EXHAUST FAN 2
J139
JACK, EXHAUST FAN 3
J263
JACK, HIGH AND LOW PRESSURE SWITCHES
J264
JACK, BLOWER DECK
J265
JACK, CONTACTORS AND RELAYS
J267
JACK, OUTDOOR FAN AREA
J268
JACK, TRANSFORMER 1 POWER
J269
JACK, HUMIDITROL
J299
JACK, HUMIDITRO INTERFACE
K1,−1 CONTACTOR, COMPRESSOR 1
K2,−1 CONTACTOR, COMPRESSOR 2
K3, −1 CONTACTOR, BLOWER
K10,−1 RELAY, OUTDOOR FAN 1
K14,−1 CONTACTOR, COMPRESSOR 3
K65−1,2RELAY, EXHAUST FAN
K68,−1 RELAY, OUTDOOR FAN 2
K149, −1RELAY, OUTDOOR FAN 3
K150,−1RELAY, OUTDOOR FAN 4
L14
VALVE, SOLENOID REHEAT VALVE 1
L30
VALVE, SOLENOID REHEAT VALVE 2
P18
PLUG, EXHAUST FAN COMP
P24
PLUG, EXHAUST FAN
P47
PLUG, OUTDOOR FAN 1
P52
PLUG, OUTDOOR FAN 2
P86
PLUG, OUTDOOR FAN INTERFACE 1
P87
PLUG, OUTDOOR FAN INTERFACE 2
P107
PLUG, OUTDOOR FAN 3
P108
PLUG, OUTDOOR FAN 4
P118
PLUG, COMPRESSOR 3 AND 4, CONTROL
P119
PLUG, COMPRESSOR 3 AND 4, INPUT
P132
PLUG, EXHAUST FAN MOTOR 1
P133
PLUG, EXHAUST FAN MOTOR 2
P138
PLUG, EXHAUST FAN 2
P263
PLUG, HIGH AND LOW PRESSURE SWITCHES
P264
PLUG, BLOWER DECK
P265
PLUG, CONTACTORS AND RELAYS
P267
PLUG,OUTDOOR FAN AREA
P268
PLUG, TRANFORMERS
P269
PLUG, HUMIDITROL
P299
PLUG, SAFETY
RT17
SENSOR, OUTDOOR AIR
S4
SWITCH, LIMIT HI PRESS COMPRESS 1
S7
SWITCH, LIMIT HI PRESS COMPRESS 2
S11
SWITCH, LOW PRESS, LOW AMBIENT COMP 1
S28
SWITCH, LIMIT HI PRESS COMPRESS 3
S42
SWITCH, OVERLOAD RELAY BLOWER MOTOR
S48
SWITCH, DISCONNECT
S49
SWITCH, FREEZE STAT COMPRESS 1
S50
SWITCH, FREEZE STAT COMPRESS 2
S53
SWITCH, FREEZE STAT COMPRESS 3
S84
SWITCH, LOW PRESS, LOW AMBIENT COMP 2
S85
SWITCH, LOW PRESS, LOW AMBIENT COMP 3
S87
SWITCH, LOW PRESS, COMP 1
S88
SWITCH, LOW PRESS, COMP 2
S98
SWITCH, LOW PRESS, COMP 3
S117
SWITCH, GFI
T1
TRANSFORMER, CONTROL
T18
TRANSFORMER, CONTACTOR
T29
TRANSFORMER, GFI
TB13
TERMINAL STRIP, POWER DISTRIBUTION
T43
T43
L14
L30
DI 4
RSV
R
A55
ONLY IN UNITS WITH HUMIDITROL
OPTION
EXTERNAL HUMIDITROL CONTACTS
24 V COMMON
24 V POWER
S49 AND S50 ARE PART OF 5VDC
CIRCUIT

Related product manuals