EasyManua.ls Logo

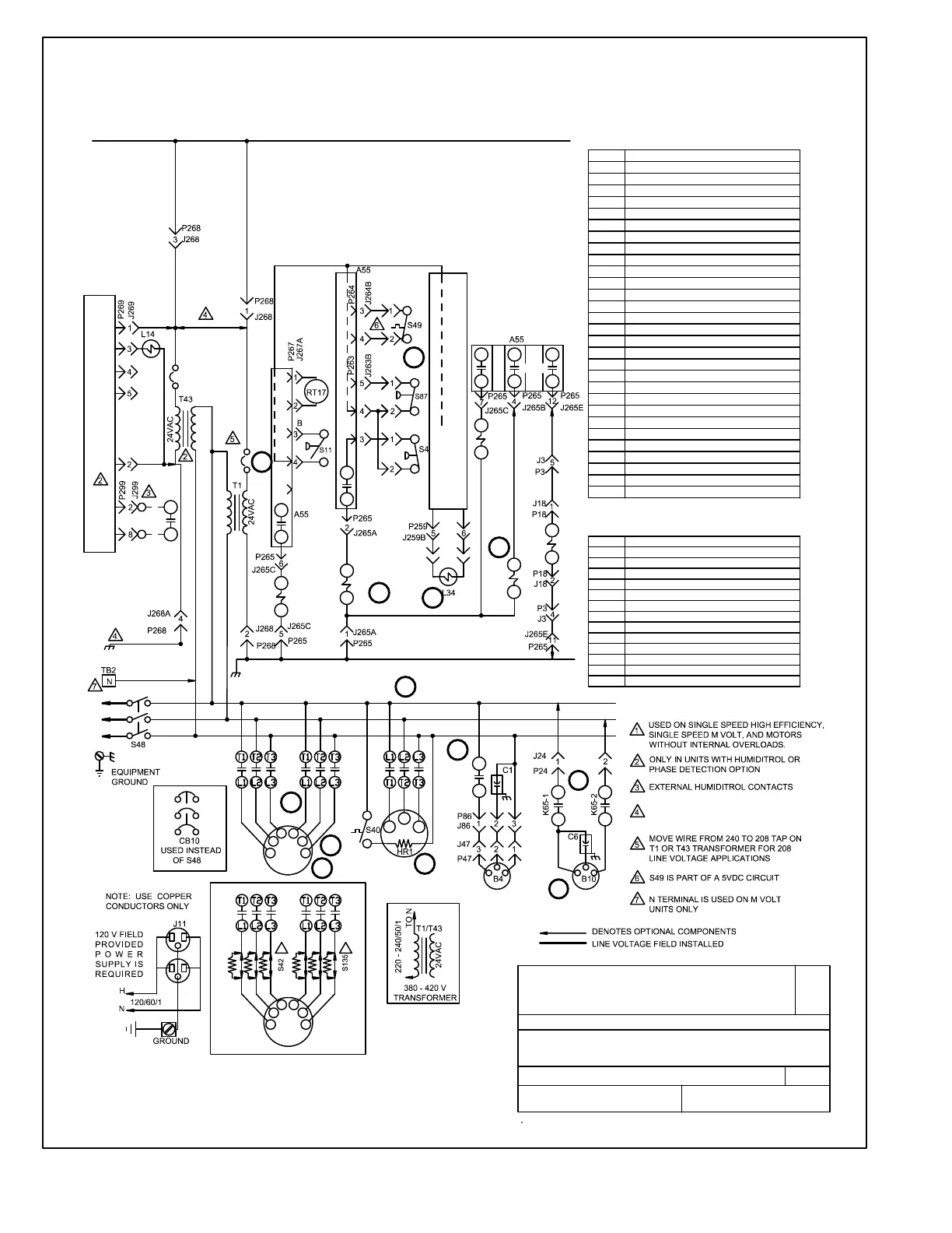
Lennox LCH048H4E - Wiring Diagrams - Belt Drive Units; Belt Drive Unit Diagram (G, J, M, Y)

Lennox LCH048H4E
72 pages
Print Icon
To Next Page IconTo Next Page
To Next Page IconTo Next Page
To Previous Page IconTo Previous Page
To Previous Page IconTo Previous Page
Loading...
Page 64
LCH036, 048, 060, 074 BELT DRIVE G, J, M, Y VOLTAGE UNIT DIAGRAM
1
2
5
7
8
9
6
3
3
7
10
11
Form No.
Supersedes
WIRING DIAGRAM
LCH, LGH - 036S, 048S, 060S, 074H - G, J, M, Y
04/18
COOLING
SECTION B REV. 0
537736-01
537736-02
24V COMMON
24V POWER
IF ANY WIRE IN THIS APPLIANCE IS REPLACED
IT MUST BE REPLACED WITH WIRE OF LIKE SIZE,
RATING, TERMINATION AND INSULATION THICKNESS.
WARNING: ELECTRIC SHOCK HAZARD, CAN CAUSE
INJURY OR DEATH . UNIT MUST BE GROUNDED IN
ACCORDANCE WITH NATIONAL AND LOCAL CODES.
DISCONNECT ALL POWER BEFORE SERVICING!
L1
L2
L3
L2
B1
K31
K1-1
K37-1
CB8
K10-1
7
4
K1
A
B
K10
A
B
9
6
7
4
K65
A
B
K3
A
B
KEY
COMPONENT
A55
CONTROL, MAIN PANEL LENNOX
B1
COMPRESSOR 1
B3
MOTOR, BLOWER
B4
MOTOR, OUTDOOR FAN
B10
MOTOR, EXHAUST FAN
C1
CAPACITOR, OUTDOOR FAN 1
C6
CAPACITOR, EXHAUST FAN
CB8
CIRCUIT, BREAKER
CB10
CIRCUIT BREAKER, MAIN DISCONNECT
CB31
CIRCUIT BREAKER, TRANSFORMER T43
HR1
HEATER, COMPRESSOR
J11
JACK, GFI RECEPTICLE
K3, 1 CONTACTOR, BLOWER LOW
K10,1 RELAY, OUTDOOR FAN 1
K37,1 CONTACTOR, BLOWER HI
K651,2 RELAY, EXHAUST FAN
L14
VALVE, SOLENOID REHEAT COIL 1
L34
SOLENOID, TWO STAGE
RT17
SENSOR, OUTDOOR AIR
S4
SWITCH, LIMIT HI PRESS
S11
SWITCH, LOW PRESS, LOW AMBIENT KIT
S40
THERMOSTAT, CRANKCASE
S42
SWITCH, OVERLOAD FOR BLOWER MOTOR
S48
SWITCH, DISCONNECT
S49
SWITCH, FREEZESTAT
S87
SWITCH, LOW PRESS, COMPRESSOR 1
S135
SWITCH, OVERLOAD BLOWER MOTOR
T1
TRANSFORMER, CONTROL
T43
TRANSFORMER, REHEAT
CB31
T43
T43
L14
L30
DI 4
RSV
R
A55
GND
24V COMMON
J268-1, -3 AND J268-2,-4 ARE CONNECTED
ON UNITS WITHOUT HUMIDITROL OR
PHASE DETECTION OPTIONS
1
2
3
11
12
13
B3
K31
1
K371
1
2
3
11
12
13
B3
1
18 EXHAUST FAN
24 EXHAUST FAN
47
OUTDOOR FAN
259 ECM MOTORS
260
BLOWER,COMP TWO SPEED CONTROL
263 HIGH AND LOW PRESSURE SWITCHES
264 BLOWER DECK
265 CONTACTORS AND RELAYS
267 OUTDOOR FAN AREA
268 TRANSFORMER 1 POWER
269 HUMIDITROL
299
HUMIDITROL INTERFACE
3 ECONOMIZER BYPASS
J/P # JACK/PLUG DESCRIPTION
GND
A55
K37
A
B
6

Related product manuals