EasyManua.ls Logo

Lennox LCH060H4E - LCH Parts Arrangement Diagram; LCH Control Box Diagram

Lennox LCH060H4E
72 pages
Print Icon
To Next Page IconTo Next Page
To Next Page IconTo Next Page
To Previous Page IconTo Previous Page
To Previous Page IconTo Previous Page
Loading...
Page 31
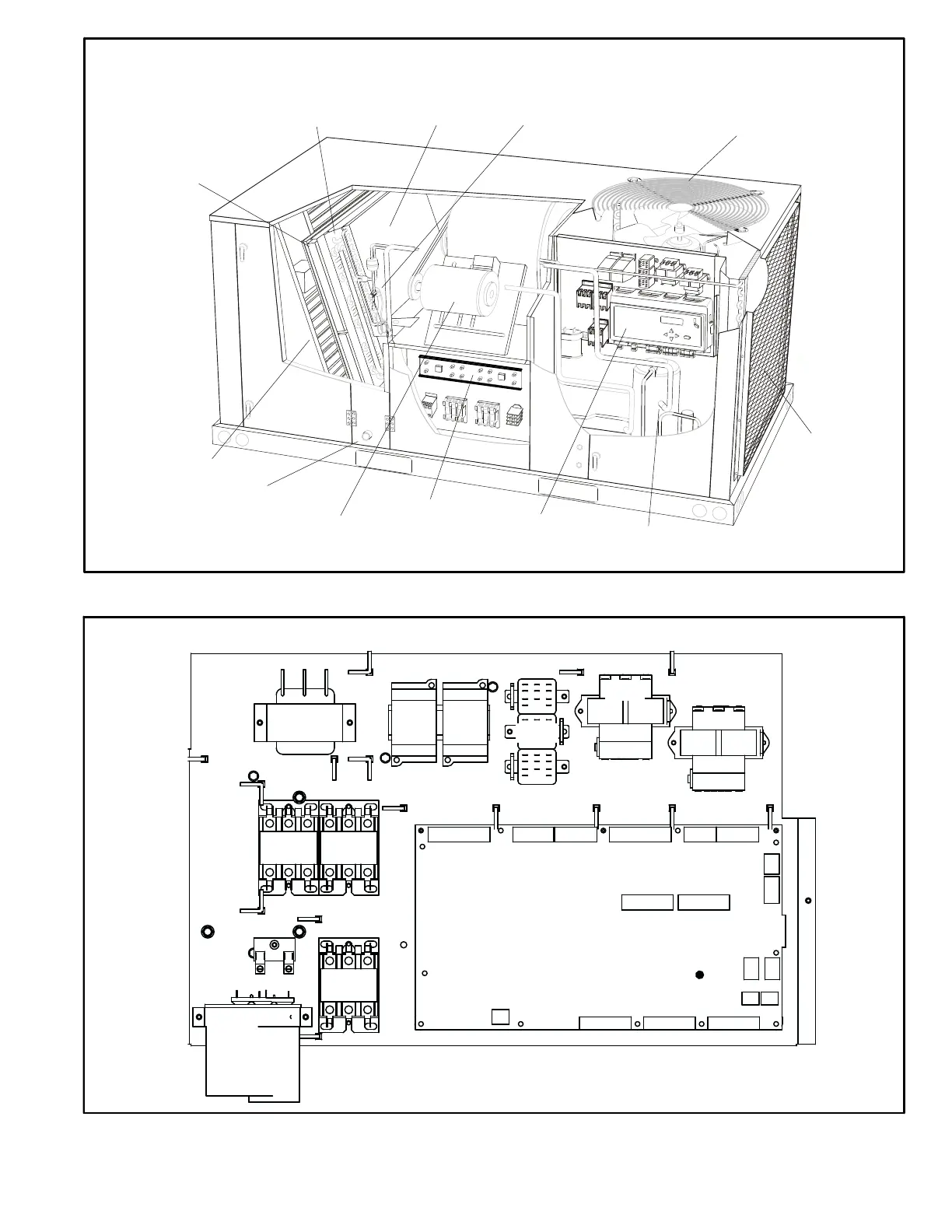
LCH PARTS ARRANGEMENT
FIGURE 1
LL
E
N
O
X
N
L
E
N
O
X
N
L
E
N
O
X
N
ELECTRIC HEAT
(Optional)
EVAPORATOR
COIL
CONDENSER
FAN
CONDENSER
COIL
COMPRESSOR
CONDENSATE
DRAIN
ECONOMIZER
(OPTIONAL)
BLOWER
BLOWER
MOTOR
(BELT DRIVE SHOWN)
FILTERS (4)
036, 048:16 X 20 X 2”
060, 072, 074 20 X 20 X 2”
TXV
UNIT
CONTROLLER
HUMIDITROL®
COIL
(OPTIONAL)
LCH CONTROL BOX
FIGURE 2
K1
S42
K10
T1
T43
T3
S135
K13
K72
A55
K37 K3
C1/C5
N