EasyManua.ls Logo

Lennox LCH060H4E - Electronic or Electromechanical Thermostat Diagram; Thermostat Component Key

Lennox LCH060H4E
72 pages
Print Icon
To Next Page IconTo Next Page
To Next Page IconTo Next Page
To Previous Page IconTo Previous Page
To Previous Page IconTo Previous Page
Loading...
Page 71
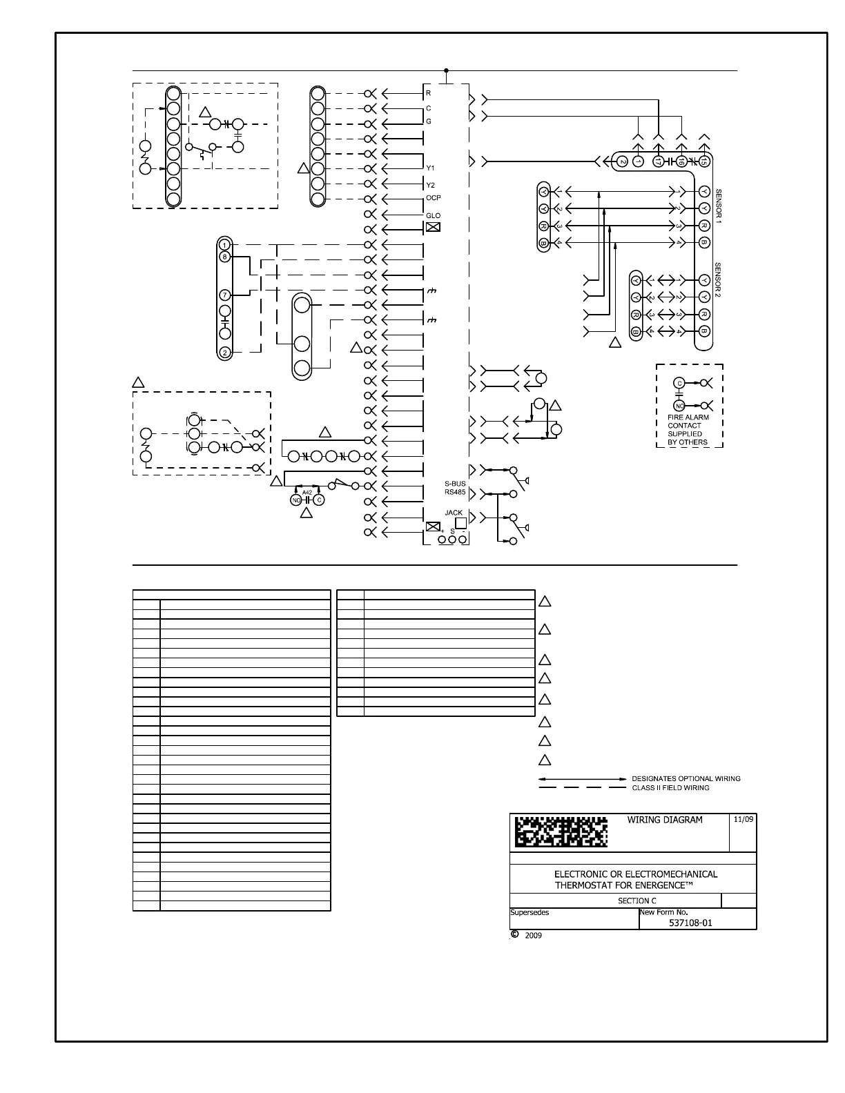
ELECTRONIC OR ELECTROMECHANICAL THERMOSTAT
POWER:
1. A55 Unit Controller, located in the main control box, supplies thermostat components with 24VAC.
OPERATION:
2. A55 receives data from the electronic thermostat A2 (Y1, Y2, W1, W2, G)
and energizes the appropriate components for heat or cool demand.
Lennox Commercial
ACCESSORIES
REV. 3.0
F/A
1
3
P298-8 (DO-1) IS SERVICE RELAY OUTPUT (24VAC)
IF USED CONNECT TO AN INDICATOR LIGHT
FOR MOTORS WITH S42 AND S135 EXTERNAL OVERLOAD LESS
INVERTER, SEE INVERTER WITH BY PASS FOR S42 HOOK UP
REMOTE LOCATION OF RT6
DESCRIPTION
KEY
COMPONENT
A2
SENSOR, ELECTRONIC THERMOSTAT
A42
MONITOR, PHASE PROTECTOR
A55
PANEL, MAIN
A63
SENSOR, CO2 (IAQ) OPTIONAL
A91
SENSOR, HUMIDITY
A171
SENSOR ONE, SMOKE, RETURN AIR
A172
SENSOR TWO, SMOKE, SUPPLY AIR
A173
MODULE, CONTROL SMOKE DETECTION
J99
JACK, RT16 RETURN AIR SENSOR
J100
JACK, RT6 SUPPLY AIR SENSOR
J250
JACK, SMOKE DETECTOR ONE
J251
JACK, SMOKE DETECTOR ONE
J252
JACK, SMOKE DETECTOR TWO
J253
JACK, SMOKE DETECTOR TWO
J255
JACK, MODULE, CONTROL SMOKE DETECTION
J261
JACK, SUPPLY SMOKE DETECTOR JUMPER
J262
JACK, ECONOMIZER
J264
JACK, BLOWER DECK
J297
JACK, THERMOSTAT - DDC INTERFACE
J298
JACK, IAQ INTERFACE
J299
JACK, SAFETY INTERFACE
K27, -1 RELAY, TRANSFER
K55,-1 RELAY, BLOWER
P99
PLUG, RT16 RETURN AIR SENSOR
P100
PLUG, RT6 SUPPLY AIR SENSOR
P250
PLUG, SMOKE DETECTOR ONE
P251
PLUG, SMOKE DETECTOR ONE
P252
PLUG, SMOKE DETECTOR TWO
P253
PLUG, SMOKE DETECTOR TWO
P255
PLUG, MODULE, CONTROL SMOKE DETECTION
P262
PLUG, ECONOMIZER
P264
PLUG, BLOWER DECK
P297
PLUG, THERMOSTAT - DDC INTERFACE
P298
PLUG, IAQ INTERFACE
P299
PLUG, SAFETY INTERFACE
P304
PLUG, SYS BUS
RT6
SENSOR, SUPPLY AIR TEMP
RT16
SENSOR, RETURN AIR TEMP
S27
SWITCH, FILTER
S52
SWITCH, AIRFLOW
S42
SWITCH, OVERLOAD RELAY BLOWER MOTOR LO
S86
SWITCH, DEHUMIDISTAT
S135
SWITCH, OVERLOAD RELAY BLOWER MOTOR HI
S149
SWITCH, OVERFLOW
A63
K27
A
B
A2
Y1
Y2
Y3
K27-1
1
7
TO PROVIDE THREE COMPRESSOR STAGES.
REQUIRES3 HEAT, 3 COOLTHERMOSTAT
AND K27 RELAY.
K55
B
A
K55-1
7
5
2
S86
J264A
1
2
J262B
5
6
RT6
RT6
RT16
3
A172
J253
A173
P255
P255
J250 J252
P250 P252
P253
J255
1 6 3 4
J255
2
S42
1
S149
J262C
10
11
12
P297
P298
J298A
1
2
B
3
4
C
5
6
7
P299
D
8
9
10
J299A
1
2
3
B
4
5
C
6
7
10
J100
1
4
P100
J99
1
4
P99
D
8
9
J297A
1
2
B
3
4
5
6
7
8
C
9
10
A91
VO
VIN
GND
J299A
1
2
J297A
7
6
2
R
OCP
C
G
W1
W2
Y1
Y2
24 V COMMON
24 V POWER
4
4
S52
S27
J264C
6
7
8
S135
USE S86 DEHUMIDISTAT AND K55 FOR OPTIONAL
SUPERMARKET REHEAT SCHEME, M2 PARAMETERS NEED TO BE
MODIFIEDUNDERTHESETTINGSMENUORVIA UCSOFTWARE
FOR SIMULTANEOUS HEATING AND COOLING.
2
THERMOSTAT HOOKUP FOR PROGRAMMABLE CONFIGURATION
OF THE M2 BOARD (A55).
5
5
6
W1
W2
P262
P262P264C
R
C
AI-1
HUM
TMP
DO-1
C
DO-2
DI-1
R
C
DI-2
R
DI-3
R
DI-4
C
A55
P304
6
M2 SETTINGS MUST BE MODIFIED WHEN A42, S42, S52, S135
OR S149 ARE INSTALLED
7
7
A42 USED ON 036 THROUGH 72 UNITS ONLY
A171
J251
P251
J261
1
2
3
4
8
CONNECT A172 SENSOR TO J261 ON SUPPLY AIR SMOKE
DETECTOR ONLY
8
R
OCP
C
G
W1
W2
Y1
Y2
TO R
TO G
TO Y1
TO PROVIDESUPERMARKETREHEATSCHEME
USE S86 DEHUMIDISTAT AND K55.
ALL OTHER THERMOSTAT
SIGNALSREMAIN CONNECTED
AS SHOWN ON THE RIGHT.
TO M2 THERMOSTAT INPUTS
2
2

Related product manuals