EasyManua.ls Logo

Lennox LGH120H

Lennox LGH120H
92 pages
To Next Page IconTo Next Page
To Next Page IconTo Next Page
To Previous Page IconTo Previous Page
To Previous Page IconTo Previous Page
Loading...
Page 40
FIGURE 19
LOCATION OF STATIC PRESSURE READINGS
SUPPLY AIR
READING
LOCATION
SUPPLY
RE
TURN
INSTALLATIONS WITH DUCTWORK
SUPPLY
RE
TURN
INSTALLATIONS WITH CEILING DIFFUSERS
MAIN
DUCT RUN
FIRST BRANCH
OFF OF MAIN RUN
DIFFUSER
ROOFTOP UNIT
ROOFTOP UNIT
SUPPLY AIR
READING
LOCATION
RETURN AIR
READING LOCATION
RETURN AIR
READING
LOCATION
Blower Belt Adjustment
Maximum life and wear can be obtained from belts only if
proper pulley alignment and belt tension are main
tained. Tension new belts after a 24-48 hour period of op
eration. This will allow belt to stretch and seat in the pul
ley grooves. Make sure blower and motor pulleys are
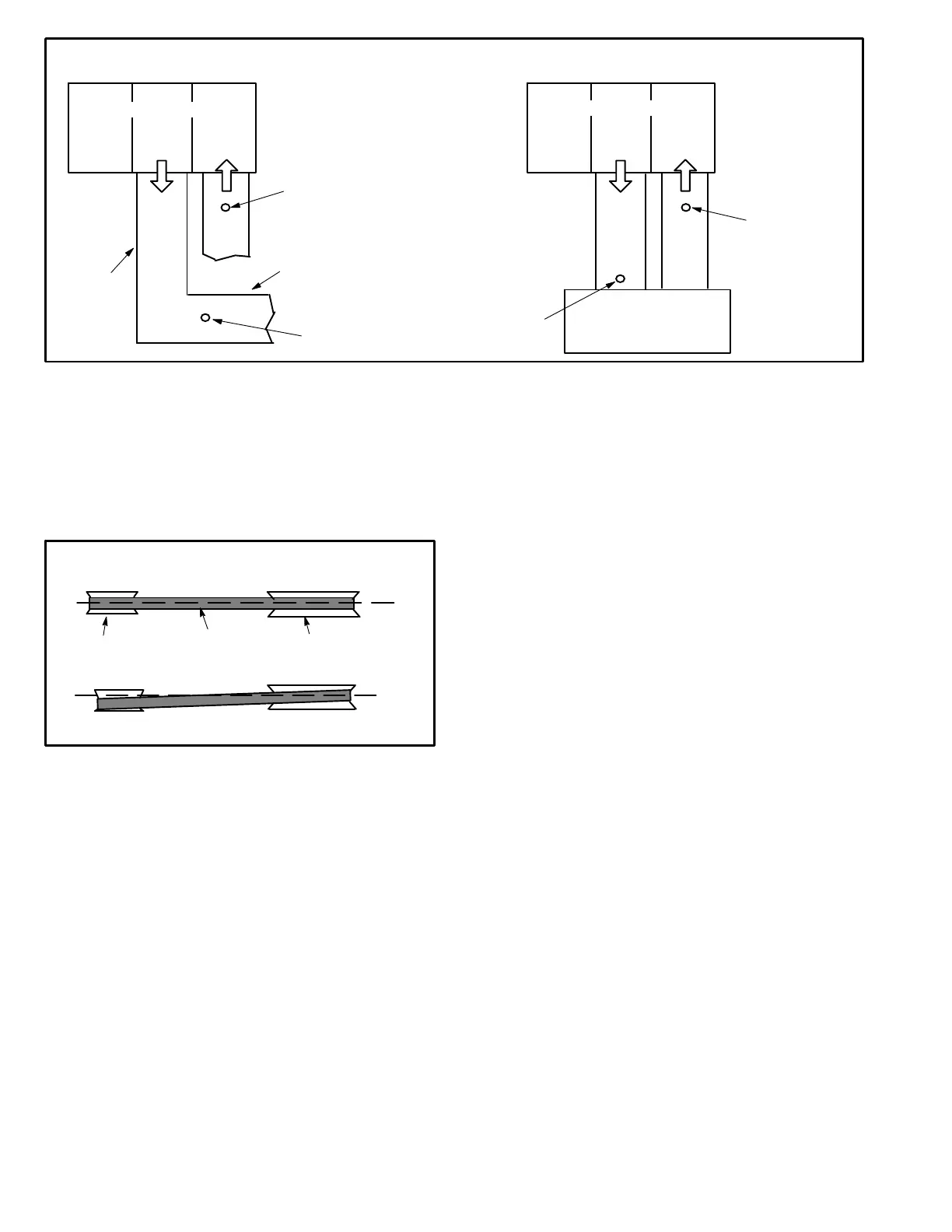
aligned as shown in figure 20.
FIGURE 20
PULLEY ALIGNMENT
BELT
BLOWER PULLEY
MOTOR PULLEY
NOT ALIGNED
ALIGNED
1- Loosen four bolts securing motor base to mounting
frame. See figure 16 or 17.
2- To increase belt tension -
Turn both adjusting bolts to the right, or clockwise, to
move the motor outward and tighten the belt. This in
creases the distance between the blower motor and
the blower housing.
To loosen belt tension -
Turn the adjusting bolt to the left, or counterclockwise
to loosen belt tension.
IMPORTANT - Align edges of blower motor base and
mounting frame base parallel before tightening four bolts
on the side of base. Motor shaft and blower shaft must be
parallel.
3- Tighten bolts on side of base.

Other manuals for Lennox LGH120H

Related product manuals