EasyManua.ls Logo

Lennox LGH240H - Staged-Blower UNITS - NO BYPASS

Lennox LGH240H
120 pages
Print Icon
To Next Page IconTo Next Page
To Next Page IconTo Next Page
To Previous Page IconTo Previous Page
To Previous Page IconTo Previous Page
Loading...
Page 114
Staged-Blower UNITS - NO BYPASS
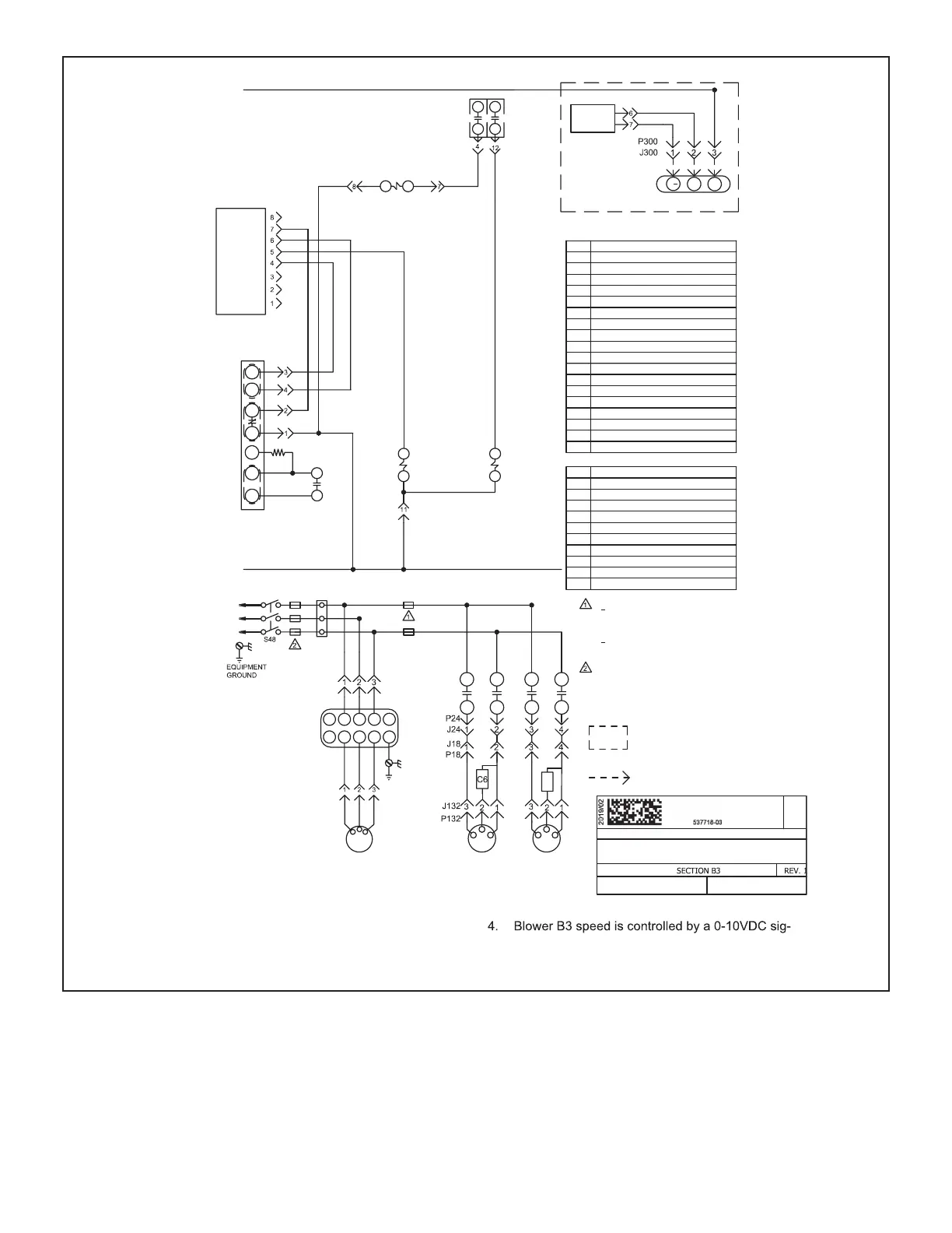
OPERATION:
1. A55 energizes the K203 relay coil.
2. K203-2 N.O. contacts close to start A96 forward
rotation signal STF.
3. A133 controls the second stage power exhaust
relay K231 coil through pin #5. K231-1 and -2
N.O. contacts will close to start the second power
exhaust fan when A133 energizes the K231 coil.
nal from A133 AO1 to A96 terminal 2.
5. A96 status is monitored by A133 through N.C.
contacts B-C on A96.
New Form No.
Supersedes
WIRING DIAGRAM
MSAV/ VAV BLOWER - NO BYPASS
02/19
COOLING
537718-02
24V POWER
537718-03
L1
L2
L3
B10
F6
F6
TB13
K65
A
B
A55
P265
J265E
J265B
P265
J265E
K231
A
B
24V COMMON
K203-2
9
6
STF
SD
K203
A
B
2
A96
5
J246
P246
J247
P247
B3
C
B
J248
P248
P248
J248
B11
C8
P133
J133
K231-2
9
6
F6 FUSES ARE USED ON 240/300
Y
VOLT UNITS WITH FACTORY
INSTALLED POWER EXHAUST
F6 FUSES ARE USED ON ALL
Y VOLT UNITS WITH FIELD
INSTALLED POWER EXHAUST
P248
KEY
COMPONENT
A55
PANEL, MAIN CONTROL
A96
CONTROL, INVERTER
A133
CONTROL, GENERAL PURPOSE
B3
MOTOR, BLOWER
B10
MOTOR, EXHAUST FAN 1
B11
MOTOR, EXHAUST FAN 2
C6
CAPACITOR, EXHAUST FAN 1
C8
CAPACITOR, EXHAUST FAN 2
F4
FUSE, MAIN UNIT
18 POWER EXHAUST HARNESS
24
POWER, RELAY TO EXHAUST FANS
132 POWER TO EXHAUST FAN MOTOR 1
133 POWER TO EXHAUST FAN MOTOR 2
246POWER TO VFD
247
POWER, VFD TO MTR
265 A55 TO CONTACTORS AND RELAYS
K65
RELAY, EXHAUST FAN
K203
RELAY, INVERTER START FWD ROTATION
S48
SWITCH, DISCONNECT
TB13
TERMINAL STRIP, POWER DISTRIBUTION
248VFD CONTROL
J/PJACK/PLUG DESCRIPTION
K231
RELAY, EXHAUST FAN 2
J248
J259
(ODF)PWM 2
(ODF)PWM 3
COM
(IDB)PWM 1/VO
RELAY
COM
FB
20V
A55
K65-2
9
6
K65-1
7
4
K231-1
7
4
PC
R55
300 DUCT STATIC PRESSURE
267 A30 INPUT
R55
RESISTOR,VFD LOADING, A96
A55
GND
0-10 VDC IN
P267
J267
+S
+
A30
SENSOR, DUCT STATIC PRESSURE
A30SETRA
DENOTES OPTIONAL
COMPONENTS
DENOTES FIELD
INSTALLED WIRING
RST
WV
U
G
G
A96
F4/F61
F4 USED ON LCH UNITS.
F61 USED ON LGH UNITS WITH SCCR
OPTION
F6
FUSE, EXHAUST FAN
F61
FUSE, UNIT SCCR OPTION

Other manuals for Lennox LGH240H

Related product manuals